
Flat to rent 3+1 • 81 m² without real estateKuchengartenstraße 4 Leipzig Neustadt-Neuschönefeld Sachsen 04315
Welcome to Leipzig-Reudnitz. Where life pulsates and green spaces are never far away, an exciting refuge with eight stylish apartments has been constructed at Kuchengarten 4. With a modern door communication system, your guests gain access to the building and reach their new home via elevator. Electric aluminum shutters protect your privacy. Barrier-free showers turn every bathroom visit into a spa experience. Sunny balconies and terraces, underfloor heating, and convenient district heating make life in Leipzig perfect.
The apartment is located in Leipzig-Neustadt Neuschönefeld in a quiet new building area. It takes a maximum of 10 minutes on foot to reach the train station or the center. The connections are truly optimal, and all everyday shops are within walking distance. Likewise, just two streets away there is a small park for relaxation.
Bus stop: 3 minutes on foot
Schools: 3 minutes on foot
Daycare: 2 minutes on foot
Supermarket: 1 minute on foot
Airport: 15 minutes by car
Main train station: 10 minutes by car
This property is a high-quality new build with many small extras. In the kitchen you will find a cooktop with a state-of-the-art extractor hood, an integrated dishwasher, as well as a refrigerator-freezer combo. Families will find plenty of play areas in the surrounding area for children and surely even a potential playmate or two.
If you need to store some things, a spacious basement is of course available.
Just take a look at the pictures and the property description will speak for itself. If you have any further questions, feel free to contact us.
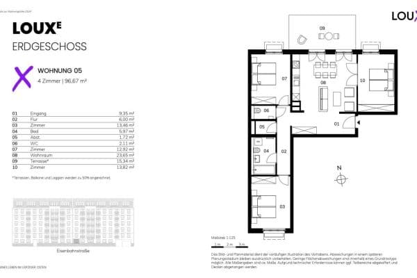
Room Layout:
- Continuous underfloor heating / the entire apartment is laid with high-quality parquet flooring, except for the full bathroom
- Fully equipped open kitchen
- Direct access to the balcony from the living/office room
- Storage room provides space for the washing machine, dryer, and some other items
- Internet is available in all rooms via WLAN or LAN connection
- With the many windows, the apartment is always pleasantly bright
Viewing appointments available by arrangement.
Property characteristics
| Age | Over 5050 years |
|---|---|
| Layout | 3+1 |
| Listing ID | 984418 |
| Usable area | 81 m² |
| Condition | Very good |
|---|---|
| Floor | 2. floor out of 4 |
| EPC | B - Very economical |
| Price per unit | €14 / m2 |
What does this listing have to offer?
| Balcony | |
| Basement |
| Wheelchair accessible | |
| Lift |
What you will find nearby
Still looking for the right one?
Set up a watchdog. You will receive a summary of your customized offers 1 time a day by email. With the Premium profile, you have 5 watchdogs at your fingertips and when something comes up, they notify you immediately.
















