
Flat for sale 3+kk • 70 m² without real estate, Hesse
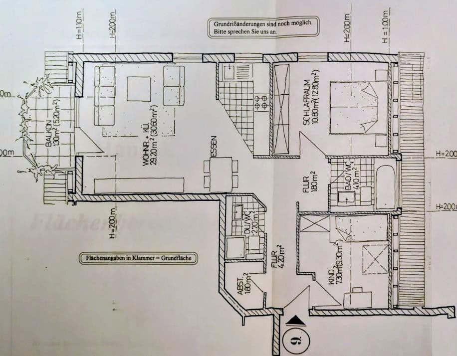
For sale is a well-maintained and stylish 3.5-room apartment with a gallery and approximately 70 m² of living space. Thanks to the smart floor plan, the apartment presents itself as a true spatial marvel that optimally utilizes the available area.
The spacious living and dining area with an integrated gallery creates an airy living atmosphere and offers versatile usage possibilities. The south-facing balcony provides plenty of daylight and invites you to relax.
A special highlight is the beautiful view towards the west over the Taunus up to the Feldberg, which can be enjoyed both from the kitchen and the roof windows, granting the apartment an exceptional quality of living.
Both bathrooms were modernized in 2024. In addition, the essential kitchen appliances as well as two central radiators were renewed in 2024. The roof windows are all in like-new condition and feature double glazing for insulation.
Two parking spaces directly in front of the building complete this attractive offer and can be purchased for €12,500 each.
In the basement, in addition to a private storage compartment for the buyer, there is also a bicycle storage room and a laundry room available.
Living and Community Structure:
The property comprises several buildings with a total of 42 units.
There are 9 units in the building itself.
High reserves ensure financial security and stress-free ownership.
Features & Highlights:
- 3.5 rooms with gallery
- Approximately 70 m² of living space
- South-facing balcony
- Two modernized bathrooms
- Modernized kitchen appliances (AEG)
- Bright, open floor plan
- Two parking spaces directly in front of the building
The apartment will be available for handover in June 2026, offering planning security for owner-occupiers as well as an interesting perspective for investors.
The apartment is located at Ebertstraße 30e in 63165 Mühlheim am Main, in an established and quiet residential area near both the old town and the city center. Shops for daily needs, schools, kindergartens, and doctors are nearby and within walking distance.
The connection to public transport as well as to the surrounding cities of Offenbach, Frankfurt am Main, and Hanau is convenient, making the location attractive for both commuters and families.
- Bus stop 200m away, with direct connection to Offenbach/S-Bahn OF-Ost
- Mühlheim a.M. S-Bahn station approx. 1500m away
- Main riverbank approx. 600m away
Property characteristics
| Age | Over 5050 years |
|---|---|
| Condition | After reconstruction |
| Floor | 2. floor out of 2 |
| EPC | E - Wasteful |
| Price per unit | €4,271 / m2 |
| Available from | 01/06/2025 |
|---|---|
| Layout | 3+kk |
| Listing ID | 984306 |
| Usable area | 70 m² |
What does this listing have to offer?
| Balcony | |
| Parking |
| Basement | |
| MHD 1 minute on foot |
What you will find nearby
Still looking for the right one?
Set up a watchdog. You will receive a summary of your customized offers 1 time a day by email. With the Premium profile, you have 5 watchdogs at your fingertips and when something comes up, they notify you immediately.

























