
Flat to rent 2+kk • 77 m² without real estateMarienstr. 19, , Baden-Württemberg
Marienstr. 19, , Baden-WürttembergPublic transport 2 minutes of walking • Lift • ParkingWelcome to your new home in Waiblingen!
Very centrally located yet peaceful.
A bright, friendly-designed apartment awaits you.
Completely renovated throughout!
Featuring a new bathroom, new flooring, new windows,
and a new, modern fitted kitchen,
for which an additional 70€/month is charged on top of the cold rent.
The very large, green roof terrace invites you to relax and enjoy.
A credit report and proof of income are requested.
We look forward to your interest.
Central, quiet city location with short, walkable distances to the old town
and for shopping, doctor, and pharmacy.
Two short bus stops to the S-Bahn lines S2/S3.
A parking space in front of the house is available.
The bright apartment with approximately 70m² roof terrace has been completely renovated
and features a new, modern fitted kitchen including a dishwasher.
The bathroom and the separate toilet have been completely redesigned.
The flooring throughout the apartment has been newly tiled.
All interior doors have been widened.
All windows have been replaced.
The building has an elevator for convenient access.
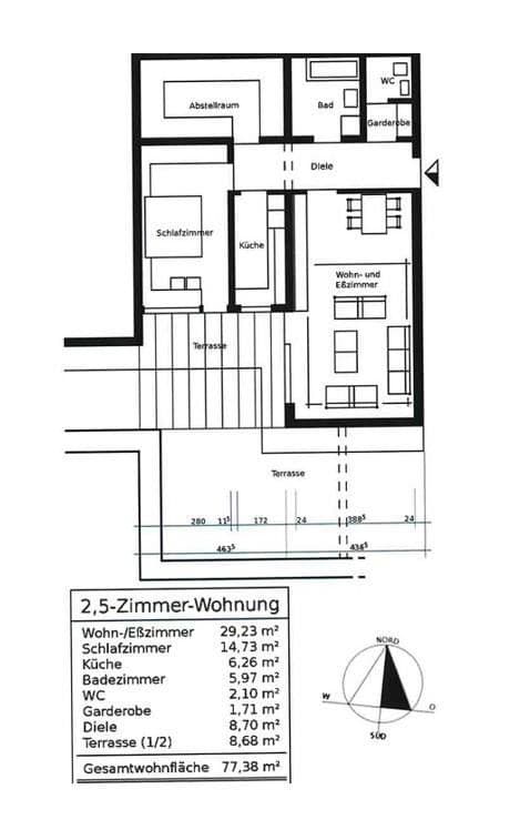
There is an interior storage/pantry room of about 10m²,
which can also be used as a workspace or a walk-in dressing room.
Note:
The large roof terrace was only partially included,
and the interior storage room was not included at all in the 77m².
See floor plan.
A new energy certificate is available.
However, it is currently being revised.
Property characteristics
| Age | Over 5050 years |
|---|---|
| Condition | After reconstruction |
| Floor | 1. floor |
| EPC | D - Less economical |
| Price per unit | €14 / m2 |
| Available from | 25/01/2026 |
|---|---|
| Layout | 2+kk |
| Listing ID | 984288 |
| Usable area | 77 m² |
What does this listing have to offer?
| Wheelchair accessible | |
| Lift | |
| MHD 2 minutes on foot |
| Basement | |
| Parking |
What you will find nearby
Still looking for the right one?
Set up a watchdog. You will receive a summary of your customized offers 1 time a day by email. With the Premium profile, you have 5 watchdogs at your fingertips and when something comes up, they notify you immediately.















