House for sale 5+1 • 134 m² without real estate, Hesse
, HessePublic transport 3 minutes of walkingThis semi-detached house with timber-framed construction from around 1900 is located in the heart of Dietzenbach’s historic old town and offers immediately well-maintained, habitable, and affordable living space in an established atmosphere.
With approximately 134 m² of living space featuring five rooms at present, this home is ready for immediate use while still allowing space for individual touches.
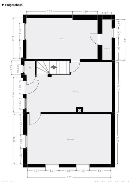
A particular highlight of the house is the spacious kitchen-dining area with a pantry, which offers ample room for cooking, dining, and spending time together, thus providing a pleasant structure to everyday life. A large open dining area with a tiled stove adjoins the kitchen directly.
The ground floor is further complemented by a large, bright living room that offers an open and friendly living atmosphere. On the first floor, there are currently three bedrooms and a bathroom with a bathtub. With minimal effort, a fourth room—for example, for a home office, guests, or an additional bedroom—can be created on this floor; a true asset for various living situations.
The typical structure of a historical house lends character to the rooms and creates a tranquil living ambiance. The natural sandstone cellar reflects the original use of such historic buildings and is ideal for storing supplies or beverages.
Additionally, the spacious attic provides the much-needed large storage area as well as further potential for additional living space.
A terrace in the courtyard complements the house as a small outdoor retreat.
This property is aimed at buyers who appreciate an old town location, history, and immediate usability and are looking for a home that remains affordable while still possessing character.
Another (financial) advantage: Both semi-detached halves form a condominium community, for instance in terms of the plot and utility facilities—a declaration of division is available, with more details provided in a personal conversation.
A note regarding the energy certificate: Due to the building’s age, an energy demand certificate is used. The latest annual statement from 2024 shows gas costs of only €830 for the entire year!
Please feel free to contact us for further information and to arrange a viewing.
Dietzenbach is located in the southern Rhein-Main area and combines urban infrastructure with plenty of green spaces and short distances to Frankfurt. The old town forms the historic center and impresses with its established charm, quiet residential streets, and a pleasant neighborhood atmosphere. Shopping options, cafés, schools, kindergartens, and doctors are conveniently within walking distance. Thanks to the S-Bahn connection and quick access to highways A3 and A661, Frankfurt’s city center can be reached in no time. Thus, the location combines a historic atmosphere, excellent accessibility, and a high quality of life.
Property characteristics
| Age | Over 5050 years |
|---|---|
| Condition | Good |
| Listing ID | 984286 |
| Usable area | 134 m² |
| Total floors | 4 |
| Available from | 27/01/2026 |
|---|---|
| Layout | 5+1 |
| EPC | G - Extremely uneconomical |
| Land space | 247 m² |
| Price per unit | €3,127 / m2 |
What does this listing have to offer?
| Basement | |
| Terrace |
| MHD 3 minutes on foot |
What you will find nearby
Still looking for the right one?
Set up a watchdog. You will receive a summary of your customized offers 1 time a day by email. With the Premium profile, you have 5 watchdogs at your fingertips and when something comes up, they notify you immediately.





















