House for sale • 443 m² without real estateOttobeurer Straße 17, , Bavaria
Ottobeurer Straße 17, , BavariaPublic transport 2 minutes of walkingThis multi-family house (presumably built around 1900; extension added in 1990) with five residential units and one leased commercial unit represents an attractive investment opportunity with ongoing cash flow and significant development potential.
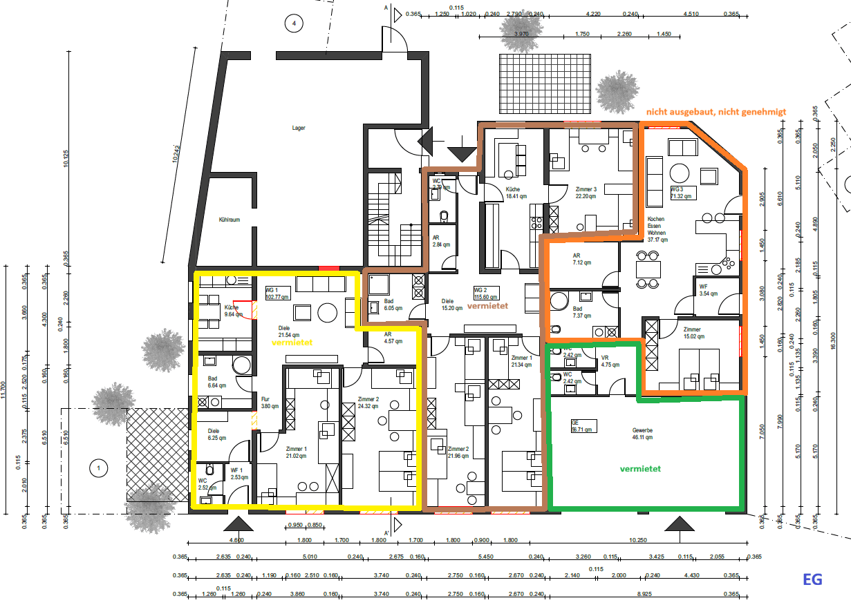
Currently, four apartments are rented, while one unit is vacant (one of which will be available starting in February). The current annual net rent amounts to approximately €43,000, already providing a solid base yield.
A central highlight for investors is the estimated, non-binding development reserve of approximately 350 m², which – subject to official approvals – enables the creation of additional residential units and thus a significant increase in rental income and the property’s value.
The property is ideally suited both for buy-and-hold strategies focusing on long-term cash flow and for fix-and-flip concepts with a clear exit option.
Through targeted renovations and optimization measures, the existing income potential can be increased in the short term and expanded in the long term. The building’s overall condition is solid, and while partial immediate occupancy is possible, renovation work is needed, offering active investors an opportunity to add value.
Some of the windows are plastic with double glazing, while others are wooden. The heating system was renewed in 2018 and provides a sound technical basis.
The floor plans shown in the pictures are for illustrative purposes only and do not represent a binding plan set.
Overall, this is a development-ready income property with ongoing revenues, vacancy for immediate optimization, and significant expansion capacity – ideal for investors with foresight and vision.
The property is located in the central area of Markt Rettenbach (87733). All daily necessities such as a bakery, butcher, grocery store, doctor, bank, kindergarten, and a bus stop are conveniently within walking distance.
At the same time, you are only a few minutes away from the greenery and can enjoy the peaceful, rural surroundings of the Allgäu.
Its proximity to Ottobeuren and location between Kempten, Memmingen, and Mindelheim make the location particularly attractive. The A96 motorway is quickly accessible and ensures good regional and interregional connectivity.
The house is oriented to the south with its balconies, offering plenty of sun and a pleasant living atmosphere.
Please note that the response time may be approximately 2 days. A viewing appointment can be arranged upon request.
Property characteristics
| Age | Over 5050 years |
|---|---|
| Condition | Before reconstruction |
| EPC | F - Very uneconomical |
| Land space | 1,079 m² |
| Available from | 27/01/2026 |
|---|---|
| Listing ID | 984212 |
| Usable area | 443 m² |
| Price per unit | €1,916 / m2 |
What does this listing have to offer?
| Balcony | |
| MHD 2 minutes on foot |
| Basement | |
| Terrace |
What you will find nearby
Still looking for the right one?
Set up a watchdog. You will receive a summary of your customized offers 1 time a day by email. With the Premium profile, you have 5 watchdogs at your fingertips and when something comes up, they notify you immediately.





































