
Flat for sale 3+1 • 92 m² without real estateGabriel-Max-Straße 18 Berlin Friedrichshain Berlin 10245
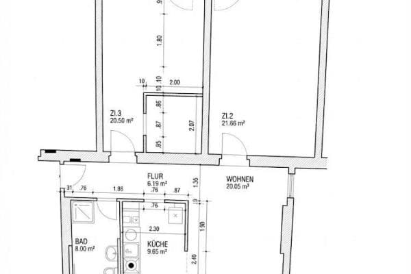
This beautiful maisonette flat, located on the top floor, is offered for sale commission‐free and features three very spacious rooms spread over two floors (4th and 5th floors). On the lower level (4th floor) are the living room and kitchen, while the attic was converted in 1995/1996. The 5th floor boasts two 12‑square‐meter rooms and an exceptionally spacious bathroom. There is also a balcony on the 4th floor with a quiet inner courtyard setting, and the flat comes with a cellar. Please note that the building does not have a lift.
Located in the heart of Berlin-Friedrichshain and at the absolute hotspot of Boxhagener Platz, this wonderfully quiet inner courtyard apartment is surrounded by a variety of restaurants, cafés, pubs, and shops. The nearest supermarket is only 250 meters away (with Lidl at 250 meters, Edeka at 300 meters, Penny at 350 meters, and Rewe at 700 meters), and there is even a Rewe-to-go just 150 meters away. The Samariterstr. subway station is approximately 700 meters away, and the Warschauer Straße S-Bahn and U-Bahn station is only about 600 meters away. The Spree River is also close by, inviting pleasant strolls, while the M13 tram stops almost right outside the door. Additionally, the weekend market at “Boxi” is well worth a visit.
The flat is equipped with a fitted kitchen that is fully functional and has been in use for some time. The entire apartment is laid with laminate flooring that was installed 10 years ago. The bathroom features a bathtub and offers plenty of space for a washing machine and tumble dryer, with tiled flooring throughout.
The flat is currently rented – termination for owner use is possible and would require a notice period of 9 months (with Japanese tenants).
Property characteristics
| Age | Over 5050 years |
|---|---|
| Condition | Good |
| Floor | 5. floor out of 5 |
| Usable area | 92 m² |
| Available from | 01/02/2026 |
|---|---|
| Layout | 3+1 |
| Listing ID | 984053 |
| Price per unit | €5,326 / m2 |
What does this listing have to offer?
| Balcony | |
| MHD 2 minutes on foot |
| Basement |
What you will find nearby
Still looking for the right one?
Set up a watchdog. You will receive a summary of your customized offers 1 time a day by email. With the Premium profile, you have 5 watchdogs at your fingertips and when something comes up, they notify you immediately.




















