
Flat for sale 4+kk • 134 m² without real estateHohenheimer Str. 11, , Baden-Württemberg
See for yourself the generous space offered by this attractive 2.5-room apartment! In addition to approximately 62 m² of inviting living area, you also have about 72 m² of versatile ancillary rooms available in the inner basement.
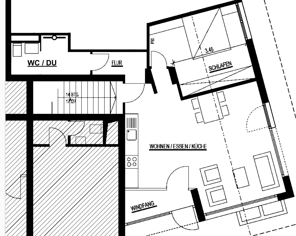
This appealing ground-floor apartment has been freshly renovated and refurbished and is now ready for first occupancy. A special highlight is the expansive window fronts that create a friendly, light-filled living environment. You can still individually select and design the windows to your preferences – thus protecting your privacy as desired while enjoying the open, bright atmosphere.
The basement offers a variety of options: whether you want a spacious creative area, a stylish home office, an inspiring artist studio, or an ideal retreat for hobbies, fitness, and leisure – no desire is left unmet here. Access is conveniently provided via a staircase integrated into the living space. Additionally, there is a separate entrance, which makes the basement especially attractive as storage or commercial space for freelancers. Your imagination is the only limit!
Comfort and modern living define the interior: a level entry and generously wide room doors create an open sense of space. The bathroom impresses with a walk-in shower and underfloor heating. Efficient and sustainable warmth is provided by the new central heating system of the building, featuring innovative heat pump technology – ideal for future-oriented living.
Only about a 3-minute drive from the highway, roughly 8 minutes to the airport, and with excellent connections to local and suburban trains, this apartment offers an ideal transport link. Several universities (University of Hohenheim, Campus Stuttgart Vaihingen) are quickly and conveniently reachable – perfect for commuters, professionals, and students. Renowned employers such as Bosch, JW Fröhlich, and Daimler are just a few minutes’ walk away. The well-thought-out spatial concept and excellent location open up a range of uses and high living comfort.
On the southern edge of Stuttgart lies Leinfelden-Echterdingen. The community is recognized as an excellent business location with very good infrastructure and as a gateway to the countryside.
Nestled among fields and orchards, and close to the Schönbuch Nature Park as well as the magnificent Siebenmühlental Nature and Landscape Protection Area, your new home awaits.
You’ll quickly be in the countryside or at the beer garden – where you can enjoy your evenings.
For more information about the location, please follow this link:
www.leinfelden-echterdingen.de
Within walking distance: discount grocery store, family doctor, dentist, kindergarten, schools, public transportation
+ First occupancy after renovation, lovingly furnished on request
+ Modern bathroom with underfloor heating and a walk-in (tiled) shower
+ Washbasin and rimless WC
+ Newly renovated walls, ceilings, and floors
+ Secure, partly new, energy-efficient glazed windows (2025)
+ High energy standard, facade insulation, hybrid heating (2025), energy certificate on display
+ Janitorial service is provided
+ Bicycle storage room is available
+ Communally usable drying room as well as shared garden
Individual adjustments are welcome on a negotiable basis.
Property characteristics
| Age | Over 5050 years |
|---|---|
| Layout | 4+kk |
| Usable area | 134 m² |
| Condition | After reconstruction |
|---|---|
| Listing ID | 983671 |
| Price per unit | €2,007 / m2 |
What does this listing have to offer?
| Wheelchair accessible | |
| Lift | |
| MHD 3 minutes on foot |
| Basement | |
| Parking |
What you will find nearby
Still looking for the right one?
Set up a watchdog. You will receive a summary of your customized offers 1 time a day by email. With the Premium profile, you have 5 watchdogs at your fingertips and when something comes up, they notify you immediately.


















