
House for sale 7+1 • 230 m² without real estateStuttgart Feuerbach Baden-Württemberg 70192
Stuttgart Feuerbach Baden-Württemberg 70192Public transport 1 minute of walking • Parking • GarageThe property was built in 1954 and extensively renovated in 1986. The property is located in one of Stuttgart’s most popular residential areas, at Killesberg. The house is situated on a quiet side street. The Killesberg Park as well as the Killesberg outdoor swimming pool can be reached on foot. In the immediate vicinity, supermarkets, bakeries, pharmacies, kindergartens, and schools are also within easy reach.
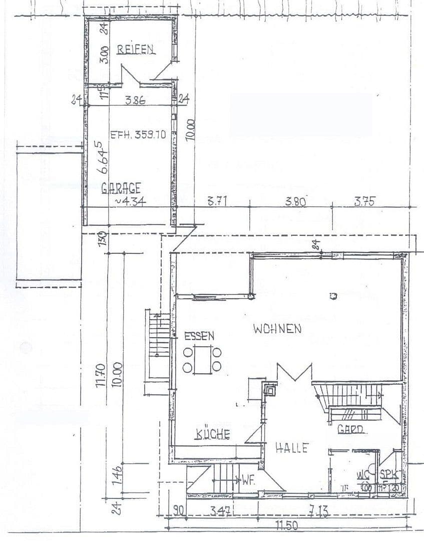
On the ground floor, there is a spacious and inviting entrance hall with a guest WC, cloakroom, and pantry, as well as a large living room with an open kitchen and access to the covered terrace with a south-facing garden.
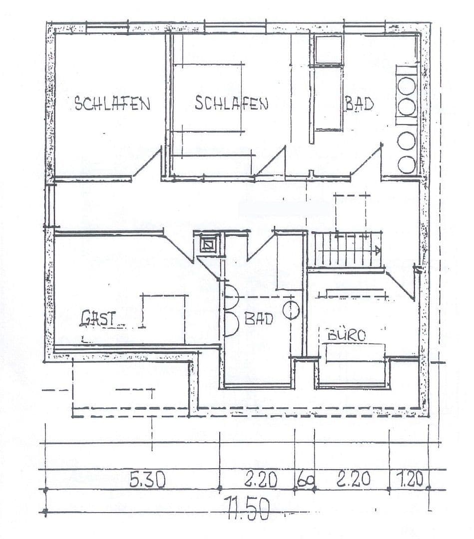
On the upper floor, there are 4 rooms (previously used as bedrooms and an office) and 2 bathrooms, each equipped with a shower, bathtub, WC, bidet, and double hand washbasin.
Property characteristics
| Age | Over 5050 years |
|---|---|
| Layout | 7+1 |
| Usable area | 230 m² |
| Total floors | 3 |
| Condition | Good |
|---|---|
| Listing ID | 983576 |
| Land space | 470 m² |
| Price per unit | €6,500 / m2 |
What does this listing have to offer?
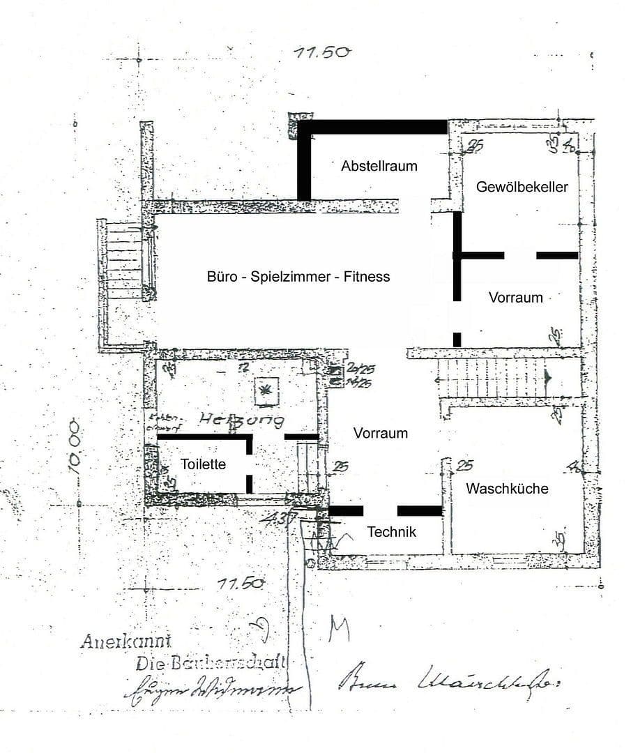
| Basement | |
| Parking | |
| Terrace |
| Garage | |
| MHD 1 minute on foot |
What you will find nearby
Still looking for the right one?
Set up a watchdog. You will receive a summary of your customized offers 1 time a day by email. With the Premium profile, you have 5 watchdogs at your fingertips and when something comes up, they notify you immediately.



















