
Flat to rent 2 bedroom • 74 m² without real estate, Lower Saxony
, Lower SaxonyPublic transport 1 minute of walking • Lift • ParkingProperty Description:
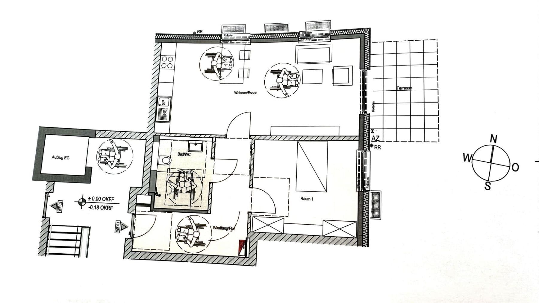
This attractive apartment is a ground floor unit in a well-maintained, completely quiet residential complex. The apartment impresses with its generous layout. It comprises two spacious rooms (one of which has an east-facing terrace), a modern fitted kitchen, and a contemporary bathroom.
Each room is equipped with electric shutters.
The base rent is EUR 1,147.00 plus advance payments for ancillary costs in the amount of EUR 250.00. The ancillary cost advance covers all expenses except electricity: heating, waste disposal fees, water/sewage, insurance, and property tax.
Electricity costs are paid directly by the tenant to the electricity provider.
Furthermore, the apartment includes one carport (totaling EUR 60.00, which is included in the base rent). A second carport parking space is available for EUR 60 per month.
We look forward to your inquiry along with a short description (number of persons, occupation, age). The municipality of Jesteburg is located 30 km south of Hamburg in the Harburg district. Here, you can swim laps in the outdoor pool and enjoy adventures with the little ones at the JestePark playground. Hikers and cyclists will appreciate the well-maintained paths, while paddlers can have fun on the Seeve. VfL Jesteburg offers a wide range of activities, including an equestrian center on-site.
Three golf courses can be found within just a 10 km radius.
In town and on its outskirts, there are numerous shopping opportunities (Famila, Aldi, Penny, REWE, Budnikowski, etc.).
Jesteburg has four kindergartens and a primary and secondary school with a high-school level option.
For healthcare, there is a good selection of doctors, dentists, pharmacies, and care services. Retirement and nursing homes are also located in the town.
If you do not own a car, you can use the bus lines or, during the season, the Heideshuttle to visit the beautiful heathland. There is an excellent bus connection to the nearby towns of Hanstedt and Harburg as well as to Buchholz (from there, Hamburg is approximately 25 minutes away by the Metronom).
Additional features of the apartment include:
• 1 carport parking space included in the base rent.
• On request, a second carport parking space can be rented for EUR 60 per month.
• Large basement storage room.
• Additional communal bicycle storage room.
• Individual designated space for a washing machine and dryer in the shared laundry room.
• Terrace.
• Modern fitted kitchen.
• Electric shutters.
• Vinyl flooring.
• Underfloor heating.
• Large bathroom with a level shower.
• Barrier-free access.
Property characteristics
| Available from | 23/01/2026 |
|---|---|
| Layout | 2 bedroom |
| Usable area | 74 m² |
| Condition | New-build |
|---|---|
| Listing ID | 983563 |
| Price per unit | €16 / m2 |
What does this listing have to offer?
| Wheelchair accessible | |
| Lift | |
| MHD 1 minute on foot |
| Basement | |
| Parking | |
| Terrace |
What you will find nearby
Still looking for the right one?
Set up a watchdog. You will receive a summary of your customized offers 1 time a day by email. With the Premium profile, you have 5 watchdogs at your fingertips and when something comes up, they notify you immediately.













