House for sale • 398 m² without real estateHředle - Hředle u Zdic, Středočeský Region
Hředle - Hředle u Zdic, Středočeský RegionPartially equipped • Parking • Cellar 20 m²Prodej rodinného domu s velkým pozemkem v srdci přírody – klid, prostor, soukromí, skvělá dostupnost
Nabízíme k prodeji prostorný dům v klidné části obce Hředle nedaleko Zdic. Lokalita je součástí CHKO Křivoklátsko, oblíbené u turistů a milovníků cyklistiky. Výborná dopravní dostupnost – 4 km od dálnice D5, autem 20 minut na okraj Prahy a 25 minut na okraj Plzně.
Občanská vybavenost a doprava:
• škola a školka v přilehlé obci Zdice (4 km)
• autobusové spojení do Zdic i do Prahy (PID)
• ze Zdic vlakové spojení směr Praha, Plzeň, České Budějovice
• přímo v obci obchod a restaurace, v obci Žebrák (6 km) COOP 24/7
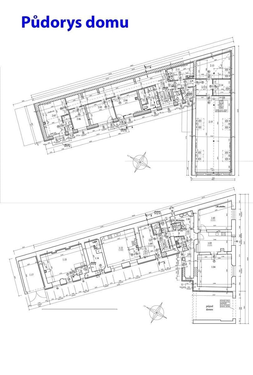
Nemovitost má tvar L a je částečně zrekonstruována – přední část prošla rozsáhlou rekonstrukcí: nová střecha, krov, zateplení, nové rozvody vody a elektřiny, betonové podlahy a stropy, plastová okna, plovoucí podlahy. Nemovitost lze vytápět tuhými palivy i elektrokotlem. Celkem bylo zrekonstruováno přes 200 m² obytné plochy.
Dispozice:
• Přízemí: bytová jednotka 2+1, obývací pokoj, kuchyň, ložnice, koupelna s WC, samostatná toaleta – v současné době pronajímáno
• Patro: bytová jednotka 3+kk, obývací pokoj s kuchyní, prostorná ložnice, pokoj, dvě koupelny s WC, prádelna.
Obě patra mají samostatný vchod, lze je ale propojit v jednu velkou bytovou jednotku.
Další část domu je určena k rekonstrukci, což nabízí skvělou možnost přizpůsobit si nemovitost podle vlastních představ, nebo ji rozšířit. K dispozici jsou již vypracované projekty (dům i stodola). Nemovitost disponuje prostornou zahradou, která skýtá dostatek soukromí.
Celkové parametry:
• obytná plocha: 398 m²
• pozemek: 1 153 m²
• garáž
• stodola v zadní části pozemku: 100 m²
Tento dům je vhodný jak pro vícegenerační bydlení, tak i pro investiční záměr – například pronájem dvou samostatných bytů nebo vybudování penzionu v turisticky atraktivní oblasti.
Property characteristics
| Condition | Good |
|---|---|
| Layout | Other |
| Listing ID | 983450 |
| EPC | G - Extremely uneconomical |
| Usable area | 398 m² |
| Price per unit | CZK 31,910 / m2 |
| Building construction | Mixed |
|---|---|
| Fully furnished | Partly |
| Ownership | Personal |
| Location of the house | Separate |
| Land space | 1,153 m² |
What does this listing have to offer?
| Basement: 20 m² |
| Parking |
What you will find nearby
Still looking for the right one?
Set up a watchdog. You will receive a summary of your customized offers 1 time a day by email. With the Premium profile, you have 5 watchdogs at your fingertips and when something comes up, they notify you immediately.

















