Commercial property for sale • 9657 m² without real estate, Brandenburg
, BrandenburgPublic transport 1 minute of walkingThis well-maintained and versatile commercial property is located in an established industrial area in 14822 Borkheide, with excellent access to the A9 motorway (Berlin – Leipzig – Munich).
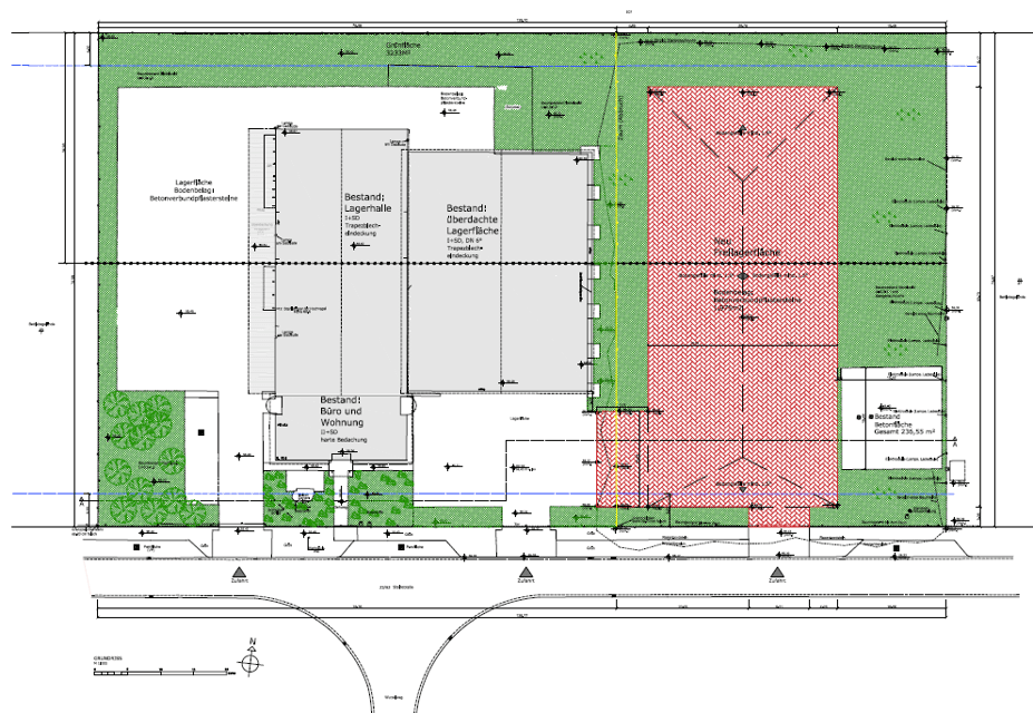
The spacious site covers 9,657 m², of which approximately 6,000 m² is built-up and fenced (including a rolling gate). Additionally, about 3,750 m² of expansion area is available – ideal for future growth or individual usage plans. All traffic areas are paved.
Overview of the property components:
1.) Office and Residential Section (built in 1998)
• Gas condensing technology
• Energy performance certificate type: demand certificate
• Building type: –
• Year of construction according to the energy certificate for the residential building: 1998
• Primary energy source: gas
• Validity: from 24.06.2025 to 23.06.2035
• Efficiency class: D
• Final energy demand: 124.30 kWh/(m²·year)
• Energy source: gas
• Type of heating: central heating
• Ground floor: approx. 150 m² of functional office space
• Upper floor: two apartments measuring 78 m² and 68 m², ideal for staff accommodation
• Electric vehicle charging station available
2.) Cold Hall with Canopy (built in 1998)
• 804 m² of hall space plus 120 m² of covered area
• Hall height approx. 6 m clear height
• 3 large hall doors for optimal logistics
• Industrial concrete flooring, with a bright interior thanks to skylights
3.) Covered Storage (built in 2018)
• 1,047 m² of covered space
• Hall height approx. 6.5 m clear height
• Paved floor, ideal for storage, logistics, or fleet management
Description of the Industrial Area:
The property is located in a developed industrial area, directly adjacent to the A9 motorway south of the Potsdam Triangle. The industrial area (designated since the early ‘90s) is almost completely built-up and hosts industrial, commercial, and service companies.
Description of Borkheide:
Borkheide is a municipality in the center of the Potsdam-Mittelmark district in Brandenburg, and part of the Brück administrative office, with approximately 2,300 inhabitants.
Furnishings (office furniture, heavy-duty shelving, etc.) are not included in the purchase price but can be acquired optionally.
Further Information:
The property is currently in use, but will soon be available for owner occupation.
Versatile usage possibilities include production, storage, logistics, and administration.
Property characteristics
| Age | Over 5050 years |
|---|---|
| Listing ID | 983263 |
| Land space | 9,657 m² |
| Condition | Good |
|---|---|
| Land non-residential space | 9,657 m² |
| Price per unit | €140 / m2 |
What does this listing have to offer?
| Balcony |
| MHD 1 minute on foot |
What you will find nearby
Still looking for the right one?
Set up a watchdog. You will receive a summary of your customized offers 1 time a day by email. With the Premium profile, you have 5 watchdogs at your fingertips and when something comes up, they notify you immediately.


































