House to rent 7+1 • 243 m² without real estateAltötting Altötting Bayern 84503
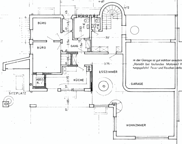
Altötting Altötting Bayern 84503Public transport 2 minutes of walking • GarageA single-family house with an in-law apartment and a very spacious, well-maintained garden was built in 1975 in the Bauhaus style.
On the ground floor, in addition to the dining room and kitchen, there is a very large living room (almost 40 square meters) that faces south.
Additionally, in the western part of the house, there is the in-law apartment with two office rooms as well as a shower and toilet. This apartment has a separate entrance and is currently connected to the rest of the house.
Three large bedrooms and two additional bathrooms are located on the upper floor, along with a south-facing balcony.
In the basement, besides the technical/heating room, there is a laundry room and a storage room. The highlight of the basement is the very spacious hobby room with a large window facade (oriented to the south with a slope that allows plenty of light).
The garage is a double garage – there is room for two cars.
The rental property is located in the west of Altötting, in a residential area in a quiet cul-de-sac, and is oriented to the south.
The house was built in 1975 in the Bauhaus style and has been repeatedly renovated over the years, although the majority remains in its original condition. The bathrooms date from the building period but are very well maintained. In some parts, electric shutters have been installed.
In 2023, the oil heating system was replaced by a district heating connection.
The house was only recently connected to Telekom’s fiber optic network.
Renovations and cosmetic repairs can be carried out by mutual agreement.
To compensate for inflation, a graduated rent is agreed upon. The details will be explained in a personal conversation.
Please send inquiries by email, including your telephone number and possible callback times.
I will be happy to return your call – thank you very much.
Property characteristics
| Age | Over 5050 years |
|---|---|
| Layout | 7+1 |
| EPC | G - Extremely uneconomical |
| Land space | 745 m² |
| Price per unit | €9 / m2 |
| Condition | Good |
|---|---|
| Listing ID | 983252 |
| Usable area | 243 m² |
| Total floors | 2 |
What does this listing have to offer?
| Balcony | |
| Garage | |
| Terrace |
| Basement | |
| MHD 2 minutes on foot |
What you will find nearby
Still looking for the right one?
Set up a watchdog. You will receive a summary of your customized offers 1 time a day by email. With the Premium profile, you have 5 watchdogs at your fingertips and when something comes up, they notify you immediately.






















