
House for sale 5+1 • 254 m² without real estatePforzheim Pforzheim Baden-Württemberg 75172
Pforzheim Pforzheim Baden-Württemberg 75172Public transport 1 minute of walking • GarageThe spacious single-family house built in 1957 is located in the Südweststadt district of Pforzheim on a plot of approximately 458 m², which is extended by an additional leased area of about 360 m². The surroundings are characterized by detached houses, green streets, and a quiet residential atmosphere – ideal for those who want to live centrally yet peacefully.
The living area of around 253.53 m² is spread over three levels. You can access the house via the main entrance as well as directly through the double garage. From there, you are led into the kitchen, which is equipped with a high-quality fitted kitchen (2012) complete with a cooking island. The heart of the ground floor is the open-plan living and dining area, flooded with light thanks to the large windows of the conservatory. An open fireplace adds extra charm. From the living room, you can step out onto the generous south-facing terrace (52 m²), which is partially covered by a massive pavilion and provides direct access to the garden.
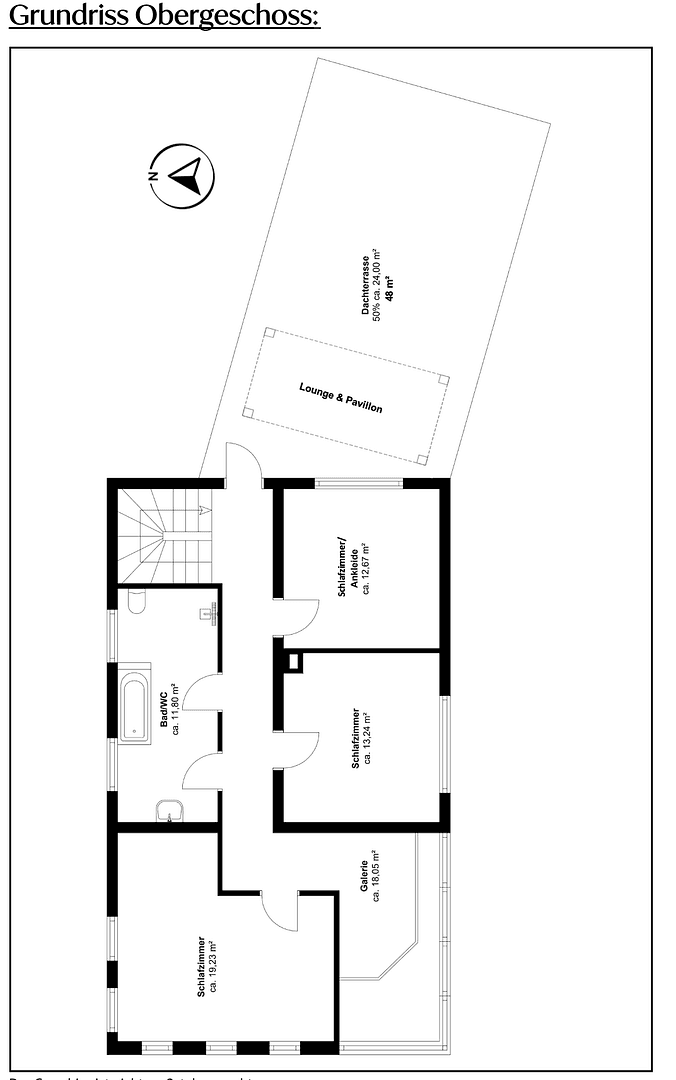
On the upper floor, there are three well-proportioned rooms that can be flexibly used as a bedroom, children’s room, office, or guest room. The open gallery overlooking the living room ensures a bright ambiance here as well. This floor is complemented by a large bathroom featuring a bathtub, shower, and double sink. From the hallway, you enter the spacious roof terrace (48 m²), which is partially covered by a massive pavilion and offers a picturesque view over Pforzheim’s rooftops. Thanks to its free orientation in all directions, you can enjoy sunlight throughout the day – perfect for breakfast, relaxation, or social evenings.
The lower level offers, in addition to a boiler room, utility room, and laundry room, another generously sized bedroom with access to the third terrace (15 m²), which is connected to the garden via a natural stone staircase. Due to the slope, this room also receives plenty of daylight, making it bright and inviting. This floor is rounded off by an additional shower room.
The house is fitted with high-quality, well-maintained features: the living areas feature oak parquet, while the bathrooms, entrance area, and utility rooms are equipped with low-maintenance tiles, and some of the bedrooms have carpeted floors. The house predominantly has wooden windows with double glazing. Additional safety is provided by the windows on the ground and lower levels, which are fitted with safety glass. The conservatory is shaded by an automatically or manually controllable external shading system, while electric shutters are used in the other rooms.
The house is heated by an oil-fired heating system (1993) that warms all rooms via radiators.
The outdoor terraces are equipped with anthracite-colored tiles (2021). The property is very well maintained: the green areas are landscaped, and the garden fences have been renewed. Irrigation is managed by a smart-controlled system, and the lawn is mostly mowed by a robotic mower. A small pond, an outdoor shower, a wooden shed, a wood storage area, and the massive, covered pavilion area on the terrace complete the offering. Additionally, water and electricity connections are available around the house to ease garden maintenance.
The single-family house is located in the Südweststadt district of Pforzheim, a quiet and well-established residential area that gains special charm from its hilly structure and beautiful views. At the same time, the city center with its pedestrian zone and marketplace is quickly accessible – in about 5 minutes by bike or 10–15 minutes on foot. Thus, the Südweststadt combines a pleasant residential atmosphere with excellent connectivity to downtown.
For everyday needs, numerous shopping opportunities are available in the immediate vicinity: Edeka, Aldi, Lidl, and Rewe can be reached within a few minutes by car or even on foot. In addition, there are bakeries, pharmacies, and smaller specialty shops. Cafés and restaurants can be found both in the Südweststadt and in the nearby city center.
Families benefit from good infrastructure: several daycare centers are within walking distance. In the nearby area are the Osterfeld Primary School, Otterstein School, and Weiherberg School – all conveniently accessible on foot, by bicycle, or by bus. Secondary schools such as Hebel Gymnasium, Hilda Gymnasium, Otterstein Realschule, as well as Osterfeld Realschule are also quickly and easily accessible.
For relaxation, the immediate nature, small green spaces, and playgrounds in the district invite you to unwind. Sports activities can be enjoyed on the surrounding sports fields as well as in local sports clubs. The popular Enzauenpark is reachable by bicycle in around 20 minutes and invites you for walks and leisure activities. A special highlight for families is the Wildpark Pforzheim, which can be reached by car in about 10 minutes. Also nearby is the Gasometer Pforzheim, whose changing 360° panoramic exhibitions make it a cultural attraction well beyond the city limits.
The transport connections are excellent: several bus lines run through the Südweststadt, providing a direct connection to downtown and the main railway station. Pforzheim’s main station is only about 1.5 kilometers away and can be reached on foot or by bus in just a few minutes. Karlsruhe, Stuttgart, and the entire region are easily accessible via the B10 and A8 motorways.
The Südweststadt combines quiet living, short distances to shops, schools, daycare centers, and cultural attractions, as well as an ideal transport connection – an attractive location for both families and professionals.
Land: approx. 458 m² + leased area approx. 360 m²
Living area: approx. 253.5 m² spread over three levels
Floors: oak parquet, tiles, carpet
Windows: wooden windows with double glazing, safety glass in ground floor & lower level
Shading: external shading in the conservatory, electric shutters in the other rooms
Heating: oil-fired heating system (1993) via radiators
Terraces: garden terrace (ground floor) 52 m², roof terrace 48 m², lower level terrace 15 m², partially covered with pavilion
Kitchen: high-quality fitted kitchen (2012) with cooking island
Extras: open fireplace, conservatory, well-maintained and high-quality landscaped green areas
All additional costs such as the real estate transfer tax of 5% of the purchase price as well as the notary and court fees are to be borne by the buyer.
Property characteristics
| Age | Over 5050 years |
|---|---|
| Layout | 5+1 |
| EPC | G - Extremely uneconomical |
| Land space | 818 m² |
| Price per unit | €3,146 / m2 |
| Condition | Good |
|---|---|
| Listing ID | 982933 |
| Usable area | 254 m² |
| Total floors | 2 |
What does this listing have to offer?
| Basement | |
| MHD 1 minute on foot |
| Garage | |
| Terrace |
What you will find nearby
Still looking for the right one?
Set up a watchdog. You will receive a summary of your customized offers 1 time a day by email. With the Premium profile, you have 5 watchdogs at your fingertips and when something comes up, they notify you immediately.































