Recreational property for sale 3+1 • 75 m² without real estate, Mecklenburg-Vorpommern
, Mecklenburg-VorpommernPublic transport 2 minutes of walkingExclusive Houseboat (Floating Yacht) with Mooring on Usedom – Premium Holiday Property
- Sustainable, comfortable, ready for charter -
Live your dream of life on the water: We offer you a high-quality steel floating yacht (Made in Germany) in Category C (coastal) – fully equipped for charter operations and ideal for private use or professional leasing.
Take advantage of the IAB and achieve a very high return.
We have reserved an attractive mooring space for you on the sunny island of Usedom.
A leasable mooring space (suitable for 12-month all-year charters) is located in the inland area, at Germany’s longest pier.
Long-term leasing available (e.g., 10 years)
Fully equipped marina with all charter-related services
We can also take care of the full-service package for you:
Marketing & Booking Management
Cleaning & Guest Services
Technical Maintenance & Service
Highlights at a glance:
- Sustainable steel hull and robust steel superstructure for lifelong, maintenance-free durability
- Exclusive, durable interior design for years of use
- Organic wastewater treatment system & drinking water purification – self-sufficient and environmentally friendly
- Heating & air conditioning with modern heat pump technology
- Quiet electric drive: 50 kW / 48 V
- Spacious battery storage with high capacity
Ideal for comfortable living, year-round use, and charter operations
Interested?
We are happy to answer your questions and provide personal advice on equipment, usage possibilities, and charter concepts.
Contact us – we look forward to hearing from you!
Property characteristics
| Age | Over 5050 years |
|---|---|
| Listing ID | 982822 |
| Price per unit | €6,847 / m2 |
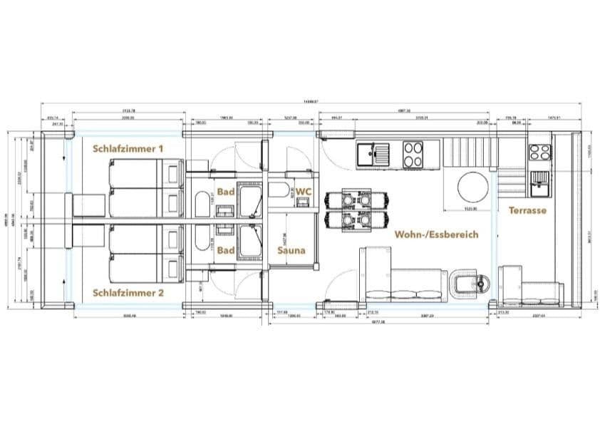
| Layout | 3+1 |
|---|---|
| Usable area | 75 m² |
What does this listing have to offer?
| MHD 2 minutes on foot |
| Terrace |
What you will find nearby
Still looking for the right one?
Set up a watchdog. You will receive a summary of your customized offers 1 time a day by email. With the Premium profile, you have 5 watchdogs at your fingertips and when something comes up, they notify you immediately.










