
House for sale • 455 m² without real estateHamburg Stellingen Hamburg 22525
Hamburg Stellingen Hamburg 22525Public transport 2 minutes of walking • GarageBelow is the English translation of the XML-tagged text:
At issue is an architect-designed multi-family house with five residential units in a popular location in the Eimsbüttel district. The building was constructed using load-bearing masonry. The plot covers a generous 1,394 m² and offers a large garden at the rear, which is available to all tenants. The total living area is approximately 455 m².
The residential units are structured as follows:
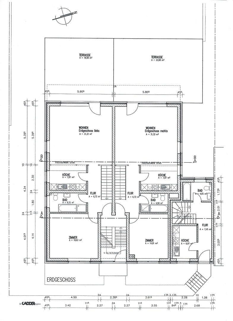
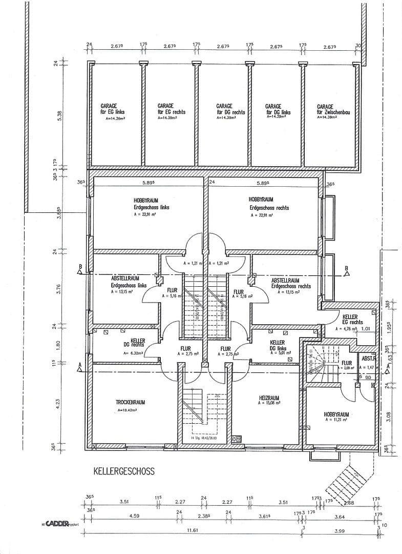
• Unit 1: Ground floor maisonette apartment, left: 2 rooms plus a hobby room and a basement storage room
Living area approx. 110 m²
• Unit 2: Ground floor maisonette apartment, right: 2 rooms plus a hobby room and a basement storage room
Living area approx. 110 m²
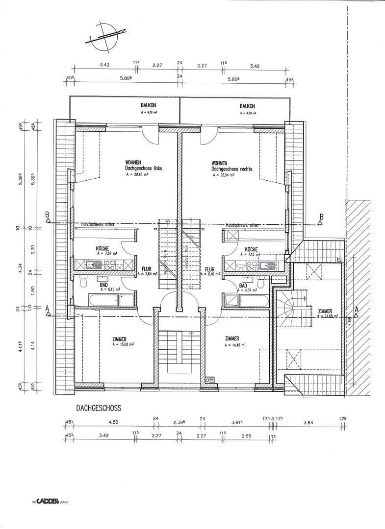
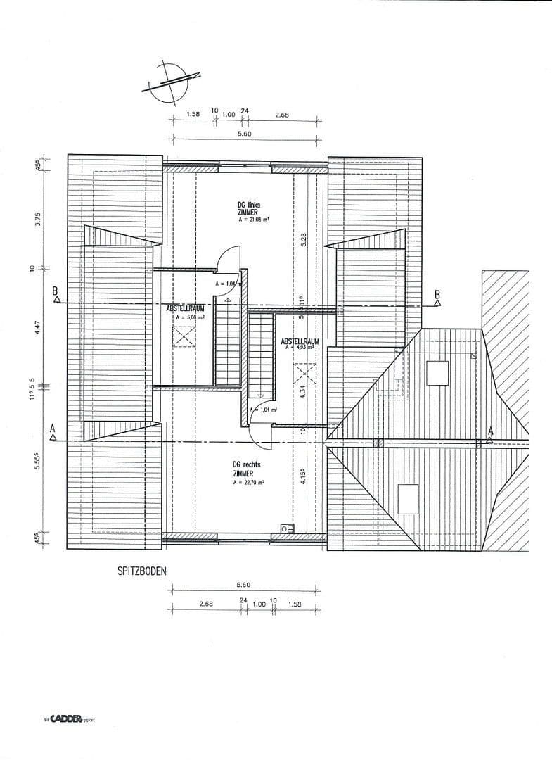
• Unit 3: Attic maisonette apartment, left: 3 rooms plus a basement storage room
Living area approx. 98 m²
• Unit 4: Attic maisonette apartment, right: 3 rooms plus a basement storage room
Living area approx. 96 m²
• Unit 5: Intermediate building: 1 room plus a hobby room
Living area approx. 41 m²
All residential units are equipped with functional fitted kitchens and full bathrooms.
In all maisonette apartments, the area between the living and the kitchen is spatially separated by a high-quality timber-framed wall and a breakfast counter. The living and kitchen area, the hallway, and the bathrooms are tiled. The apartments come with a full bathroom that includes a shower. From the terrace (ground floor maisonettes) and from the balcony (attic maisonettes) one can enjoy an unobstructed view of the green garden. The balconies are each equipped with awnings.
The apartment in the intermediate building is accessible via a separate entrance.
All tenants have access to the laundry and drying cellar. Both a washing machine and a dryer (each operated by coin) are provided.
The communal garden invites relaxation and lingering. The paved barbecue area with a grill chimney can be used by all tenants. A spacious bicycle shed as well as an additional shed for garden tools are also available.
The property includes five garages that are rented to the tenants.
All residential units and garages are rented. The current rent corresponds to the target rent of €55,440 per annum (cold rent for all apartments including garage rent). The rental prices of the apartments are subject to regular increases in accordance with the current Hamburg rent index. Separate rental contracts have been concluded for the garages.
A new gas condensing boiler system was installed in 2021. The district heating lines have already been laid in the street so that a connection to district heating could be envisioned in the future. The house is located in an area with fiber-optic expansion. Currently, Telekom is unable to specify when the fiber-optic house connection will take place.
The water pipe damage from 17.04.2025 was repaired by the Allianz Handwerker Service with a 6-year warranty guarantee.
The architect-designed multi-family house on a 1,394 m² plot is located in Hamburg-Stellingen. The bustling center of Eimsbüttel surrounding Osterstraße as well as the "Thyssen-Krupp / Diebsteich area" (with a planned music hall among other things and a district heating road) are within walking distance and easily reachable by bicycle. The house is situated on a side street, which is also planned to be used as a bicycle route by the Hanseatic City of Hamburg in the future. The "Park am Ziegelteich" with its green oases and a large, enclosed adventure playground is in the immediate vicinity and invites outdoor activities.
Bakeries, supermarkets, gyms, daycare centers, primary schools, pharmacies, and general practitioners are all located within a maximum radius of 800 m. The heart of Eimsbüttel (the popular Osterstraße) with its diverse range of shops, cafés, restaurants, and doctors is also quickly accessible on foot or by bicycle (approx. 950 m). The nearest weekly market is on Grundstraße. The nearby secondary schools further underline the exceptionally family-friendly location.
Public transport connections are excellent and quickly reachable on foot:
- S-Bahn lines (S2 and S5) from Diebsteich (in the future: the new Altona long-distance station).
Both the S2 and S5 offer a direct connection to the Hamburg city center.
- Bus lines 115 and 183
The A7 motorway (AS Stellingen) can be reached by car in about 15 minutes and offers optimal transport connections in all directions, including Hamburg Airport.
The immediate surroundings of the property combine peaceful, green living with optimal access to urban life – a location that is in permanent demand among both tenants and investors.
The architect-designed multi-family house on a 1,394 m² plot in Hamburg-Stellingen is privately owned. We intend to sell it without the involvement of an agent.
We are happy to provide you with further details upon request and to present the property in the context of a personal and comprehensive viewing. We ask for your understanding that we can only process email inquiries that include your name, address, and telephone number. Complete details including a mobile phone number and email address are advantageous. We look forward to hearing from you.
Property characteristics
| Age | Over 5050 years |
|---|---|
| Listing ID | 982782 |
| Usable area | 455 m² |
| Total floors | 1 |
| Condition | Good |
|---|---|
| EPC | D - Less economical |
| Land space | 1,394 m² |
| Price per unit | €4,835 / m2 |
What does this listing have to offer?
| Balcony | |
| Garage | |
| Terrace |
| Basement | |
| MHD 2 minutes on foot |
What you will find nearby
Still looking for the right one?
Set up a watchdog. You will receive a summary of your customized offers 1 time a day by email. With the Premium profile, you have 5 watchdogs at your fingertips and when something comes up, they notify you immediately.










