House for sale 5+1 • 105 m² without real estateSteinweg, , North Rhine-Westphalia
Steinweg, , North Rhine-WestphaliaPublic transport 2 minutes of walking • ParkingWe offer 3 townhouses in a new development area in Lage-Billinghausen (Steinweg) for turnkey sale. The houses are being built to the Effizienzhaus 40 standard (KfW funding possible).
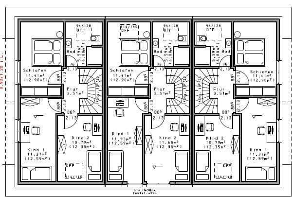
The living area is approximately 105 m² each.
The price includes the land:
House 1 (left): €349,800
House 2 (middle): €319,800 (reserved)
House 3 (right): €342,900
Please refer to the attached images and files for the exact location of the plots.
We look forward to hearing from you and are happy to provide you with further information.
Billinghausen is a district of the town of Lage in the Lippe district, North Rhine-Westphalia, and is located about 4.5 kilometers southwest of Lage’s center. The area is characterized by a harmonious mix of rural idyll and excellent infrastructure. With around 1,900 inhabitants, Billinghausen offers a quiet, family-friendly residential environment with a village-like character and a well-established community.
The district is surrounded by fields, small woodlands, and the typical Lippe landscape. The buildings consist of single-family and multi-family houses, historic farms, as well as newer residential areas, particularly in the Billinghauser Heide. In the village center, there are some old farmhouses that date back a long time. Billinghausen is well connected in terms of transport: via the nearby B66 and B239, one can quickly reach surrounding cities such as Lage, Detmold, Lemgo, or Bad Salzuflen. Public transport connects Billinghausen regularly with the center of Lage and other districts.
Within the village itself, there is a kindergarten, an elementary school, as well as various clubs that shape community life. Shopping opportunities, doctors, secondary schools, and all essential services can be found in the nearby town center of Lage. The green surroundings invite you to take walks, enjoy bicycle tours, and partake in diverse leisure activities.
Billinghausen combines the advantages of a nature-close, peaceful living environment with the excellent accessibility of urban amenities – ideal for families, nature lovers, and anyone seeking a relaxed living atmosphere.
Property characteristics
| Age | Over 5050 years |
|---|---|
| Condition | New-build |
| Listing ID | 982591 |
| Land space | 634 m² |
| Price per unit | €3,046 / m2 |
| Available from | 01/03/2027 |
|---|---|
| Layout | 5+1 |
| Usable area | 105 m² |
| Total floors | 3 |
What does this listing have to offer?
| Parking | |
| Terrace |
| MHD 2 minutes on foot |
What you will find nearby
Still looking for the right one?
Set up a watchdog. You will receive a summary of your customized offers 1 time a day by email. With the Premium profile, you have 5 watchdogs at your fingertips and when something comes up, they notify you immediately.






