Flat for sale 1 bedroom • 30 m² without real estateMainz Marienborn Hessen 55127
Mainz Marienborn Hessen 55127Public transport 3 minutes of walking • LiftFor sale is a completely freshly renovated and fully furnished one-room designer apartment in Mainz. The apartment covers approximately 30 m² and is ideal as a student apartment or for commuters who do not want to sacrifice either design or living comfort. Thanks to the attractive location and well thought-out layout, this apartment will continue to enjoy high demand from prospective tenants – a rewarding investment with long-term value stability.
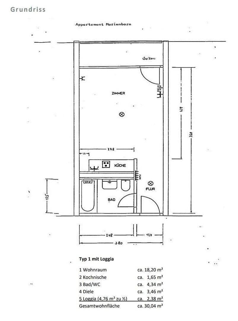
The apartment has been renovated and furnished in a modern, high-quality style and is ready for immediate occupancy or rental. The clear and well-conceived layout makes efficient use of the living space; living, sleeping, and working can be combined in a harmonious concept. The sun balcony, overlooking lush greenery, spans the entire living area and invites you to relax.
**Key Numbers and Facts for Your First Capital Investment**
Purchase Price: 145,000 EUR
Net rent: 650 EUR (650 x 12 months = 7,800 EUR per annum)
Service charge: 198 EUR, of which 130 EUR can be passed on to the tenant. Your share is only 68 EUR per month, with the largest part going into the reserve.
Don’t want to leave your retirement to chance? Then don’t wait any longer – take care of it today. The apartment not only catches the eye with its appearance, but it also makes financial sense!
The residential complex impresses not only with its well-maintained appearance, but also with its excellent location. Mainz-Marienborn combines proximity to the city with nature-oriented living. Thanks to its good connections to public transportation as well as the highways leading towards Rhein-Main and Rheinhessen, this location is particularly attractive for commuters.
For nature lovers and those seeking relaxation, the surrounding fields, meadows, and bike paths offer ideal opportunities to unwind and escape everyday life. At the same time, shopping facilities, restaurants, and other important amenities are nearby.
- Freshly renovated & furnished – move in immediately or rent out (there is already a potential tenant).
- Smoothly plastered walls for a quiet, high-quality finish
- High-quality designer flooring in parquet look
- New, modern shower room with black fittings and sauna tiles
- New fitted kitchen
- Fully equipped including a box-spring bed, wardrobe (Jutzler), desk, and additional furniture from XXXL-Lutz
- The apartment includes its own basement storage room, accessible without steps – a practical addition for extra storage.
Directly from the owner, without any broker’s commission.
Property characteristics
| Age | Over 5050 years |
|---|---|
| Condition | After reconstruction |
| Floor | 3. floor out of 6 |
| EPC | E - Wasteful |
| Price per unit | €4,833 / m2 |
| Available from | 29/01/2026 |
|---|---|
| Layout | 1 bedroom |
| Listing ID | 982555 |
| Usable area | 30 m² |
What does this listing have to offer?
| Balcony | |
| Basement | |
| MHD 3 minutes on foot |
| Wheelchair accessible | |
| Lift |
What you will find nearby
Still looking for the right one?
Set up a watchdog. You will receive a summary of your customized offers 1 time a day by email. With the Premium profile, you have 5 watchdogs at your fingertips and when something comes up, they notify you immediately.











