
Flat for sale 4+1 • 105 m² without real estate, Bavaria
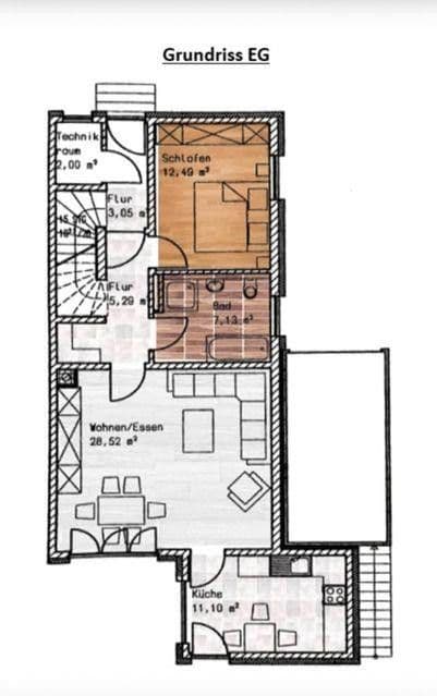
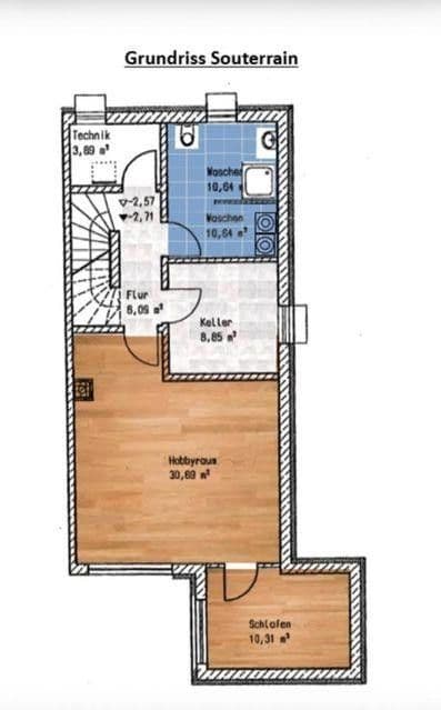
, BavariaPublic transport less than a minute of walking • Parking • GarageModern ground-floor apartment with a private garden, spacious basement level, and energy-efficient construction (KfW-40, heat pump, solar system). Bright rooms, well-maintained condition, and a thoughtful layout ideal for families, couples, or home office setups. A sleeping nook in the basement allows for flexible use. Low ancillary costs are ensured by innovative heating technology. Perfect location for commuters to Augsburg and Munich.
Mering offers excellent daily infrastructure and combines peaceful living with outstanding transport connections. The family-friendly residential area is characterized by a pleasant neighborhood and short distances. The public transport connections are ideal: Mering train station enables quick access to Augsburg (about 15 minutes) and Munich (about 25 minutes) – a significant advantage for commuters. Additionally, the nearby federal highway B2 provides fast connections to the regional and national road network.
Numerous shopping opportunities, doctors, kindergartens, primary and secondary schools, as well as a wide range of gastronomic offers are located on site, ensuring a high quality of life. The leisure and recreation options are just as impressive: outdoor swimming pools, lakes, cycling and hiking trails, along with various nearby recreational facilities invite active leisure activities.
The property, built in 2009, meets the KfW-40 standard and impresses with its exceptionally energy-efficient construction. A groundwater heat pump, complemented by a modern solar system installed in 2024, provides sustainable and cost-effective heating. Radiant floor heating in all rooms ensures a pleasant and even indoor climate.
The apartment is in very well-kept condition and boasts bright, light-flooded rooms. An equipped kitchen is included in the purchase price, paving the way for immediate move-in. Additionally, the property features a fiber-optic connection, offering ideal conditions for a home office and modern living.
Completing the offer is a garage and an additional parking space, both of which can be purchased together for €20,000.
Property characteristics
| Age | Over 5050 years |
|---|---|
| Condition | Very good |
| Listing ID | 982494 |
| Usable area | 105 m² |
| Available from | 31/07/2026 |
|---|---|
| Layout | 4+1 |
| EPC | A - Extremely economical |
| Price per unit | €5,238 / m2 |
What does this listing have to offer?
| Basement | |
| Parking | |
| Terrace |
| Garage | |
| MHD 0 minutes on foot |
What you will find nearby
Still looking for the right one?
Set up a watchdog. You will receive a summary of your customized offers 1 time a day by email. With the Premium profile, you have 5 watchdogs at your fingertips and when something comes up, they notify you immediately.














