Office to rent • 63 m² without real estateKleine Kirchgasse 1, , Saxony
Kleine Kirchgasse 1, , SaxonyPublic transport 1 minute of walkingRenting bright rooms on the ground floor of a completely renovated building in the center of Oederan (Kleine Kirchgasse – pedestrian zone)
Suitable for an office, practice, studio, or storage
Plenty of space to realize your own business idea, for a hobby, or simply as storage.
Sanitary and electrical installations renewed in 2023
Heating (gas condensing) renewed in 2024
Fiber-optic internet
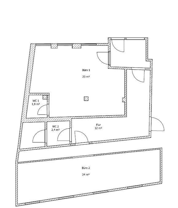
The space consists of 2 offices
Office 1 (street side) – 25 m²
Office 2 (courtyard side) – 24 m² plus a hallway as agreed
Each with a separate WC
The offices have daylight and can be locked individually
Available separately or as a complete unit for rent
We look forward to your inquiries.
Available from 01.03.2026
Terraced house in the center of Oederan in a pedestrian zone. Good access – ground floor.
Free parking (partly with parking meters during the day) in the immediate vicinity.
Bus stop 50 m away.
Complete redevelopment in 2022-2025.
Property characteristics
| Age | Over 5050 years |
|---|---|
| Condition | Very good |
| Land office | 63 m² |
| Available from | 01/03/2026 |
|---|---|
| Listing ID | 982255 |
| Price per unit | €0 / m2 |
What does this listing have to offer?
| MHD 1 minute on foot |
What you will find nearby
Still looking for the right one?
Set up a watchdog. You will receive a summary of your customized offers 1 time a day by email. With the Premium profile, you have 5 watchdogs at your fingertips and when something comes up, they notify you immediately.






