
Flat to rent 3+1 • 75 m² without real estate, Hesse
, HessePublic transport 2 minutes of walking • ParkingThis apartment features a balcony and offers a beautiful view of nature from every room.
Absolutely quiet location!
A nine-family house.
Many tenants have been living there for a very long time.
Children are welcome; there are already children in the building.
Pets are not permitted to move in!
The cleaning of the staircase and basement corridors, as well as putting out the trash bins, is carried out on a weekly rotation by the nine tenant groups. This cooperation is positively reflected in the utility bill.
Ludwig-Gerhardt-Strasse is located in the well-to-do area of Taunusstein-Bleidenstadt.
It is a bit uphill when you want to do all your shopping on foot.
Taunusstein-Bleidenstadt has a lively town center—Aarstrasse—with many shopping opportunities.
Wiesbaden’s city center is about 14 kilometers away.
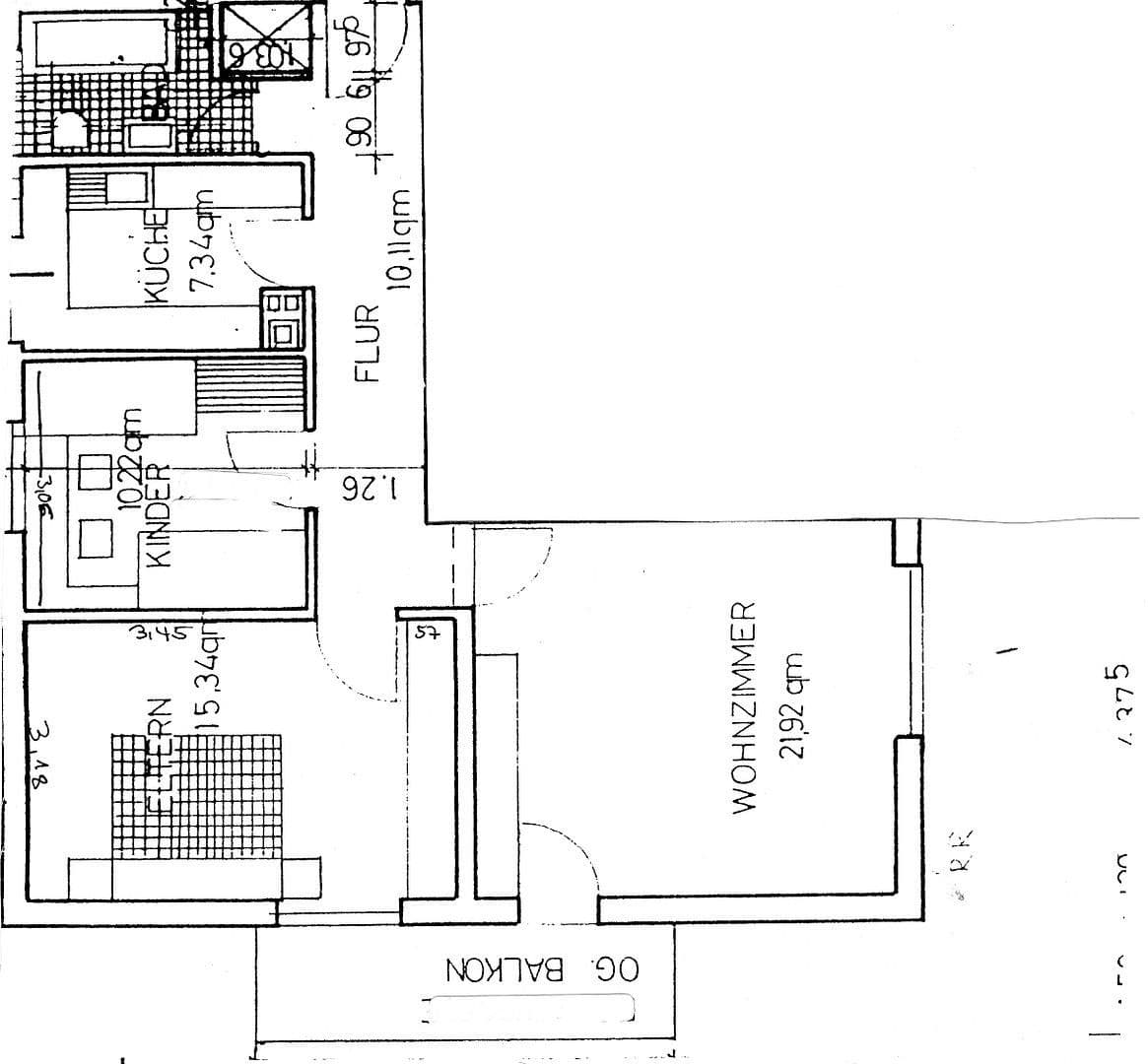
The bathroom, renovated in 2000, has a window, a bathtub, a washbasin, and a toilet.
The kitchen is furnished, including a modern dishwasher.
All rooms have large windows (see photos).
There is parquet flooring in all rooms; the kitchen and bathroom have large floor tiles.
A spacious basement storage room and a laundry drying room are available.
In the drying room, there is space for the washing machine and an optional tumble dryer.
There is one available parking space for a vehicle; the monthly rent for the space is €20.
Pets are not allowed to move in.
A non-smoking couple is sought!
Property characteristics
| Age | Over 5050 years |
|---|---|
| Layout | 3+1 |
| Listing ID | 982183 |
| Usable area | 75 m² |
| Condition | Good |
|---|---|
| Floor | 1. floor out of 2 |
| EPC | C - Economical |
| Price per unit | €11 / m2 |
What does this listing have to offer?
| Balcony | |
| Parking |
| Basement | |
| MHD 2 minutes on foot |
What you will find nearby
Still looking for the right one?
Set up a watchdog. You will receive a summary of your customized offers 1 time a day by email. With the Premium profile, you have 5 watchdogs at your fingertips and when something comes up, they notify you immediately.







