House for sale • 202 m² without real estateKassel Niederzwehren Hessen 34134
Kassel Niederzwehren Hessen 34134Public transport 3 minutes of walkingThis unique multi-family house, built in 1936, offers numerous possibilities for various usage concepts. The solidly constructed 3-unit property can continue to serve as a classic multi-family house, but it can also easily be used as a spacious single-family home or within the popular multi-generational concept. With a total living area of approximately 202 m² spread over three floors, the property provides ample room for individual design ideas – a genuine fixer-upper with great potential for creative transformation.
The property is completely fenced and accessible via an electric gate entrance, ensuring not only privacy but also functionality. Right next to the house there is a garage, although it currently lacks a door.
On the ground floor, you will find a well-thought-out room layout: In addition to the spacious living area, there is an adjoining kitchen that leads directly to the attached veranda. This addition creates a harmonious transition to the garden and invites you to linger both on sunny and overcast days.
A true highlight is the well-maintained, generously sized garden with a pavilion that can be used in a variety of ways and invites relaxing or socializing. The garden is fully fenced, making it ideal for a relaxed life surrounded by greenery.
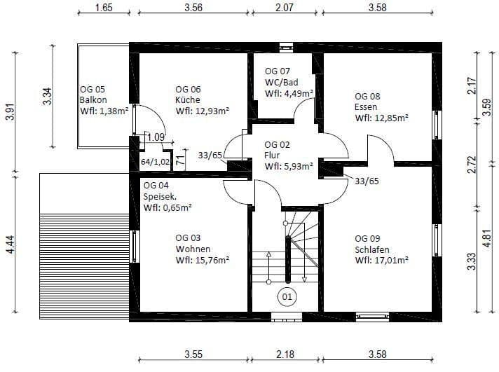
On the upper floor, in addition to more spacious rooms, there is a balcony equipped with a sunshade, providing a pleasant outdoor retreat – whether you are seeking shade on warm summer days or simply want to enjoy the garden atmosphere.
The house has a full basement, offering plenty of extra storage space, room for hobbies, or a workshop. Heating is currently provided by an oil heating system, with long-term opportunities for energy-efficient modernizations and individual adaptations.
The property is vacant and awaiting its new owners, who can bring a variety of ideas to life here. The layout of the three separate units opens up possibilities for usage by multiple parties, for merging into a large single-family home, or a combination of owner-occupied and rental. Whether for families, craftsmen, or investors – this house offers numerous possibilities.
Property characteristics
| Age | Over 5050 years |
|---|---|
| Condition | Before reconstruction |
| EPC | G - Extremely uneconomical |
| Land space | 458 m² |
| Price per unit | €1,480 / m2 |
| Available from | 29/01/2026 |
|---|---|
| Listing ID | 982019 |
| Usable area | 202 m² |
| Total floors | 4 |
What does this listing have to offer?
| Balcony | |
| MHD 3 minutes on foot |
| Basement | |
| Terrace |
What you will find nearby
Still looking for the right one?
Set up a watchdog. You will receive a summary of your customized offers 1 time a day by email. With the Premium profile, you have 5 watchdogs at your fingertips and when something comes up, they notify you immediately.





















