House for sale 7+1 • 147 m² without real estate, Lower Saxony
, Lower SaxonyPublic transport 2 minutes of walking • Parking • GarageFor sale is a detached, fully cellar-equipped family house built in 1968 in solid construction on an expansive 828 m² privately owned plot with a large garden and a double garage. It is located in an absolutely idyllic setting near the forest, in the sought-after Klein Hehlen district of Celle, and offers approximately 147 m² of pure living space along with additional, extensive usable space – providing plenty of room and flexibility for your family.
On the ground floor you will find an open, light-filled entrance hall which, together with its fireplace area and the adjoining dining area, forms the communicative heart of the house. From here, you can access the separate living room that offers a cozy retreat and invites you to enjoy views of the outdoors through its broad window fronts. The garden and south-facing terrace are a true highlight, offering many possibilities to bring the green areas and garden beds to life exactly as you envision. Additionally, in the entrance area there is a guest or office room with an adjacent guest WC, and right next to the kitchen there are two further small utility rooms, for example for pantries or storage.
On the upper floor there is a large bedroom with direct access to a sun-drenched balcony. Adjacent to this are two rooms which can be well used as dressing rooms or children’s rooms. Furthermore, in the area of the former attic, there is an additional room available that is ideal as a separate youth room or alternatively as a completely separable guest area with access to the main bathroom. Another shower room is located immediately adjacent to it.
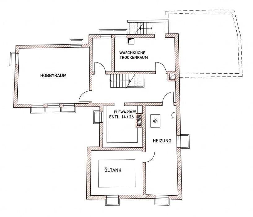
In the cellar there is another large, fully heated room that is perfect as a hobby room or quiet office – ideal for an undisturbed home office. In addition, there is a large laundry cellar with direct access via an outdoor staircase to the north side of the garden. Alongside the boiler room including a partitioned oil storage room, there are two further storage rooms with plenty of space.
The building’s structure is extremely solid and was originally designed as an architect’s house, far removed from today’s lightweight construction, with an individual focus on high quality and durability. The house has been freshly renovated and almost all living and hallway areas have received new flooring and fresh paint. Furthermore, minor energy-efficiency improvements have recently been implemented; however, further energetic modernizations in the areas of heating and insulation will certainly be worth considering in the future.
The family house is located in a quiet and established residential area in the popular Celle district of Klein Hehlen. The neighborhood is characterized by well-maintained family homes and the immediate proximity to the forest. You are just minutes away from nature, yet daily shopping facilities are within walking or cycling distance. Pedestrians, dog owners, and nature lovers will particularly appreciate the location. Doctors, pharmacies, as well as kindergartens and schools are also in the immediate vicinity. At the same time, you are only a few minutes’ drive from Celle’s city center with its historic old town.
The transport connections are also very favorable for commuters. The well-accessible feeder roads provide quick access in the direction of Hanover or Brunswick.
• Solid construction, reinforced concrete ceilings with excellent sound insulation, Leca masonry (interior and cellar exterior walls), sand-lime brick (exterior walls)
• Fully cellar-equipped
• Double garage with remote control automation directly attached to the house
• Two additional parking spaces right on the property / on the driveway
• Oil-fired heating system dating from 1992, regularly serviced by professionals, partially modernized (including a new burner), and to our knowledge currently not subject to immediate replacement requirements (low-temperature boiler); if in doubt, consult with a specialist
• 10,000-liter fuel oil tank in a separate oil storage room
• Fireplace with a genuine, brick-built chimney (not a retrofitted stainless steel flue)
• High-quality and durable natural stone flooring on the ground floor
• New flooring in the living and hallway areas: vinyl or carpet
• Completely new tiling in the cellar area
• Sunny, expansive south-facing terrace
• South-facing balcony
• Electric shutters and awnings
• Fitted kitchen, functional but showing its age, however with some recently purchased new electrical appliances (which can be taken over as a temporary solution upon request)
• Covered outdoor seating / outdoor lounge area in the garden
• Mature trees and tall hedges along the property boundary ensure privacy
• Automatic irrigation system / electric lawn sprinklers
• Groundwater well with pump
• Garden pond / high pond system in the existing property, with a wooden edging that is in need of repair
• Laundry cellar with a covered outdoor access
• Laundry chute directly from the upper and ground floors to the laundry cellar
• Custom-made, high-quality built-in wardrobes with plenty of storage space
• Recently erected, robust fence along the northern property boundary
• Fiber-optic connection for contemporary internet access
In addition to the purchase price, aside from the customary ancillary purchase costs, no additional commission or broker’s fee is due.
Property characteristics
| Age | Over 5050 years |
|---|---|
| Layout | 7+1 |
| EPC | G - Extremely uneconomical |
| Land space | 828 m² |
| Price per unit | €2,578 / m2 |
| Condition | After reconstruction |
|---|---|
| Listing ID | 981752 |
| Usable area | 147 m² |
| Total floors | 2 |
What does this listing have to offer?
| Balcony | |
| Garage | |
| MHD 2 minutes on foot |
| Basement | |
| Parking | |
| Terrace |
What you will find nearby
Still looking for the right one?
Set up a watchdog. You will receive a summary of your customized offers 1 time a day by email. With the Premium profile, you have 5 watchdogs at your fingertips and when something comes up, they notify you immediately.














































