
Flat to rent 4+1 • 132 m² without real estateJügesheimer Weg 31, , Hesse
Jügesheimer Weg 31, , HessePublic transport 3 minutes of walking • Lift • ParkingHere is the translation:
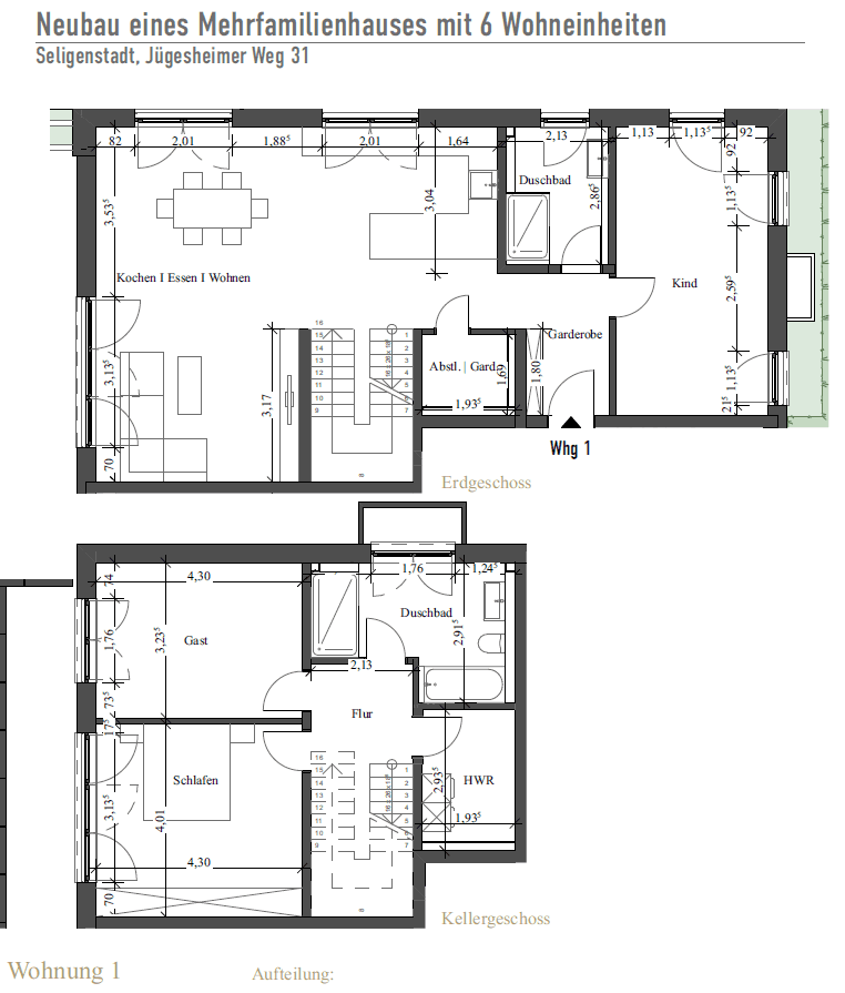
This stylish ground floor apartment impresses with its upscale features, a clever layout spanning two levels, and the unique charm that you can become the first tenant here.
On the ground floor, you will find a spacious living and dining area with an open kitchen – the ideal center for sharing moments with family and friends. This level is complemented by a bright children's room and a modern bathroom.
A real highlight is the light-filled master bedroom in the basement. Due to its quiet location and the adjacent, generously sized bathroom with a bathtub, it creates a private retreat that guarantees relaxation and a feel-good atmosphere.
The living areas on the ground floor offer direct access to the terrace and garden, which can be used as a second living room outdoors. A practical basement storage room additionally provides extra space.
This is a home where modern living, privacy, and comfort are ideally combined.
The heart of the apartment is the impressively spacious living and dining area with an open kitchen – around 45 m² dedicated to life, cooking, and relaxing. Large windows provide plenty of light and an airy feeling. The west-facing balcony offers sunshine well into the evening – perfect for unwinding after a long day.
The apartment is located in a quiet cul-de-sac – completely free of through traffic – and thus offers a relaxed living atmosphere while still providing convenient access to all important facilities.
Move in, feel at home, and settle in – this apartment combines modern design, comfort, and a quiet location into the perfect home.
The property is situated in a quiet cul-de-sac in Seligenstadt Froschhausen. Its connection to the highway is ideal.
Bus lines 58 and OF-85 can be reached on foot.
Within walking distance there are several restaurants, a café, and a doctor. You will also find a green park and recreational area, a post office, a pharmacy, and a hairdresser on site.
The features are modern and well thought-out:
- High-quality vinyl flooring in trendy oak-look design
- Heat pump with cooling function – sustainable and comfortable
- Stylish bathroom with modern fixtures
- Separate guest WC
- Walk-in shower
- Bathtub
- Practical storage room with space for a washing machine and dryer
- Elevator in the building for convenient access
- A second parking space can be rented if needed
- Satellite reception
- Fiber optic connection
- Large tenant storage room of nearly 4 m²
- Lockable bike garages on the property, also for e-bikes
- Custodial service included – you don’t have to worry about a thing
We appreciate your interest in the apartment. To help us get a better picture, please include a few words about yourself in your inquiry (for example, your occupation, your living situation, the number of people moving in, etc.). This allows us to quickly assess whether the apartment is a good fit for you.
Thank you for your effort!
Property characteristics
| Age | Over 5050 years |
|---|---|
| Layout | 4+1 |
| Usable area | 132 m² |
| Condition | New-build |
|---|---|
| Listing ID | 981689 |
| Price per unit | €14 / m2 |
What does this listing have to offer?
| Wheelchair accessible | |
| Lift | |
| MHD 3 minutes on foot |
| Basement | |
| Parking | |
| Terrace |
What you will find nearby
Still looking for the right one?
Set up a watchdog. You will receive a summary of your customized offers 1 time a day by email. With the Premium profile, you have 5 watchdogs at your fingertips and when something comes up, they notify you immediately.












