
Flat to rent 3+1 • 72 m² without real estateJügesheimer Weg 31, , Hesse
Jügesheimer Weg 31, , HessePublic transport 3 minutes of walking • Lift • ParkingDiscover this stylish three-room apartment on the top floor of an exclusive multi-family house with only six residential units. Here, high-quality architecture and pure tranquility combine to create a harmonious lifestyle. The entire building is owned by a single family – a guarantee of meticulous care and a friendly atmosphere.
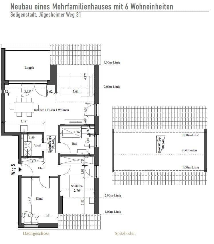
The heart of the apartment:
An astonishingly cozy living and dining area with an integrated open kitchen – perfect for relaxing evenings, creative cooking, and pure relaxation. The wide bay-window of the loggia, along with an additional roof window and a wall window, creates a bright, open ambiance. The sunny west-facing balcony invites you to unwind into the evening and let the day fade away.
The property is located in a quiet cul-de-sac in Seligenstadt Froschhausen. Access to the highway is ideal.
Bus lines 58 and OF-85 are within walking distance.
Within walking distance, you will also find several restaurants, a café, and a doctor. A green space and park, a post office receptacle, a pharmacy, and a hairdresser are also available on site.
The features are modern and well thought out:
- High-quality vinyl flooring in trendy oak look
- Heat pump with cooling function – sustainable and comfortable
- Stylish bathroom with modern fixtures
- Separate guest WC
- Walk-in shower
- Bathtub
- Practical storage room with space for a washing machine and dryer
- Elevator in the building for convenient access
- A second parking space can also be rented if needed
- Satellite reception
- Fiber optic connection
- Large tenant cellar of nearly 4 m²
- Lockable bicycle garages on the property, also for e-bikes
- Janitorial service included – you don’t have to worry about a thing
We look forward to your interest in the apartment. To help us get a better impression, please include a few words about yourself in your inquiry (for example, your profession, living situation, the number of people moving in, etc.). This will help us quickly assess whether the apartment is a good fit for you.
Thank you for your effort!
Property characteristics
| Age | Over 5050 years |
|---|---|
| Layout | 3+1 |
| Listing ID | 981685 |
| Price per unit | €17 / m2 |
| Condition | New-build |
|---|---|
| Floor | 2. floor out of 2 |
| Usable area | 72 m² |
What does this listing have to offer?
| Balcony | |
| Basement | |
| Parking |
| Wheelchair accessible | |
| Lift | |
| MHD 3 minutes on foot |
What you will find nearby
Still looking for the right one?
Set up a watchdog. You will receive a summary of your customized offers 1 time a day by email. With the Premium profile, you have 5 watchdogs at your fingertips and when something comes up, they notify you immediately.












