
House for sale 4+1 • 115 m² without real estateKytnerova, Brno - Medlánky, Jihomoravský Region
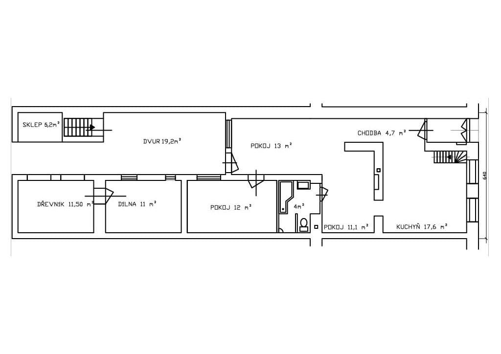
Kytnerova, Brno - Medlánky, Jihomoravský RegionCellar 5 m²Nabízíme k prodeji rodinný dům v Brně Medlánkách po kompletní rekonstrukci s velkou zahradou v uzavřeném vnitrobloku. Dům je volný, ihned připravený k užívání.
Pozemek celkem 600 m2 (z toho zastavěná plocha 168 m2), zahrada 432 m2.
Přízemí domu tvoří obývací pokoj, kuchyně, koupelna s toaletou a ložnice. Většina obytného prostoru má vysoké stropy s přiznanými trámy.
Patro domu, přístupné po schodech z kuchyně, tvoří otevřený obytný prostor, částečně rozdělený příčkou.
Z obývacího prostoru je přímý vstup na uzavřený dvorek a zahradu.
V roce 2014 byla dokončena celková rekonstrukce domu. Celý objekt je zateplený a vybavený protihlukovými okny s trojskly. Vytápění plynovým kondenzačním kotlem v kombinaci podlahové topení a radiátory.
V domě je instalována katexová jednotka pro změkčování vody v celém objektu. Přípojka 230/400 V, kabel Vodafone.
Dům disponuje dílnou napojenou na vytápění, přístupnou z dvorku a cihlovým klenutým sklepem pod úrovní terénu.
K domu přiléhá velká, udržovaná, přírodní zahrada, v rovině, orientovaná na jih. Součástí zahrady jsou nové vyvýšené záhony z masivního dřeva a skleník s kapkovou závlahou.
Na zahradě jsou také udržované plodící ovocné stromy, keře a pergola s vinnou révou.
Nemovitost se nachází v klidné lokalitě s dobrou přístupností do centra, zastávka MHD vzdálena 200m od domu.
Právní servis při prodeji domu včetně úschovy peněz zajištěn notářskou kanceláří.
Prohlídka po dohodě možná kdykoli.
Property characteristics
| Available from | 14/01/2026 |
|---|---|
| Building construction | Brick |
| Fully furnished | Unfurnished |
| Listing ID | 981254 |
| EPC | G - Extremely uneconomical |
| Location | Quiet area |
| Land space | 600 m² |
| Price per unit | CZK 139,043 / m2 |
| Condition | After reconstruction |
|---|---|
| Layout | 4+1 |
| Heating | Gas boiler |
| Ownership | Personal |
| Location of the house | Serial |
| Usable area | 115 m² |
| Total floors | 2 |
What does this listing have to offer?
| Basement: 5 m² |
What you will find nearby

House for saleK Hluku, Lelekovice - Lelekovice, Jihomoravský Region- 5+kk
- 325 m²
- 566 m²
CZK 12,800,000CZK 14,800,000
Save CZK 2,000,000
Still looking for the right one?
Set up a watchdog. You will receive a summary of your customized offers 1 time a day by email. With the Premium profile, you have 5 watchdogs at your fingertips and when something comes up, they notify you immediately.



















