
House for sale 5+1 • 141 m² without real estateJohan-Kaiser-Ring 148, , Hesse
Johan-Kaiser-Ring 148, , HessePublic transport 2 minutes of walking • ParkingWelcome to your new home!
This attractive terraced mid-house impresses with its well-thought-out floor plan, a well-maintained garden, and two parking spaces right in front of the house. With approximately 141 m² of living space, it offers ideal conditions for couples, small families, or anyone who appreciates modern living in a quiet setting.
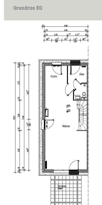
On the ground floor, you are welcomed by a spacious, light-flooded living and dining area featuring a wide window front that creates a harmonious transition to the covered terrace and garden – the perfect place for cozy moments or social gatherings.
The adjacent kitchen is designed for functionality and is seamlessly integrated into the living and dining area through its open concept. Short distances while cooking and the immediate proximity to the dining area ensure that you are always at the heart of the action – whether during a family breakfast or a shared dinner with guests.
A guest WC comfortably completes this level and provides additional convenience.
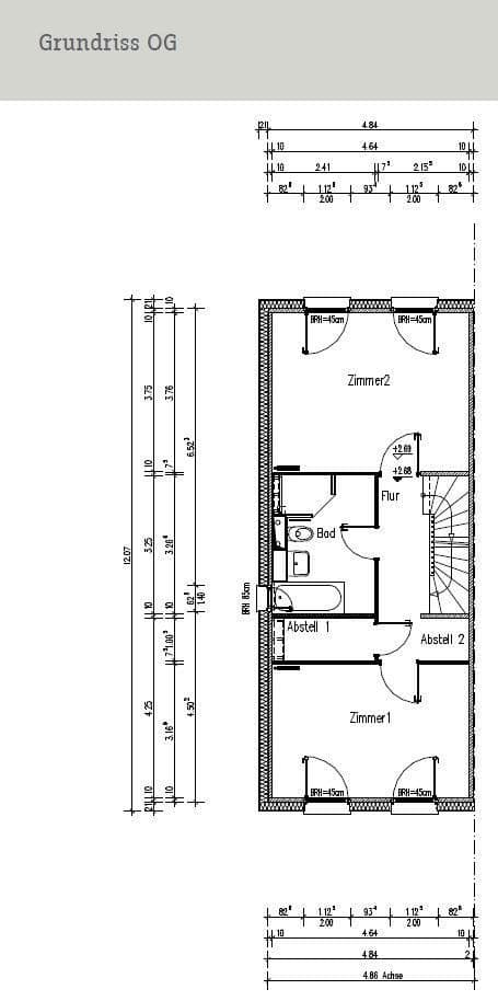
Upstairs, you will find two bright, well-proportioned rooms, ideal to be used as a master bedroom, children’s room, or home office. The master bedroom features a practical, walk-in niche that can serve excellently as a wardrobe – a clever storage space that combines organization with comfort.
The modern bathroom on this level is equipped with a bathtub and a separate shower. Additionally, there is a storage room that provides practical space for everyday essentials.
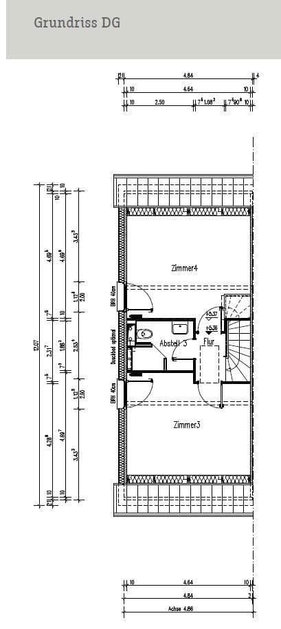
A particular highlight of the house is the attic: it offers two additional fully-fledged rooms, ideal as extra bedrooms, guest rooms, or hobby areas. This level is further complemented by a modern shower room, which enhances the overall living comfort.
From the attic, you also have access to the loft, which provides additional storage space and is perfect for storing items that are used infrequently – a practical extension of the living area that creates flexibility and organization.
The lovingly designed garden with its covered terrace invites you to relax outdoors – ideal for barbecue evenings, play areas for children, or a small herb and flower bed. The terrace is equipped with a translucent glass roof that lets in plenty of daylight while providing protection in any weather.
An additional garden shed completes the offering and can be used in a variety of ways – whether for storing gardening tools, bicycles, or as a small hobby room. This way, you can enjoy your outdoor area comfortably and flexibly in every season.
A perfectly harmonious and versatile home that impresses with its comfort, well-conceived layout, and family-friendly location – ideal for anyone who values quality living and a balanced mix of nature and infrastructure.
The terraced mid-house is located in a quiet yet conveniently accessible residential area on Johann-Kaiser-Ring in Hanau. The neighborhood is characterized by well-kept terraced and detached houses and offers a harmonious, family-friendly environment.
All important shopping opportunities for daily necessities – including supermarkets, bakeries, and drugstores – are quickly reachable. Particularly convenient: the Kinzigbogen shopping center is just a few minutes’ walk away and offers an extensive range of shops and services. Also, doctors’ offices and pharmacies are in the immediate vicinity.
For families, the location is ideal: day care centers and primary schools are easily accessible by foot or by bicycle, and secondary schools are well connected. Numerous playgrounds, sports and leisure facilities, as well as green spaces and parks, invite you to outdoor activities and ensure a high quality of life.
Commuters benefit from the quick access to the A66, B43a, and B45, making destinations throughout the Rhine-Main area comfortably reachable. The center of Hanau as well as public transport with regular connections to the surrounding districts are only a few minutes away.
Thus, this residential address combines quiet, nature-oriented living with excellent infrastructure, high mobility, and diverse leisure opportunities – ideal for families, commuters, or anyone seeking a balanced quality of life.
The house features five well-proportioned rooms spread over three levels and offers two modern bathrooms – one with a bathtub and separate shower on the upper floor, the other as a shower room in the attic – as well as a guest WC on the ground floor. The open kitchen is equipped with a modern fitted kitchen and is seamlessly integrated into the living and dining area. Additional storage space is provided by the practical storage room and the loft.
The house features five well-proportioned rooms on three levels and offers two modern bathrooms – one with a bathtub and separate shower on the upper floor, the other as a shower room in the attic – as well as a guest WC on the ground floor. The open kitchen is equipped with a modern fitted kitchen and is seamlessly integrated into the living and dining area. Additional storage space is provided by the practical storage room and the loft.
The living areas are fitted with high-quality laminate flooring. The bathrooms, the guest WC, as well as the kitchen and entrance area are functionally tiled. The garden with its covered glass terrace invites you to relax outdoors and is complemented by a garden shed that provides additional storage or space for hobbies. Two parking spaces right at the house are available, each priced at 10,000 €.
Property characteristics
| Age | Over 5050 years |
|---|---|
| Condition | Good |
| Listing ID | 981031 |
| Usable area | 141 m² |
| Total floors | 3 |
| Available from | 27/01/2026 |
|---|---|
| Layout | 5+1 |
| EPC | B - Very economical |
| Land space | 150 m² |
| Price per unit | €3,894 / m2 |
What does this listing have to offer?
| Parking | |
| Terrace |
| MHD 2 minutes on foot |
What you will find nearby
Still looking for the right one?
Set up a watchdog. You will receive a summary of your customized offers 1 time a day by email. With the Premium profile, you have 5 watchdogs at your fingertips and when something comes up, they notify you immediately.





























