
Flat to rent 2 bedroom • 80 m² without real estate, Lower Saxony
, Lower SaxonyPublic transport 7 minutes of walkingThe house was insulated for heat in 2008 according to the specifications of KfW and proKlima and is connected to the district heating network.
It is located in a traffic-calmed area near the Eilenriede city forest, with various shopping opportunities and dining establishments nearby. A tram stop can be reached within 5 minutes. The center (train station) is accessible by bike in about 15 minutes.
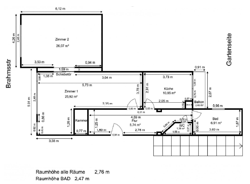
The bathroom is equipped with a shower, there is a guest toilet, and a kitchen with a southwest-facing balcony.
The stated rental prices refer to one person; currently, an additional €25.00 is added to the warm rent for each additional person (for water supply and waste disposal), with the building cleaning included in the warm rent, but cable TV connection is not.
The energy costs (for electricity only) as well as the heating costs (as a heating cost prepayment to Hannover Stadtwerke) are to be borne by the tenant.
The rental agreement stipulates a minimum rental period of 2 years.
Property characteristics
| Age | Over 5050 years |
|---|---|
| Condition | After reconstruction |
| Listing ID | 980973 |
| Usable area | 80 m² |
| Available from | 25/01/2026 |
|---|---|
| Layout | 2 bedroom |
| EPC | C - Economical |
| Price per unit | €15 / m2 |
What does this listing have to offer?
| Balcony | |
| MHD 7 minutes on foot |
| Basement |
What you will find nearby
Still looking for the right one?
Set up a watchdog. You will receive a summary of your customized offers 1 time a day by email. With the Premium profile, you have 5 watchdogs at your fingertips and when something comes up, they notify you immediately.












