
Flat for sale 2 bedroom • 62 m² without real estate, Hesse
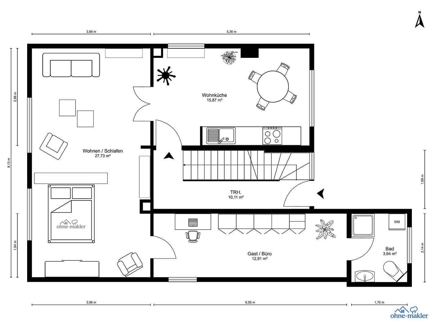
An entrance area facing a quiet inner courtyard with an open-plan kitchen and a large, bright room to the west with an adjacent room for the daylight bathroom characterize this individual apartment with 62 m² of living space.
The spacious open-plan kitchen with a fitted kitchenette, bright floor tiles, and a view into the naturally landscaped inner courtyard creates a cozy atmosphere and promotes well-being.
The approximately 30 m² versatile room impresses with two windows, parquet flooring, wall niches, a double door with glass elements and decorative profiles—and as a special feature, a half-arch from 1960. The combination of these elements creates an individual living ambience and conveys a feeling of security. Depending on one’s personal living situation, the space can be set up either as a living and sleeping area with a double bed or as a living/working space.
The adjacent, bright room of approximately 13 m² for the daylight bathroom can be used in various ways. It can serve as a single bedroom, dressing room, or office with a guest room and sofa bed. In the photos of the apartment, we show its use as a single bedroom with a desk, while the two- and three-dimensional floor plans alternatively depict it as a dressing room/office.
The apartment is located on the ground floor of a historic residential building in a central location in Griesheim near Darmstadt. The building, constructed in 1912, is subject to the preservation ordinance of the City of Griesheim. This ordinance serves to protect and preserve historic buildings and their characteristic features.
Information on the condominium (WEG) division and homeowners’ community:
The property with 5 residential units was divided according to condominium law in 2024. It consists of a front house including a side building and a rear transverse building. In 4 of the residential units live quiet individuals. A cohesive homeowners’ community characterizes the environment.
Conclusion:
In an attractive micro-location in Griesheim, this 62 m² apartment in a historic 5-party house is presented to you—ideal for individuals seeking a centrally located, well-connected apartment in one of the most sought-after residential areas in the Darmstadt region.
Identity-strengthening features such as a personal atmosphere, natural landscaping, and a respectful homeowners’ community and neighborhood contribute to a pleasant living experience.
You can reach the local supermarket with a café, post office, hotel, market square with a weekly market, restaurants, town hall, doctors’ offices, and banks within a few minutes on foot, thanks to the apartment’s very central location.
Within the Rhine-Main region, Griesheim is very well connected by a broad public transport network.
Within 5 minutes’ walking distance, you will find tram lines 9 and 4 to downtown Darmstadt—with the main train station, university, cultural offerings, and shopping facilities.
The highways A 5 and A 61 in the direction of Frankfurt, Heidelberg, Mainz, and Wiesbaden are reachable in about 8 minutes by car.
Raised ground floor, 62 m² of living space in a historic building.
Individual apartment with parquet flooring, wall niches, and a half-arch.
Open-plan kitchen with a fitted kitchenette, floor tiles, and a view into a quiet inner courtyard.
Bright daylight bathroom with tiled walls and floor, shower, WC, sink, washing machine connection, and a vertical mirror cabinet.
Central heating – heating system renewed in 2024, GEG compliant & efficient.
Hot water in the kitchen and bathroom is provided via a hot water boiler.
Energy class F including hot water.
Seating area in the inner courtyard available upon agreement.
Storage room in the basement, approximately 2.7 m².
A fully completed contact request with your name, address, and telephone number is required to arrange a viewing by phone. Thank you.
Contact:
Eva Martin
Dipl.-Ing. Architecture
Tel: 01525 2333285
Mon – Sat: 10:00 to 20:00
Property characteristics
| Age | Over 5050 years |
|---|---|
| Condition | After reconstruction |
| Listing ID | 980690 |
| Usable area | 62 m² |
| Available from | 13/01/2026 |
|---|---|
| Layout | 2 bedroom |
| EPC | F - Very uneconomical |
| Price per unit | €3,355 / m2 |
What does this listing have to offer?
| Basement |
| MHD 2 minutes on foot |
What you will find nearby
Still looking for the right one?
Set up a watchdog. You will receive a summary of your customized offers 1 time a day by email. With the Premium profile, you have 5 watchdogs at your fingertips and when something comes up, they notify you immediately.























