
Flat to rent 4+kk • 124 m² without real estateBei der Stadtmühle 1, , Baden-Württemberg
Modern, tasteful city apartment, very centrally located and yet quiet.
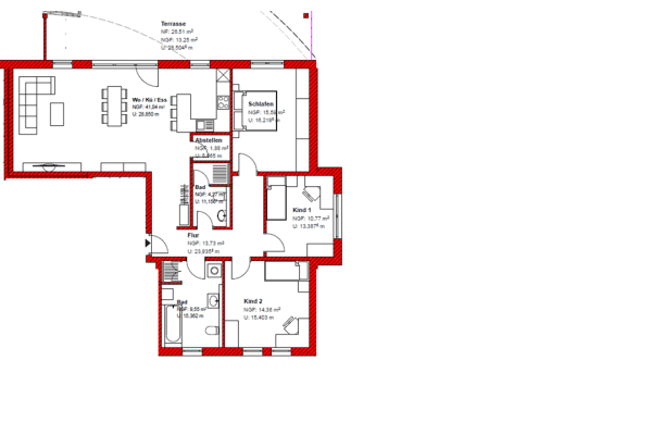
The light-filled 4-room apartment with a well-conceived floor plan is situated on the second floor of a residential and commercial building in the center of the pedestrian zone in Lahr.
IDEAL FOR SINGLES, COUPLES, OR SMALL FAMILIES.
In 2015, extensive renovations were carried out.
The heating system was renewed in 2017.
From the entrance area, the hallway leads directly into the spaciously designed kitchen with a dining area and a modern, fully equipped built-in kitchen.
Note:
The apartment is perfect for couples or families with 1–2 children.
For more people, this apartment is unfortunately not suitable due to the room layout.
The highlight:
On the nearly 40 sqm large, partly covered sun terrace with water and electricity connections, you can completely relax. The terrace overlooks the extremely quiet inner courtyard. It is accessible through the south-facing living area.
In addition to the modern, tastefully furnished daylight bathroom with a shower and bathtub, there is a separate WC.
Very practical:
A spacious storage room provides ample space for a washing machine, dryer, and other household appliances.
The apartment is located in a prime location, right on a quiet side street at Schlossplatz in the pedestrian zone.
Despite the central location, the apartment is extremely quiet and far from street noise.
All everyday shops as well as a wide range of restaurants are more or less right at the doorstep.
It is a 4-minute walk to the cinema (Forum Lahr).
Various doctor’s offices and law firms are located directly in the building.
The bedroom, both children’s rooms, and the spacious living room are equipped with solid wood parquet flooring (oak).
The entrance hall, corridor, kitchen, bathroom, and WC feature a modern, light tiled floor.
A well-maintained built-in kitchen is included.
The apartment comes with a basement storage compartment as well as an underground parking space.
The elevator goes from the underground garage only up to the first floor. The 2nd floor can only be reached via the staircase.
The apartment is rented commission-free by a private individual.
The apartment is ideal for singles, couples, and families with up to a maximum of two small children.
If you are seriously interested, we require:
• Self-disclosure (see PDF)
(We will gladly send it to you by email upon request)
• Salary slips for the last 3 months
• Landlord reference
• SCHUFA self-disclosure
Viewing appointments are by arrangement only.
You are welcome to bring all documents to the viewing.
NOTE:
We kindly ask commercial inquiries from brokers regarding rental to be refrained from.
Property characteristics
| Age | Over 5050 years |
|---|---|
| Condition | After reconstruction |
| Floor | 2. floor out of 3 |
| Usable area | 124 m² |
| Available from | 01/03/2026 |
|---|---|
| Layout | 4+kk |
| Listing ID | 980530 |
| Price per unit | €11 / m2 |
What does this listing have to offer?
| Basement | |
| MHD 3 minutes on foot |
| Garage | |
| Terrace |
What you will find nearby
Still looking for the right one?
Set up a watchdog. You will receive a summary of your customized offers 1 time a day by email. With the Premium profile, you have 5 watchdogs at your fingertips and when something comes up, they notify you immediately.













