Commercial property to rent • 76 m² without real estateWeiserstraße 28 Salzburg Schallmoos Salzburg 5020
Weiserstraße 28 Salzburg Schallmoos Salzburg 5020Public transport 2 minutes of walkingDue to my retirement, I am now renting out my commercial space commission‐free in the immediate vicinity of the Salzburg MAIN STATION.
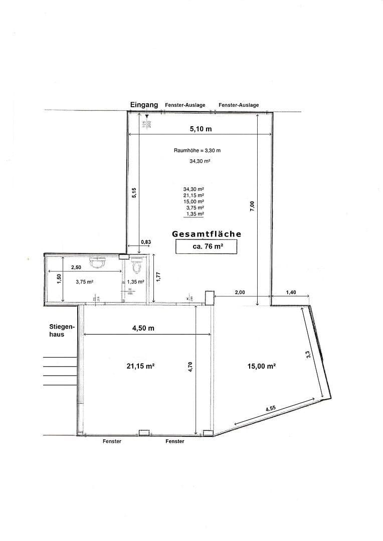
The commercial space is located on the ground floor of a residential building that houses a total of 42 apartments and 3 additional commercial units.
The entire space of approximately 76 m² is divided into three rooms:
1. Sales area (approx. 50 m²)
2. Office area (approx. 21 m²) – these two rooms are separated only by a temporary partition that can be removed if needed.
3. Storage room with a water connection (or small kitchen, approx. 5 m² in size) and a restroom (approx. 1 m² in size)
There are two entrance doors to the premises: one from the street and another (a heavy security door) from the backyard of the residential block, i.e., from the building’s stairwell.
The storage room within the space is also separated from the office area by a security door.
All display cases, the two large windows opening onto the inner courtyard, and the entrance door are additionally protected by shutters.
A few years ago the entire commercial space was comprehensively renovated – all electrical wiring, outlets, light switches, radiators, and doors were replaced. The floor has been fitted with stoneware tiles.
The whole area was freshly painted recently.
A wired alarm system (which is now technically outdated) was installed and is still functioning.
The offered commercial space is also excellently suited as an office.
The monthly rent is €1,500. The tenant is also responsible for the operating costs, which currently amount to approximately €386 (including VAT), although the space has not been heated in recent years. Directly below the commercial space is the heating room for the entire residential block, so that even in winter the room temperature hardly drops below 19°C.
P.S. Not suitable for a gastronomic operation. An energy certificate is available. The commercial space is also for sale (asking price €330,000).
Salzburg Schallmoos / Neustadt – in the immediate vicinity of the rear entrance of the Salzburg Main Station, i.e., approximately 250 meters from the main entrance of the station.
Approximately 60 meters to the bus stops in both directions.
Approximately 100 meters to the 24-hour manned police station.
Property characteristics
| Age | Over 5050 years |
|---|---|
| Listing ID | 980137 |
| Price per unit | €20 / m2 |
| Condition | After reconstruction |
|---|---|
| Land non-residential space | 76 m² |
What does this listing have to offer?
| Wheelchair accessible |
| MHD 2 minutes on foot |
What you will find nearby
Still looking for the right one?
Set up a watchdog. You will receive a summary of your customized offers 1 time a day by email. With the Premium profile, you have 5 watchdogs at your fingertips and when something comes up, they notify you immediately.























