Flat for sale 4+1 • 113 m² without real estateKassel Kassel Hessen 34128
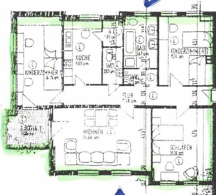
Kassel Kassel Hessen 34128Public transport 2 minutes of walkingThis is a very appealing condominium that is almost like new in its equipment and generously laid out. It is situated on a quiet side street, sheltered and, due to its rear location, hidden amongst the greenery. The condominium is located on the first floor and its living area is divided into a living room with access to the balcony, a bedroom, a children's room, a multi-purpose room (also with access to the balcony), a modern daylight bathroom (2011) equipped with a bathtub, a shower, a toilet, a bidet, a modern guest WC (2011, internal), a kitchen with a fitted kitchen (2022) and a pantry, as well as a hallway.
A bakery (approximately 50 meters away!), a pharmacy, various doctors, and shopping facilities can be reached within a few minutes' walk. The Harleshausen Mitte bus stop is also nearby. There is a daycare on site, and the primary school “Am Krauthof” is 450 meters away. In front of the building, there are several (public) and free parking spaces. The park “Am Kubergraben” with its adventure playground begins right behind the building.
Kassel-Harleshausen is located in the far northwestern part of the city and is surrounded by greenery, interspersed with fields and meadows, making it one of Kassel’s most popular and attractive districts with very high living quality.
Shopping facilities are available. Thanks to the excellent public transport connections or by car, the city center is easily reachable, as is the A44 motorway. For sports or nature-related leisure activities, there are many possibilities.
The apartment is modern and mostly equipped as new. Important features and chronological investments in the individual property include:
2011: Complete and high-quality renovation of the daylight bathroom and guest WC, including wall and floor tiling as well as electric underfloor heating
2014: New apartment entrance door with aluminum inlay, profile cylinder lock with threefold locking mechanism, and lip seals
2020: Installation of authentic oak hardwood flooring throughout the apartment (except in the kitchen and bathroom), laying of high-quality vinyl in the kitchen
2020: New white interior doors and repainting of door frames and radiators
2020: Electrical work – installation of an RCD (FI switch) and replacement/expansion of switches and outlets
2022: New modern fitted kitchen (Burger) with fronts lacquered on the reverse side, including all appliances (all Siemens and an extractor from Berbel)
2025: Renovation of the apartment (all rooms except the full bathroom newly wallpapered and painted)
Room sizes:
Living room: 24.60 m²
Bedroom: 18.28 m²
Multi-purpose/office room: 16.76 m²
Children’s room: 15.14 m²
Kitchen with fitted kitchen: 9.63 m²
Pantry: 1.93 m²
Daylight bathroom with underfloor heating: 6.67 m²
Guest WC: 2.62 m²
Hallway/intercom area: 11.49 m²
Cloakroom: 2.23 m²
Loggia: 7.16 m²
Property characteristics
| Age | Over 5050 years |
|---|---|
| Condition | After reconstruction |
| Floor | 1. floor out of 3 |
| EPC | C - Economical |
| Price per unit | €3,177 / m2 |
| Available from | 29/01/2026 |
|---|---|
| Layout | 4+1 |
| Listing ID | 980102 |
| Usable area | 113 m² |
What does this listing have to offer?
| Balcony |
| MHD 2 minutes on foot |
What you will find nearby
Still looking for the right one?
Set up a watchdog. You will receive a summary of your customized offers 1 time a day by email. With the Premium profile, you have 5 watchdogs at your fingertips and when something comes up, they notify you immediately.
















