Commercial property to rent • 765 m² without real estate5. května, Svitavy - Svitavy-předměstí, Pardubický Region
Nabízím k pronájmu vytápěné nebytové prostory o celk. rozloze 765 m², který se nachází v cihlové budově a je udržován ve velmi dobrém.
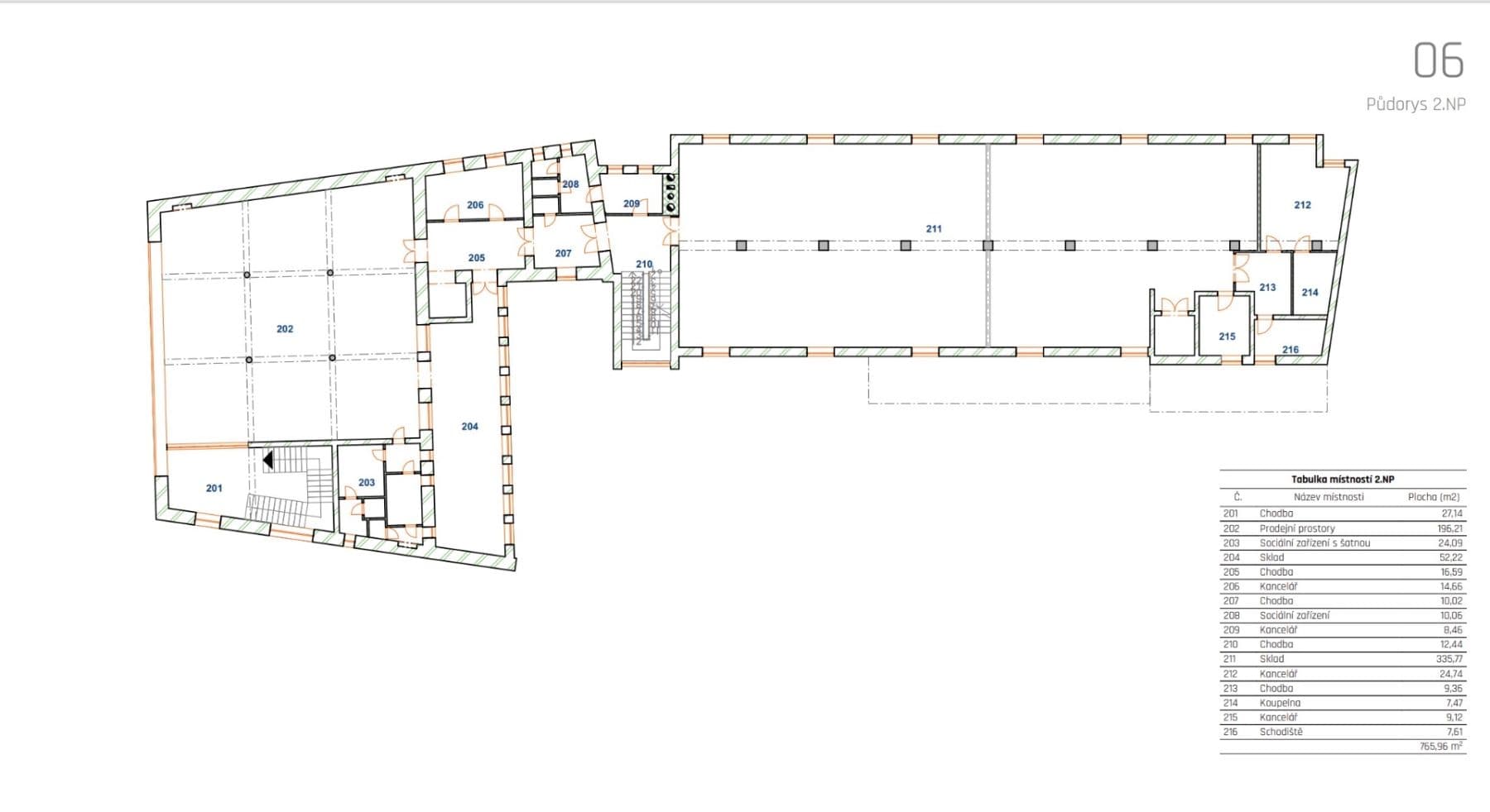
Prostory jsou vhodné pro prodejnu, sklad, kanceláře, lehkou výrobu, fitness centrum či jiné podnikatelské záměry ve 2 NP v centru Svitav ulice 5. května 331, blízko naměstí, Prostory nabízí několik možností přístupu – z hlavního vchodu po schodišti, dále ze společného uzamčeného dvora. Pro pohodlné zásobování je k dispozici nákladní výtah s nosností 1 t přímo z nakládací rampy. Samozřejmostí je také samostatné únikové schodiště.
Velkou výhodou je bezproblémový přístup pro kamiony přímo na uzamčený dvůr, což zajišťuje komfortní logistiku.
Velikost prostor lze flexibilně přizpůsobit dle potřeb nájemce.
Pro více informací nás neváhejte kontaktovat.
I am offering for rent heated non-residential premises with a total area of 765 m², located in a brick building and maintained in very good condition. The premises are suitable for a retail shop, warehouse, offices, light manufacturing, a fitness center, or other business ventures. They are situated on the second floor in the center at Svitav, 5. května 331, close to the town square. The space offers several access options – from the main entrance via a staircase and also from a shared locked courtyard.
For convenient loading, a freight elevator with a capacity of 1 ton is available directly from the loading ramp. There is also a separate emergency staircase. A great advantage is the unhindered access for trucks directly to the locked courtyard, ensuring smooth logistics.
The size of the space can be flexibly adjusted to meet the tenant's needs.
For more information, please do not hesitate to contact us.
Property characteristics
| Available from | 10/01/2026 |
|---|---|
| Building construction | Brick |
| Listing ID | 979957 |
| Location of the commercial space | Separate |
| Land non-residential space | 765 m² |
| Condition | Very good |
|---|---|
| Fully furnished | Partly |
| EPC | D - Less economical |
| Location | Centre |
| Price per unit | CZK 99 / m2 |
What does this listing have to offer?
| Lift |
What you will find nearby
Still looking for the right one?
Set up a watchdog. You will receive a summary of your customized offers 1 time a day by email. With the Premium profile, you have 5 watchdogs at your fingertips and when something comes up, they notify you immediately.









