House for sale 5+1 • 196 m² without real estate, Schleswig-Holstein
, Schleswig-HolsteinPublic transport less than a minute of walking • Parking • GarageThis single-family house, built in 2001, impresses with 196 m² of living space spread over 2 floors. With a total of 5 rooms, it offers ample space for families and couples.
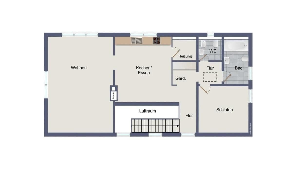
The heart of the house is the open-plan living and dining area.
The fitted kitchen is equipped with all conveniences: dishwasher, refrigerator, a stove with both a Ceran and gas hob, an oven, and a microwave at a comfortable working height. An integrated skylight ensures plenty of natural daylight and accentuates the sense of openness. A modern fireplace provides cosy warmth on cooler days and meets all current requirements.
A particular highlight is the light-filled conservatory with a refined copper roof. From here, you can step directly onto the terrace and into the lovingly landscaped garden.
Two terraces with different orientations offer the ideal place to relax at any time of the day – whether it’s breakfast in the morning sun or a cosy evening barbecue with friends.
With a total of 5 rooms, the house provides sufficient space for individual design – be it a bedroom, children’s room, office, or hobby room.
The well-maintained property of approximately 1,062 m² offers a variety of uses – from a play area for children and a gardening space for hobby gardeners to a retreat in the green. It is also perfect for pets, as it is completely fenced.
Lawn care is handled by a Husqvarna robotic lawn mower, so you can enjoy your free time without worries.
A fiber-optic connection in the house guarantees fast internet – ideal for home office or streaming.
A solar system on the roof contributes to energy savings.
The photovoltaic system on the roof generates approximately €2,200 annually from feeding electricity into the grid until 2029!
The offering is rounded off by a heated garage as well as several parking spaces, which also provide visitors with ample parking opportunities.
The property is available by arrangement.
Location
Between the seas – 30 minutes to the North Sea (Husum) and 30 minutes to the Baltic Sea (Eckernförde). This single-family house is located in Gammellund in the idyllic municipality of Bollingstedt in the district of Schleswig-Flensburg, nestled in the gentle landscape of the Schleswig geest. The surroundings are characterized by forests, meadows, lakes, and moors, creating an exceptionally quiet and natural living environment. In the immediate vicinity, the Mühlenteich, the Bollingstedt Moor, and the “Steinholz” forest area invite you to take walks, bike tours, and enjoy nature observations. The Gammellund Lake in the district of the same name, a protected Natura 2000 area, also offers opportunities for local recreation.
Despite its rural location, basic services are ensured: schools, doctors, and shops can be reached in the nearby municipality of Jübek, about 5 km away.
Secondary schools as well as a broader range of medical and cultural services are available in the city of Schleswig, only a ten-minute drive away.
In terms of transport, Bollingstedt is well connected:
Larger cities such as Flensburg, Husum, or Kiel can be easily reached via the nearby A7 motorway and Federal Road B76. A bus connection links to the train station in Jübek, from which regular train services run towards Hamburg, Kiel, Husum, and Flensburg. The residential area is ideal for those who wish to combine living close to nature with good accessibility. The active club life, diverse leisure activities, and a committed local community further contribute to a high quality of life, making Bollingstedt an attractive location for families, couples, or those seeking tranquility.
Fiber-optic connection in the house
Underfloor heating in the ground floor bathroom and conservatory
Vaillant gas heating, newly installed in March 2020
Fireplace 2025
Energy certificate valid until 10.09.2035
Property characteristics
| Age | Over 5050 years |
|---|---|
| Layout | 5+1 |
| EPC | C - Economical |
| Land space | 1,062 m² |
| Price per unit | €2,293 / m2 |
| Condition | After reconstruction |
|---|---|
| Listing ID | 979794 |
| Usable area | 196 m² |
| Total floors | 2 |
What does this listing have to offer?
| Garage | |
| MHD 0 minutes on foot |
| Parking | |
| Terrace |
What you will find nearby
Still looking for the right one?
Set up a watchdog. You will receive a summary of your customized offers 1 time a day by email. With the Premium profile, you have 5 watchdogs at your fingertips and when something comes up, they notify you immediately.




























