
Flat for sale 2 bedroom • 58 m² without real estateHamburg Hohenfelde Hamburg 22085
My name is Ann-Kristin Trost, and I am pleased to present this high-quality, completely renovated 2-room apartment in an attractive location right by the Eilbek Canal in the heart of Hamburg.
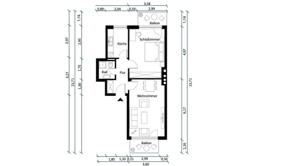
The apartment has been fully overhauled and modernized to the highest standards of quality, functionality, and modern design. The well-thought-out layout combines contemporary living with a quiet, nature-inspired environment in a central location.
On approximately 58 m² of living space, you will find bright, welcoming rooms as well as an unobstructed view of the Eilbek Canal. The apartment is ideal for singles or couples looking to combine urban living with a space for relaxation.
A special feature is the two balconies. The tranquil south-facing balcony overlooking green spaces offers additional living comfort and invites you to unwind. From the moment you step inside, the apartment exudes a pleasant and upscale living atmosphere.
The modern shower room is fitted with high-quality materials, elegant large-format tiles, and contemporary features.
The apartment is ready to move in immediately. I am happy to provide you with further information or arrange a personal viewing.
Attractive residential location between the Außenalster and the Eilbek Canal
The apartment is located in the well-regarded Hamburg district of Hohenfelde, which is favored for its central location as well as its proximity to the Außenalster and the Eilbek Canal. The Eilenau runs directly along the canal and is distinguished by its tranquil, green surroundings and its historic character.
The area is characterized by well-maintained Gründerzeit buildings, mature trees, and landscaped front gardens, creating a pleasant and established residential atmosphere. The nearby Kuhmühlenteich offers additional opportunities for relaxation and invites you to enjoy walks, sports activities, or simply to linger by the water.
Transportation connections are excellent. Hamburg's city center and other districts can be reached within minutes by car or public transport.
Everyday shopping, cafés, restaurants, universities, and cultural institutions are within walking distance, ensuring outstanding infrastructure.
The combination of a central location, proximity to water, and a green environment makes Hohenfelde a coveted address for anyone looking to merge urban living with high quality of life.
Modern Living – Bright, High-Quality, and Thoughtfully Designed
This apartment impresses with a clearly defined floor plan, comprehensive high-quality modernization, and generous daylight that creates a pleasant and friendly living atmosphere. Great care was taken during the renovation to ensure quality, functionality, and timeless design.
Features at a glance:
• Bright living and dining area with large windows offering a view of the Eilbek Canal
• Peacefully situated bedroom with a view of the greenery
• Newly installed modern flooring throughout the apartment
• Two balconies: a sunny south-facing balcony with a green view, and another balcony overlooking the canal
• Modern shower room with high-quality tiles and branded fittings
• Separate kitchen/dining area with ample space for cooking and shared meals
• Practical built-in wardrobe in the entryway for extra storage
• Electric shutters and lockable windows for enhanced comfort and security
• Integrated lighting systems in the kitchen, bathroom, and hallway
• Separate basement compartment (approx. 7 m²) for additional storage
An attractive housing offer that combines contemporary living comfort with a pleasant atmosphere and a prime location – ideal for discerning owner-occupiers or investors.
Private sale
Property characteristics
| Age | Over 5050 years |
|---|---|
| Condition | After reconstruction |
| Floor | 1. floor |
| EPC | E - Wasteful |
| Price per unit | €7,741 / m2 |
| Available from | 11/01/2026 |
|---|---|
| Layout | 2 bedroom |
| Listing ID | 979751 |
| Usable area | 58 m² |
What does this listing have to offer?
| MHD 2 minutes on foot |
What you will find nearby
Still looking for the right one?
Set up a watchdog. You will receive a summary of your customized offers 1 time a day by email. With the Premium profile, you have 5 watchdogs at your fingertips and when something comes up, they notify you immediately.













