House for sale • 240 m² without real estate, Brandenburg
, BrandenburgPublic transport 3 minutes of walking • ParkingPrivate sale/provision free:
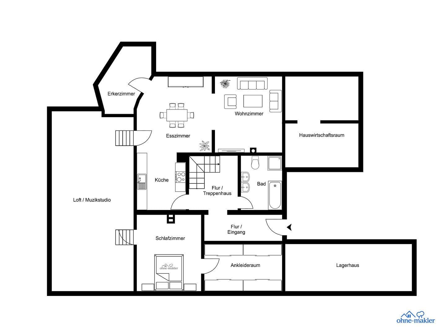
The historic country house, built by Ferdinand Kindermann, is located in the quiet villa colony of Waldsieversdorf and offers 240 m² of space for living, working, and creative expression.
Originally used as a patisserie and café in the 1920s, the house consists of two apartments spread over two floors that can also be combined, along with a loft that is currently used as a music studio. The spacious loft is flexible in its use – for example, as a studio, for sports, fitness, or yoga, as an exhibition space, for creative commercial purposes, or as a unique living space. A sunny courtyard and a small garden enhance the ambiance. The main building has a basement; in addition, there is a tiled storage room and a brick carport, plus three parking spaces. The house is not under heritage protection. The forests and the Große Däberlake, suitable for bathing, are within walking distance. The train station with a direct connection to Berlin is only about 5 km away – ideal for families and creative individuals seeking a home with versatile usage possibilities in one of the most beautiful locations of the Märkische Schweiz. The history of my house is described in the book “Waldsieversdorf – EINST UND JETZT” by Kirsten Lauritsen and Karin Stein-Bachinger, published by CULTURCON medien, ISBN 978-3-7308-1715-5.
The municipality of Waldsieversdorf is located in the heart of the Märkische Schweiz Nature Park, about 2 km from the town of Buckow, and is a state-recognized recreational area. The area is rich in forests and lakes. Waldsieversdorf near Buckow is particularly popular with families: there is a school, two kindergartens, an organic food store, a bakery, cafés and restaurants, a cinema, a theater, an antiquarian bookshop, a pharmacy, and a medical center in the vicinity. There is also direct access to Berlin via RB 26/Müncheberg station and S-Bahn 5 in Strausberg.
• Historic country house in the villa colony of Waldsieversdorf, built around 1909 by Ferdinand Kindermann, former patisserie and café around 1920
• 2 apartments and a loft (up to 4 m high, steel beam/double-T beam ceiling), currently used as a music studio, large enough for a studio, creative leisure space, or as a unique living space
• Living units can be combined as needed, with a shared staircase
• The house has 8 rooms, 2 kitchens, 2 bathrooms (one with a bathtub, one with a shower), a stove located in the ground-floor living room; living area per current measurement is 240 m²
• Original wooden floor in the living/dining area on the ground floor
• Sunny courtyard and garden
• Additional usable spaces: a small tiled storage building (24 m²) and a heated outbuilding with water/sewage as a utility room (24 m²)
• Basement: 72 m², accessible
• Carport for 1 car or camper (high/walled, former bakehouse), and the property also includes 3 additional parking spaces
• All utilities available (water, sewage, gas, electricity, internet)
• New fiber optic connection in 2024
• The entire living area is heated by a gas central heating system (Buderus/Logomax Plus GB) installed in 2016
• Continuously renovated/sanitary improvement since 2015
• Not under heritage protection
• Purchase price: €449,000 based on negotiation
• Available for occupancy by arrangement
Not under heritage protection.
Property characteristics
| Age | Over 5050 years |
|---|---|
| Listing ID | 979533 |
| Usable area | 240 m² |
| Total floors | 2 |
| Condition | After reconstruction |
|---|---|
| EPC | G - Extremely uneconomical |
| Land space | 567 m² |
| Price per unit | €1,871 / m2 |
What does this listing have to offer?
| Basement | |
| MHD 3 minutes on foot |
| Parking |
What you will find nearby
Still looking for the right one?
Set up a watchdog. You will receive a summary of your customized offers 1 time a day by email. With the Premium profile, you have 5 watchdogs at your fingertips and when something comes up, they notify you immediately.





























