
House for sale 4+1 • 124 m² without real estateGRUNDSTÜCK ORTSRAND EXKLUSIV NUR FÜR DANWOOD-HAUSBAU ST. Stefan ob Stainz Steiermark 8511
GRUNDSTÜCK ORTSRAND EXKLUSIV NUR FÜR DANWOOD-HAUSBAU ST. Stefan ob Stainz Steiermark 8511Public transport less than a minute of walking • GarageBelow is the English translation of the text enclosed by the tag:
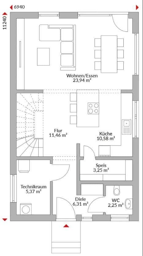
Despite its small footprint, this house meets all the requirements of modern living. This space-saving marvel satisfies every demand of contemporary life – with maximum functionality. Ideal for those who plan deliberately and want nothing to be lacking. A well-thought-out house that surprises with a light-filled living area, clever spatial design, and everything that modern living needs. Designed for people who love the essentials – and appreciate comfort.
Functional, efficient, comfortable: This house shows just how much quality of life can be found in compact architecture. Perfect for anyone planning with foresight – and using space intelligently.
On your property or in...
Güssing: Approximately 2,600 m² on a completely level site. Plot sizes and locations can be chosen freely, ranging from 500 m² to 1,500 m².
Here you have top-class building plots! In the best location and with a breathtaking view of the beautiful Güssing Castle!
Güssing offers a future-proof, affordable, and energy-independent life in nature, making the investment in property there a strategic asset.
Why Güssing
Energy Pioneer and Sustainability:
The town is energy self-sufficient and internationally recognized.
High coverage (over 85%) with regional biomass district heating ensures stable, affordable heating costs.
Affordable Property Prices:
Prices are significantly lower than the Austrian average, making the dream of home ownership with spacious plots a reality.
Strong Infrastructure and Quality of Life:
As a suburban district center, Güssing guarantees short distances and excellent services.
Planned major investments:
A new education campus and a modern medical center (from 2026).
A cultural center (Güssing Castle) and proximity to thermal baths.
The full opening of the S7 brings significant benefits for Güssing and its residents:
Faster connection to metropolitan areas: The expressway dramatically reduces travel time to the A2 South Motorway, significantly shortening trips to Graz and Vienna.
Relief for the region: It diverts through traffic that previously burdened towns like Fürstenfeld and Rudersdorf onto the new route.
Economic Impulses: The new connection, including the interchange near Rudersdorf/Dobersdorf and the proximity to the Königsdorf link, strengthens Güssing as a suburban district center and economic location by improving accessibility and fostering new industrial parks.
Value Stability and Development Potential:
Targeted municipal investments in infrastructure, revitalization of the town center, and the technology center ensure the long-term value stability of properties.
The municipal strategy aims to tackle demographic challenges and establish Güssing as an attractive residential and business location.
Target Audience
Families seeking a future, security, and nature, as well as anyone who values low energy costs and ecological responsibility.
Other properties in:
Property, 8323 Kohldorf: Building plot with lots of sun in the Styrian hilly country 15 km from Graz!
Size: 758 m², Price: €66,000
Property, 8323 Kohldorf: Sunny building plot in Kohldorf, 15 km east of Graz!
Size: 787 m², Price: €69,000
Property, 8311 Markt Hartmannsdorf: Fully serviced, sunny building plot in Markt Hartmannsdorf
Size: 920 m², Price: €53,000
Property, 9335 Lölling Graben: Building plot with a fabulous panoramic view in the picturesque Carinthian Alps
Size: 1001 m², Price: €50,000
Property, 8075 Hart near Graz: Sunny plot on the outskirts of Graz
Size: 1980 m², Price: €475,000
Property in Stainz for sale: Sunny plot on the edge of Stainz
Size: 825 m², Price: €149,000
There is no financial connection between the owner of the property and the builder of the house.
Technology That Makes Living Easier
The Today 3AL technology package combines modern heat pump technology with a hot water storage tank and an intelligent ventilation system. The result: a home that automatically maintains a pleasant indoor climate – warm in winter, fresh in summer, and efficient all year round. Underfloor heating provides cozy warmth in every room, while the central ventilation system with heat recovery saves energy and ensures a constant flow of fresh air. A technology package that perfectly combines comfort, efficiency, and future-proofing.
Electric Roller Shutters:
DANWOOD’s roller shutters are the perfect complement to the energy-efficient DANWOOD building system. They protect against heat in summer, retain warmth in winter, and always provide privacy and security. With electric operation or smart control, they are convenient and intuitive to use – a daily comfort benefit. In short, at DANWOOD shutters are optional but can be technically integrated perfectly – electric, long-lasting, and ideal for modern architecture.
Sanitary Equipment:
Glass wall shower – safe, convenient
Wall-mounted toilet – easy to clean, hygienic
Washbasin
High-quality fixtures – durable, easy to use, temperature-stable
Optional, depending on the model:
Bathtub – perfect for relaxation or evening rituals together
Optional double washbasin – no morning rush
Concealed installation fixtures – safe, elegant, easy to clean
Everything is designed to simplify daily life while remaining attractive over time.
Painting Work:
Walls & Ceilings – ready for move-in. All interior walls and ceilings are finished to a turnkey standard. This means:
• Smooth, spackled, and sanded surfaces
• White final coating in high-quality emulsion paint
• Clean, even appearance in all living areas. DANWOOD delivers the finished surface
• No visible seams or transitions thanks to industrial precision
This makes the house immediately habitable without any additional painting work.
Vinyl/Laminate/Tiles:
Living and sleeping areas – warm, robust, inviting!
All living and sleeping rooms are fitted with high-quality, low-maintenance flooring that combines warmth, comfort, and everyday practicality. Standard finish (depending on the model):
• High-quality design vinyl flooring in wood look
• Durable, quiet, and warm underfoot
• Ideal for families, pets, and daily use
• Harmonious color palettes (light oak, natural oak, grey oak – depending on selection at the design center in Pinkafeld)
Optional:
• Premium quality laminate
• Solid wood parquet (at an extra charge)
Alternative design styles (concrete look, dark wood look, warm natural tones) DANWOOD
Note: All house prices are quoted from the top edge of the foundation slab. Illustrations may show optional special features.
Property characteristics
| Condition | New-build |
|---|---|
| Listing ID | 979502 |
| Land space | 1 m² |
| Price per unit | €2,248 / m2 |
| Layout | 4+1 |
|---|---|
| Usable area | 124 m² |
| Total floors | 2 |
What does this listing have to offer?
| Garage |
| MHD 0 minutes on foot |
What you will find nearby
Still looking for the right one?
Set up a watchdog. You will receive a summary of your customized offers 1 time a day by email. With the Premium profile, you have 5 watchdogs at your fingertips and when something comes up, they notify you immediately.





















