Plot for sale • 1571 m² without real estateHamburg Poppenbüttel Hamburg 22391
Hamburg Poppenbüttel Hamburg 22391Public transport 1 minute of walkingIn one of Hamburg's most sought-after residential locations, in the green and well-established district of Poppenbüttel, this high-quality real estate offering presents a rare opportunity for investors, project developers, or owner-occupiers. The approximately 1,571 m² plot impresses with its quiet setting, superior residential environment, and an already advanced project preparation.
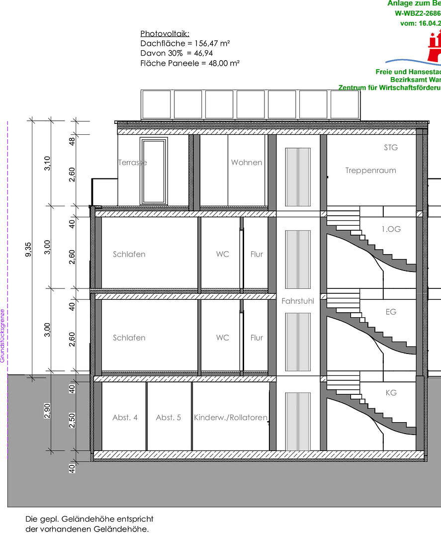
Approved New Building Project
For the front area of the property, a complete building permit (including a tree survey) was issued in April 2025, providing a high degree of legal and planning certainty.
The approved construction project involves the construction of a multi-family house with approximately 450 m² of living space, distributed across five modern residential units. The apartment layouts are optimally tailored to meet the local demand and are suitable both for premium renting and for conversion into condominiums. For the new construction, only the demolition of an existing double garage is required, thereby avoiding significant demolition costs and allowing for a prompt start of construction.
Existing Semi-Detached House with Flexible Use
On the rear part of the property, there is an existing semi-detached house built in 1975. Each half offers around 140 m² of living space plus a basement. The semi-detached units are currently rented on a fixed-term basis and can be handed over rent-free. This creates flexible options—ranging from continuing the rental to owner-occupancy, or even a future redevelopment of the property.
The property is being sold commission-free directly by the owner, and viewings can be arranged at any time by appointment.
Poppenbüttel is one of the most popular residential areas in northern Hamburg. The district is characterized by a quiet, green environment, excellent infrastructure, and a high quality of life. Shopping facilities, schools, kindergartens, medical services, and leisure activities are all nearby. The proximity to the Alstertal and the good connections to public transportation and Hamburg Airport further enhance the attractiveness of the location.
The property is being sold commission-free directly by the owner, and viewings can be arranged at any time by appointment.
This offering combines a spacious plot, an already approved new building project with approximately 450 m² of living space, minimal demolition requirements, and a valuable existing semi-detached house with flexible handover options. It is a rare combination of planning certainty, location quality, and development potential in one of Hamburg’s finest residential areas.
The property is being sold commission-free directly by the owner, and viewings can be arranged at any time by appointment.
Property characteristics
| Available from | 26/01/2026 |
|---|---|
| Land space | 1,571 m² |
| Listing ID | 979468 |
|---|---|
| Price per unit | €1,337 / m2 |
What does this listing have to offer?
| MHD 1 minute on foot |
What you will find nearby
Still looking for the right one?
Set up a watchdog. You will receive a summary of your customized offers 1 time a day by email. With the Premium profile, you have 5 watchdogs at your fingertips and when something comes up, they notify you immediately.











