Flat to rent 4+1 • 116 m² without real estateHindenburgerstr 96 Neustadt an der Weinstraße Neustadt an der Weinstraße Rheinland-Pfalz 67433
Hindenburgerstr 96 Neustadt an der Weinstraße Neustadt an der Weinstraße Rheinland-Pfalz 67433Public transport 2 minutes of walking • GarageAvailable for rent is apartment WHG 1, a spacious maisonette apartment with approximately 115.27 m² of living space, located on the 1st upper floor of the front building with direct access to the main entrance. The apartment spans two levels (1st and 2nd floors) and impresses with a well-thought-out layout, plenty of light, and a unique living ambiance.
The building itself is very well maintained and architecturally appealing.
Renovation & Condition:
The apartment is currently undergoing comprehensive renovations and, upon completion, will be handed over in a modern, very well maintained condition:
• All rooms newly painted
• New windows throughout the apartment
• New apartment entrance door
• New skirting boards
• New light switches & sockets
• Bathroom visually refreshed
• The large terrace will be completely renewed, including new waterproofing
Floor Plan & Room Layout – WHG 1:
1st Floor – Living & Guest Area:
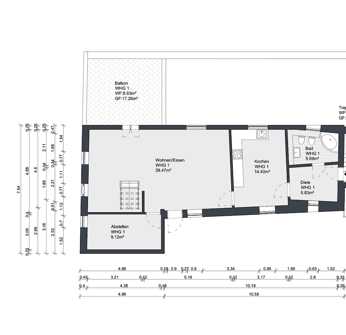
• Hallway (approx. 5.83 m²)
• Spacious living and dining area (approx. 39.47 m²)
• Separate kitchen area (approx. 14.40 m²)
• Daylight bathroom (approx. 5.69 m²)
• Additional room (approx. 9.12 m²)
→ Ideal as a children’s room, office, or guest room
• Access to the large terrace
→ Approx. 18 m² total area, to be completely redone
Note:
In the lower living area, the ceiling height is slightly lower than usual, which gives the room a cozy, homely character and works very well in everyday use.
2nd Floor – Private Retreat:
The upper level is ideally designed as a private sleeping and working area:
• Bedroom (approx. 8.62 m²)
• Work/dressing room (approx. 7.81 m²)
• Hallway (approx. 15.38 m²)
Beautiful wooden ceiling with a warm, distinctive living ambiance
+ Small French balcony
Particularly Worth Noting:
• The entire upper level is fully insulated
• New windows provide excellent thermal and sound insulation
• Windows on both sides allow for optimal cross-ventilation in summer
• Plenty of natural light creates a bright, friendly atmosphere
This level is perfect as a bedroom with a dressing area and home office – quiet, private, and clearly separated from the living and guest areas.
Additional Amenities:
• Basement area with the possibility of placing a washing machine & dryer
• Very well maintained overall property
• Central downtown location with short distances to shopping, dining, and public transportation
Optional:
• Garage in the neighboring building available for rent at €70 per month
Brief Overview:
Apartment WHG 1
• Approx. 115.27 m² net living space – total area approx. 144.64 m²
• Maisonette over the 1st & 2nd floors
• Large living/dining area
• 3 flexibly usable rooms
• Large terrace (approx. 18 m²)
• Freshly renovated
• Basement with laundry facilities
• Optional garage
• Neustadt – central location
Conclusion:
An exceptional maisonette apartment with a clear separation between living and retreat areas, plenty of light, high-quality renovations, and a spacious terrace – ideal for couples, home office users, or small families who appreciate central living as well as spaciousness and atmosphere.
The apartment is located on Hindenburgstraße, right in the heart of Neustadt an der Weinstraße – a location that combines urban living with quality of life.
This central address offers you everything you need for everyday life, right at your doorstep or just a few minutes away on foot:
• Various shopping opportunities and small stores
• Cafés, restaurants, and bars for leisure & enjoyment
• Doctors, pharmacies, and service providers for daily needs
• Excellent connections to public transportation
• Short distances to schools, kindergartens, and urban infrastructure
• ImmobilienScout24
Despite the central location, the surroundings are pleasantly quiet and pleasant – a perfect mix of city life and residential comfort.
Thanks to the proximity to green spaces, parks, and cycling paths, you can fully enjoy the Palatinate lifestyle with its excellent outdoor and leisure offerings. And being on the edge of the Palatinate Forest makes Neustadt a location that superbly combines nature and city life.
Apartment WHG 1
• Approx. 115.27 m² net living space – total area approx. 144.64 m²
• Maisonette over the 1st & 2nd floors
• Large living/dining area
• 3 flexibly usable rooms
• Large terrace (approx. 18 m²)
• Freshly renovated
• Basement with laundry facilities
• Optional garage
• Neustadt – central location
Renting a garage in a coveted downtown location, right in front of your own door, is optional and available—subject to availability—for €70 per month.
Property characteristics
| Age | Over 5050 years |
|---|---|
| Condition | After reconstruction |
| Floor | 1. floor out of 2 |
| EPC | E - Wasteful |
| Price per unit | €8 / m2 |
| Available from | 15/02/2026 |
|---|---|
| Layout | 4+1 |
| Listing ID | 979411 |
| Usable area | 116 m² |
What does this listing have to offer?
| Balcony | |
| Garage |
| Basement | |
| MHD 2 minutes on foot |
What you will find nearby
Still looking for the right one?
Set up a watchdog. You will receive a summary of your customized offers 1 time a day by email. With the Premium profile, you have 5 watchdogs at your fingertips and when something comes up, they notify you immediately.





















