
Office to rent • 130 m² without real estateLagerstraße 12 Mannheim Mannheim Baden-Württemberg 68169
Lagerstraße 12 Mannheim Mannheim Baden-Württemberg 68169Public transport 9 minutes of walking • ParkingFor rent is a spacious and bright atelier/office loft in the Mannheim industrial harbor. All rooms, including the bathroom, were completely renovated two years ago.
On the premises, there is also a logistics company.
The building was fundamentally modernized in 2006/2007 and received a new roof.
Located in the Mannheim industrial harbor – therefore, it is not a quiet area.
Here, the rugged charm of industry mixes with atelier culture.
A scrapyard is located nearby.
Please be sure to visit and check out the location before contacting!
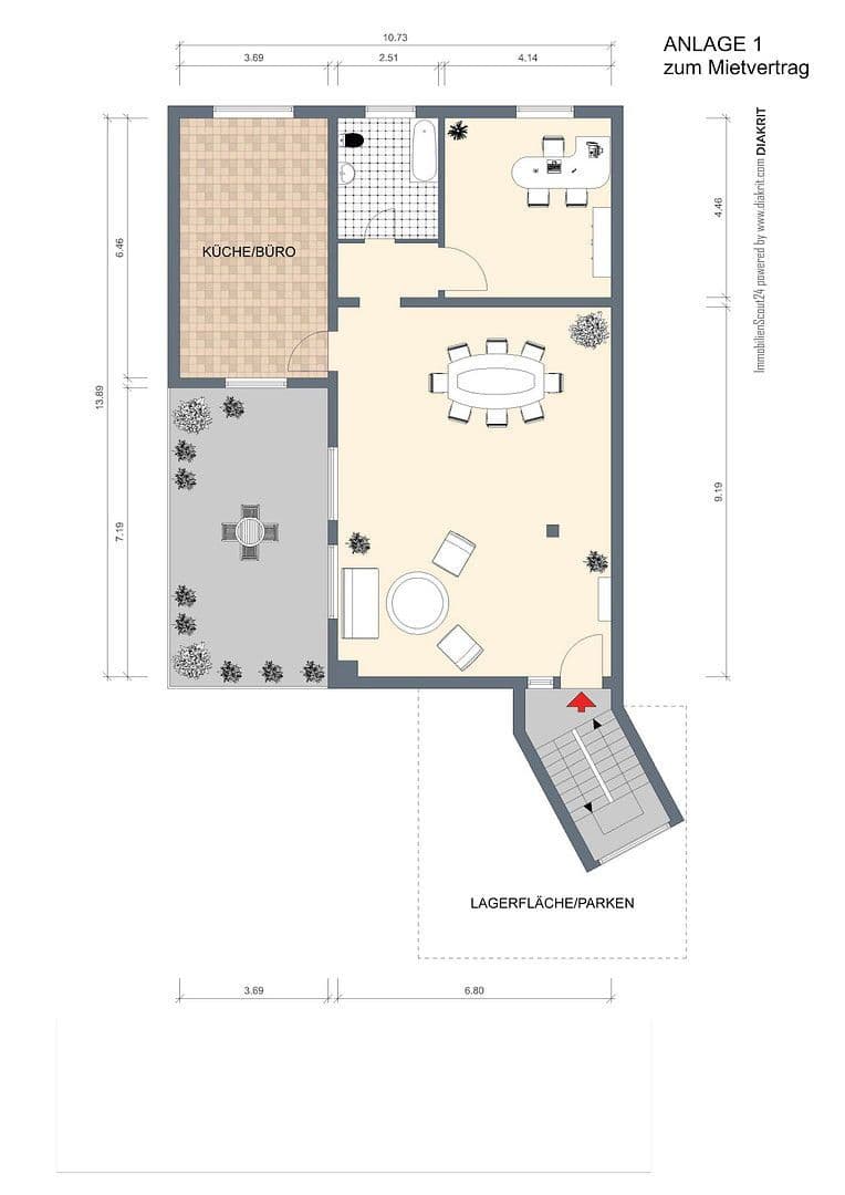
All floors in the atelier are newly installed (PVC planks with a wood finish). The bathroom is newly tiled and equipped with new sanitary fixtures. Triple-glazed plastic windows with shutters complete the offer. The atelier is rented unfurnished and without a kitchenette.
The atelier’s distinctive charm is enhanced by the spacious roof terrace.
The monthly total rent of €1,205 includes the net cold rent as well as the flat rates for heating, water, and additional costs. Two parking spaces in the courtyard can be rented for an additional €50.
Commission-free rental from the owner!
Please note that the rental is only available to individuals/companies with a registered business!
Please make sure to contact us exclusively via the contact button in this advertisement.
Property characteristics
| Age | Over 5050 years |
|---|---|
| Condition | After reconstruction |
| Listing ID | 979168 |
| Price per unit | €6 / m2 |
| Available from | 01/08/2025 |
|---|---|
| Floor | Ground floor |
| Land office | 130 m² |
What does this listing have to offer?
| Basement | |
| MHD 9 minutes on foot |
| Parking |
What you will find nearby
Still looking for the right one?
Set up a watchdog. You will receive a summary of your customized offers 1 time a day by email. With the Premium profile, you have 5 watchdogs at your fingertips and when something comes up, they notify you immediately.














