Flat for sale • 293 m² without real estateSollingergasse 23 Wien 19. Bezirk Wien 1190
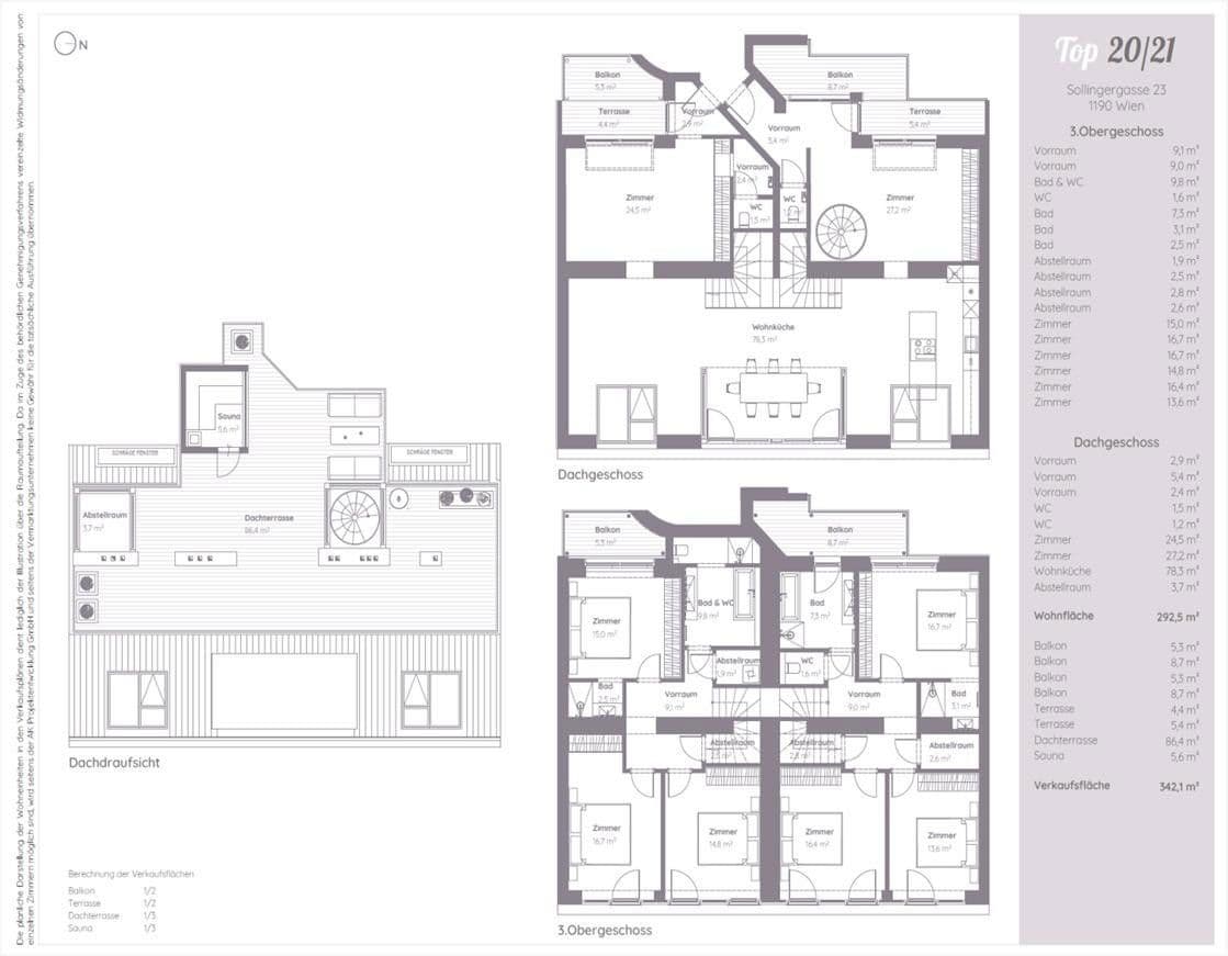
Sollingergasse 23 Wien 19. Bezirk Wien 1190Public transport 4 minutes of walking • Lift • Parking • GarageThis exceptional Penthouse Top 20/21 offers luxurious living at the highest level and spans two levels with an impressive living area of approximately 292.5 m². Large windows extend throughout the entire apartment, flooding the rooms with natural light while simultaneously providing breathtaking views in all directions.
The open-plan living area offers plenty of space for relaxation and elegant living. The architecture combines clean lines with high-quality finishes and custom carpentry built-ins, which create a harmonious and elegant overall impression throughout the apartment.
The penthouse features a total of 6 bedrooms, including two spacious master bedrooms, each with two private shower bathrooms and direct access to a balcony. The layout guarantees maximum privacy and living comfort.
The apartment is delivered without a kitchen, offering maximum flexibility for individual residential and design concepts. All living areas are fully air-conditioned, and a water filtration system ensures treated Viennese water.
A true highlight is the spacious rooftop terrace of approximately 86.4 m², equipped with a private sauna and offering spectacular panoramic views over Vienna extending to the surrounding vineyards and hills. This exclusive outdoor area provides a special experience at any time of the day—whether for relaxing, enjoying, or entertaining.
Located in one of the most sought-after residential areas in Vienna’s 19th district, this exclusive penthouse combines tranquility, privacy, and excellent quality of life. Sollingergasse is known for its green, elegant surroundings with top-class infrastructure as well as excellent connectivity to the center of Vienna.
The immediate proximity to the recreational areas of Cobenzl and Kahlenberg offers a unique blend of urban living and closeness to nature. Shopping opportunities, schools, international institutions, and public transport links are all conveniently within reach. This is a retreat for those seeking something special—quiet, exclusive, yet excellently connected.
• Countryside-style parquet flooring, oiled
• High-quality solid wood doors
• Porcelain stoneware tiles
• Fully air-conditioned & underfloor heating
• Modern aluminum-wood sliding windows
• High-security entrance door
• Rooftop terrace with sauna & 360° views
• High-quality marble kitchen
• Miele built-in appliances
• Custom carpentry built-ins throughout the apartment
• Move-in ready – premium equipment in all areas
• Rooftop terrace approx. 86.4 m²
• 4 balconies totaling approx. 28 m²
• 9 rooms, 4 bathrooms, 4 toilets
• 2 storage rooms
• New building (2016) – condition: very good
• Absolute tranquil location
• Water filtration system
Originally planned as two separate living units, these were merged by the owner into a spacious penthouse. The structural requirements for a future separation are still in place, making the property ideal for owner-occupiers, partial rentals, or as an investment concept.
If you have any further questions, please feel free to contact me.
Property characteristics
| Age | Over 5050 years |
|---|---|
| Floor | 5. floor out of 3 |
| Usable area | 293 m² |
| Condition | Good |
|---|---|
| Listing ID | 978984 |
| Price per unit | €10,683 / m2 |
What does this listing have to offer?
| Balcony | |
| Garage | |
| Parking | |
| Terrace |
| Basement | |
| Lift | |
| MHD 4 minutes on foot |
What you will find nearby
Still looking for the right one?
Set up a watchdog. You will receive a summary of your customized offers 1 time a day by email. With the Premium profile, you have 5 watchdogs at your fingertips and when something comes up, they notify you immediately.













