
Flat to rent 3+1 • 102 m² without real estate, Rhineland-Palatinate
, Rhineland-PalatinatePublic transport less than a minute of walking • ParkingWelcome to your new home! This spacious 3-room, accessible apartment on the ground floor of a well-maintained 7-unit building built in 2007 offers a modern living experience on 102 m² in the quiet area of Mutterstadt. Here, comfort, style, and practical details come together to create a place where you will feel right at home from the start. Shopping, schools, and kindergartens are conveniently reachable – ideal for couples, singles, or small families.
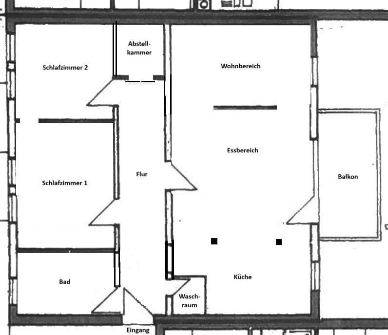
What makes this apartment special:
- An open-plan living, dining, and kitchen area that delights with its spaciousness – perfect for spending time together and enjoying cozy evenings.
- A modern, high-quality fitted kitchen (fully equipped – rental is only possible in conjunction with the purchase of the kitchen).
- A large balcony that invites you to relax.
- A high-quality bathroom featuring a bathtub, a large shower area, a toilet, and practical built-in cabinets – complemented by low-maintenance, moisture-resistant walls.
- Vinyl flooring that creates a warm living atmosphere.
- Underfloor heating and a SmartHome system (doorbell, heating, shutters) for maximum comfort.
- Security features such as burglar-proof shutter mounts and motion sensors on both the front and balcony doors, which are linked to a smart smoke alarm (for alerting).
- A basement storage room and a laundry room with its own meter.
- Barrier-free design – ideal for anyone who appreciates comfortable, step-free living.
Parking:
A parking space right in front of the house as well as a covered parking space in the courtyard.
Energy & Heating:
Gas underfloor heating, Energy Efficiency Class C.
Rental Terms:
Cold rent: €1,500
Additional costs: €300
Deposit: €4,500
This apartment is ideal for those who value modern living, comfort, and a quiet location. Pets, shared flat arrangements, and other individual agreements are possible upon discussion.
The apartment is located in a quiet residential area of Mutterstadt with very good infrastructure. Shopping opportunities, restaurants, and doctors are easily accessible. Schools and kindergartens are in the immediate vicinity, making the location especially family-friendly. Public transportation connections are good, and proximity to the A61 and A65 ensures quick access to surrounding cities such as Ludwigshafen, Mannheim, and Speyer.
Property characteristics
| Age | Over 5050 years |
|---|---|
| Condition | After reconstruction |
| Listing ID | 978914 |
| Usable area | 102 m² |
| Available from | 01/04/2026 |
|---|---|
| Layout | 3+1 |
| EPC | C - Economical |
| Price per unit | €15 / m2 |
What does this listing have to offer?
| Balcony | |
| Basement | |
| MHD 0 minutes on foot |
| Wheelchair accessible | |
| Parking |
What you will find nearby



Flat to rentFriedrich-Burschell-weg Ludwigshafen Oggersheim Rheinland-Pfalz 67071- 3+1
- 115 m²
€1,200 + €290

Still looking for the right one?
Set up a watchdog. You will receive a summary of your customized offers 1 time a day by email. With the Premium profile, you have 5 watchdogs at your fingertips and when something comes up, they notify you immediately.





































