House for sale 4+kk • 135 m² without real estate, Schleswig-Holstein
, Schleswig-HolsteinPublic transport 1 minute of walking • Parking • GarageFreestanding urban villa in an exclusive location
Completely solid construction (even on the upper floor) – two full floors without sloping ceilings – luxurious features
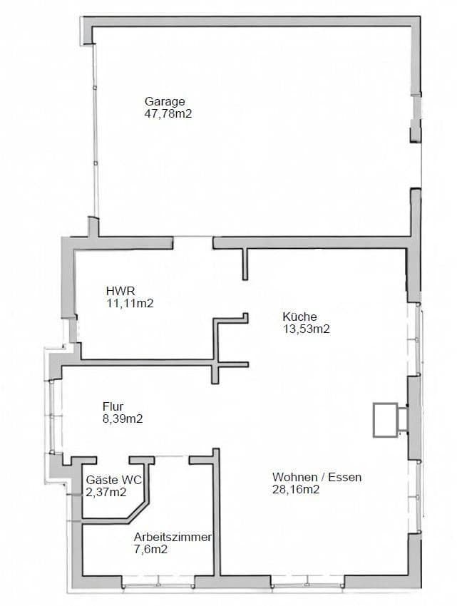
Living area: approx. 135 m², garage 47 m² according to the floor plan.
Usable area: approx. 47 m² double garage + fully partitioned attic.
Available from July 2026 or by arrangement (possibly even earlier)
Rooms:
4.5 spacious, bright rooms
Modern, open living/dining area, three well-proportioned bedrooms and an office as a half room, entrance area with an open gallery, plenty of space in the attic.
1.5 bathrooms:
Luxurious full bath with a freestanding bathtub, level entry walk-in rain shower, illuminated shower niche with tiled seating bench, double washbasin, television, laundry chute into the utility room.
Guest WC on the ground floor with an additional urinal.
Features:
Three-sided panoramic fireplace, high-quality and fully equipped kitchen with a large kitchen island, extra-high ceilings on the ground floor, underfloor heating throughout the house, extensive smart home system, solar system with 18 kW, battery storage and wallbox, electric shutters, elegant wooden staircase and much more.
Plot: approx. 1,291 m² in an exclusive location.
Additionally, there is a shared private road.
Large double garage with direct access to the house, huge sunny garden adjacent to the forest with a fire pit and play area, completely fenced with total privacy, two spacious terraces facing south and east, lawn irrigation system with a rainwater cistern.
A more detailed exposé can be sent upon request.
An energy certificate is available and is in energy efficiency class A.
Additional information: Building documents available. This exposé is for informational purposes only and is non-binding. No liability for the information provided. Private sale – no warranty, sale in the observed condition – no guarantee for equipment or defects.
Schwarzenbek – a family-friendly town in Schleswig-Holstein with excellent infrastructure. The house is located in a quiet cul-de-sac at the end of a play street, surrounded by forest and with excellent connections:
• Schwarzenbek train station: 2 km
• Highway: 8 km
• Airport: 40 km
• School/Kindergarten: 1.5 km
• Hospital: 11 km
• Shopping/Dining: 2 km
Close to the center yet secluded by the adjacent forest.
Ideal for families, couples, or self-employed individuals – centrally located yet close to nature.
Property characteristics
| Age | Over 5050 years |
|---|---|
| Condition | Very good |
| Listing ID | 978249 |
| Usable area | 135 m² |
| Total floors | 2 |
| Available from | 01/07/2026 |
|---|---|
| Layout | 4+kk |
| EPC | A - Extremely economical |
| Land space | 1,291 m² |
| Price per unit | €5,919 / m2 |
What does this listing have to offer?
| Garage | |
| MHD 1 minute on foot |
| Parking | |
| Terrace |
What you will find nearby
Still looking for the right one?
Set up a watchdog. You will receive a summary of your customized offers 1 time a day by email. With the Premium profile, you have 5 watchdogs at your fingertips and when something comes up, they notify you immediately.





















