Commercial property for sale • 76 m² without real estateWeiserstraße 28 Salzburg Schallmoos Salzburg 5020
Weiserstraße 28 Salzburg Schallmoos Salzburg 5020Public transport 2 minutes of walkingDue to my retirement, I am now selling my commercial premises on a commission‐free basis, located in the immediate vicinity of Salzburg Main Station.
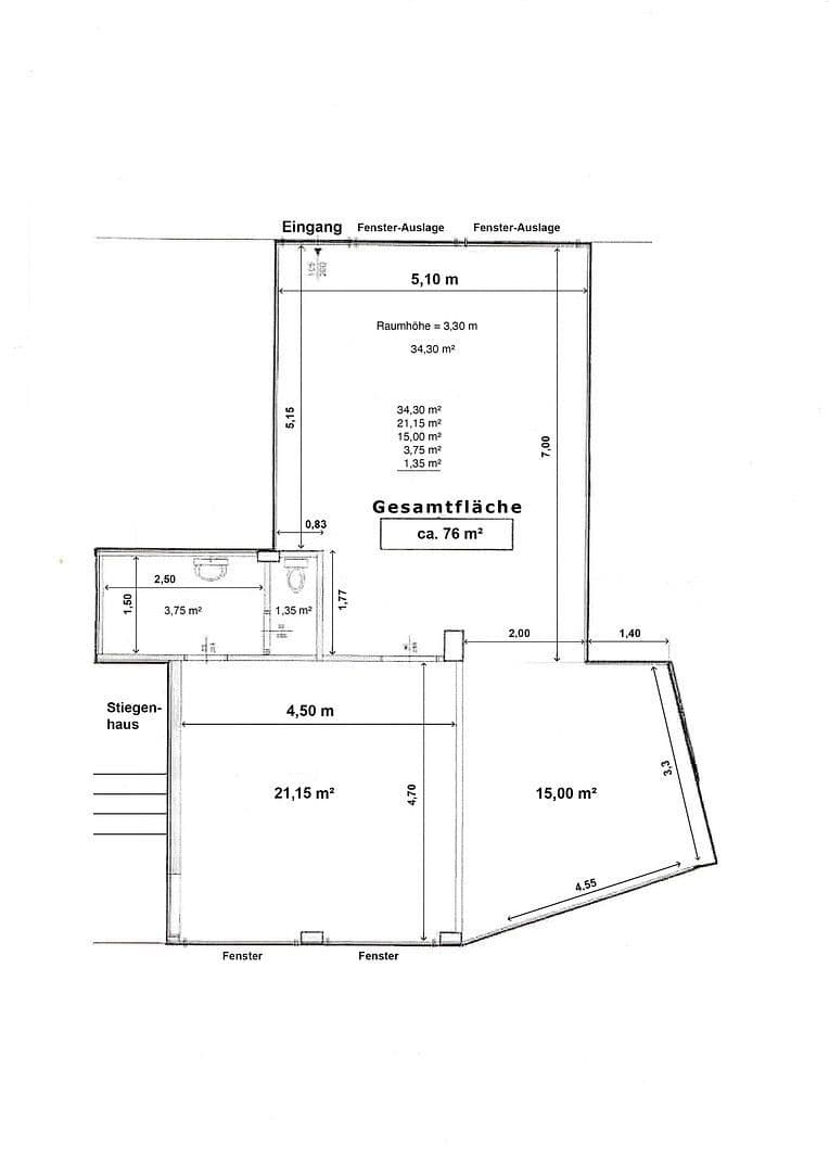
The premises is situated on the ground floor of a residential block that comprises a total of 42 apartments and three additional commercial units.
The entire commercial space of approximately 76 m² is divided into three areas:
1. Sales area (approx. 50 m²)
2. Office area (approx. 21 m²) – these two spaces are separated only by a temporary wall that can be removed if desired.
3. Storage room with a water connection (or a small kitchen, approx. 5 m²) and a toilet (approx. 1 m²)
There are two entrance doors to the premises: one from the street and the other (a heavy security door) in the rear courtyard of the residential block, or alternatively in the building’s stairwell.
Additionally, the storage room is separated from the office area by a security door.
All display areas, two large windows overlooking the inner courtyard, and the entrance door are further protected by shutters.
A few years ago, the entire premises was extensively renovated – all electrical wiring, sockets, light switches, radiators, and doors were replaced. The floor has been fitted with porcelain stoneware tiles, and the whole space was recently repainted.
A wired alarm system (now technically outdated) has been installed and is still operational.
The offered commercial premises is also excellently suited as an office.
The current operating costs are approximately 386 EUR (including VAT), although the premises has not been heated in recent years. Directly below the premises is the heating room for the entire residential block, ensuring that the room temperature rarely falls below 19°C even in winter.
P.S. Not suitable for a gastronomy business. An energy certificate is available. The commercial premises is also available for rent (monthly rent of 1,500 EUR).
Property characteristics
| Condition | After reconstruction |
|---|---|
| Land non-residential space | 76 m² |
| Listing ID | 978232 |
|---|---|
| Price per unit | €4,342 / m2 |
What does this listing have to offer?
| Wheelchair accessible |
| MHD 2 minutes on foot |
What you will find nearby
Still looking for the right one?
Set up a watchdog. You will receive a summary of your customized offers 1 time a day by email. With the Premium profile, you have 5 watchdogs at your fingertips and when something comes up, they notify you immediately.




















