
Flat for sale 2 bedroom • 37 m² without real estateMlýnská, Brno - Trnitá, Jihomoravský Region
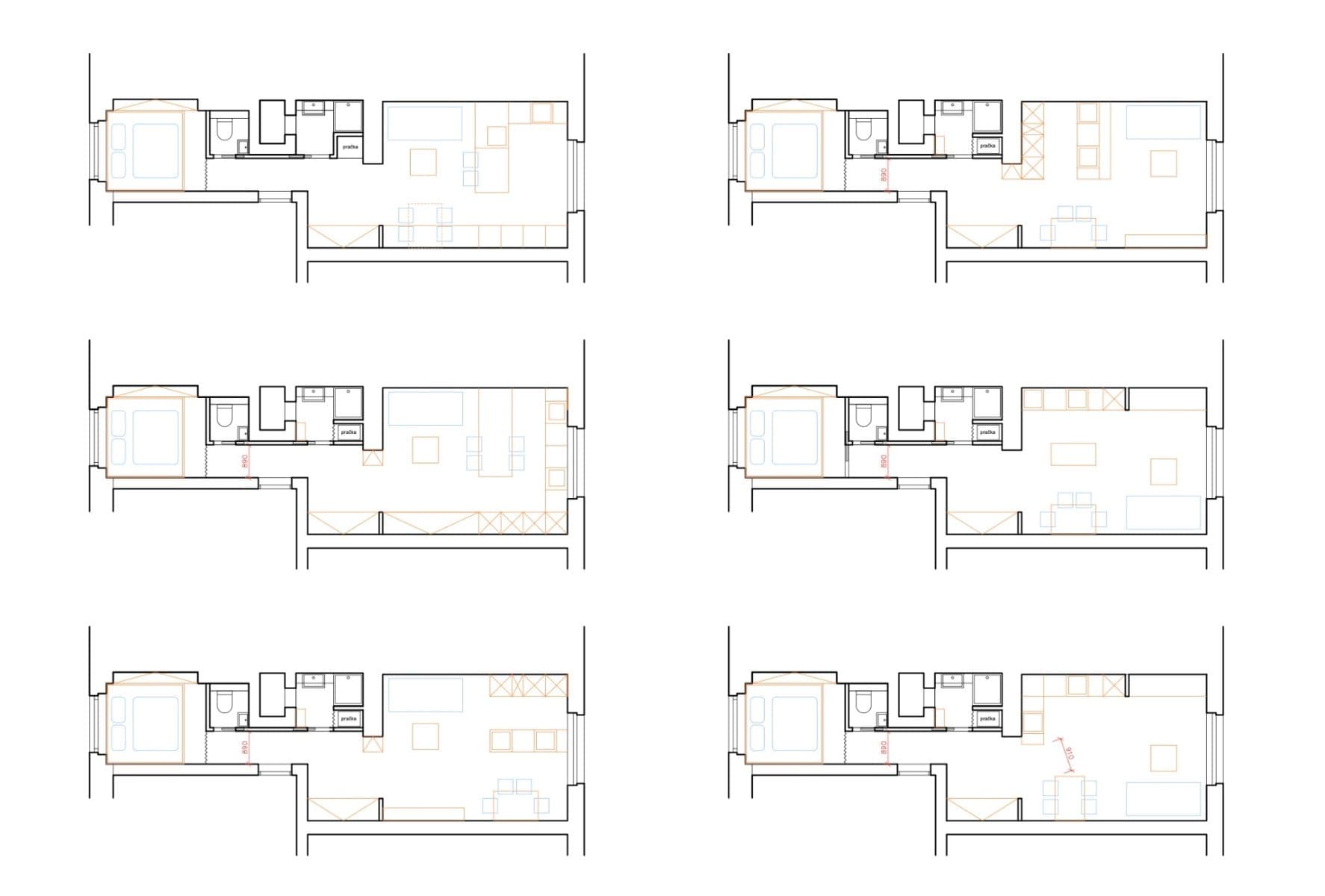
Mlýnská, Brno - Trnitá, Jihomoravský RegionCellar 2 m²Nabízíme k prodeji byt určený k celkové rekonstrukci. Aktuální dispozice bytu je 1+1 (viz výkres s popisem "Stávající stav - dispozice"), jsou ale zpracovány návrhy od bytového architekta na hned několik možných proměn bytu až do velikosti 2+1 (viz ostatní přiložené návrhy dispozic).
Byt v osobním vlastnictví je umístěn v 1NP cihlové budovy, která je částečně revitalizována. Dům je zateplen pouze ze strany do vnitrobloku (dvora), do kterého je přístup přes společný vjezd/vstup se sousedním domem. Na tomto společném pozemku bude budoucímu majiteli také patřit adekvátní podíl. Kolem roku 2015 proběhla v domě také výměna stupaček a ležaté kanalizace. Všechny další technické a konstrukční aspekty bytu a domu jsou udržovány. Energetická náročnost budovy je ohodnocena štítkem G (resp. energetický štítek nebyl zpracován).
Jednotka je v původním stavu. Topení 2xWAW. Výměna oken v bytě za plastová proběhla před rokem 2013. K bytu náleží také sklepní kóje o rozloze cca 2 m².
Aktuální měsíční příspěvky do SVJ jsou pro tento byt stanoveny na 1720 Kč, přičemž z toho
- 1270 Kč je příspěvek na fond oprav, který je aktuálně ve výši 35 Kč / m2
- 410 Kč je záloha na vodu
- 40 Kč je ostatní (společná el. apod.)
Každý byt v domě si pak dál samostatně řeší energie pro vlastní spotřebu elektřiny, na vytápění a vaření.
SVJ nesplácí žádný úvěr.
S celkovou obytnou plochou 37 m² a s okny směřovanými do ulice i do tichého zeleného vnitrobloku se jedná o ideální řešení jak pro mladé jednotlivce, tak i pro pár, jak je ale vidět v návrzích od architekta, tak také pro startovací rodinu, která hledá kompaktní a funkční bydlení.
Byt je aktuálně pronajímán, je zde tedy možnost ponechat v bytě nadále nájemníky a brát koupi jako investici do budoucna.
V docházkové vzdálenosti několika minut se nachází OC Vaňkovka, dříve TESCO Dornych, kancelářský komplex Vlněna, hlavní vlakové nádraží, autobusové nádraží Zvonařka, aj.
Ve vzdálenosti 500 metrů pak zastávka MHD Masná (tram, bus, trolej), pouze 400 metrů od bytu je hlavní silniční tah na D1, ulice Olomoucká, Ostravská. Možnost využití dostupného rezidentního parkování, tzv. modrých zón.
Prohlídky budou uskutečněny postupně dle zájmu v několika termínech, o kterých budou zájemci dopředu informováni.
V případě zájmu o prohlídku či další informace mne kontaktujte.
Uvedená cena je konečná. Bez dalších provizí.
Property characteristics
| Available from | 05/01/2026 |
|---|---|
| Building construction | Brick |
| Fully furnished | Unfurnished |
| Listing ID | 977981 |
| EPC | G - Extremely uneconomical |
| Usable area | 37 m² |
| Condition | Good |
|---|---|
| Layout | 2 bedroom |
| Floor | Ground floor |
| Ownership | Personal |
| Location | Centre |
| Price per unit | CZK 122,189 / m2 |
Are you choosing a apartment?
Make sure you have all the important information!
What does this listing have to offer?
| Basement: 2 m² |
What you will find nearby
Still looking for the right one?
Set up a watchdog. You will receive a summary of your customized offers 1 time a day by email. With the Premium profile, you have 5 watchdogs at your fingertips and when something comes up, they notify you immediately.












