
Flat to rent 3+1 • 76 m² without real estateScheidertalstraße 20, , Hesse
Scheidertalstraße 20, , HessePublic transport 1 minute of walkingHere is the English translation of the text:
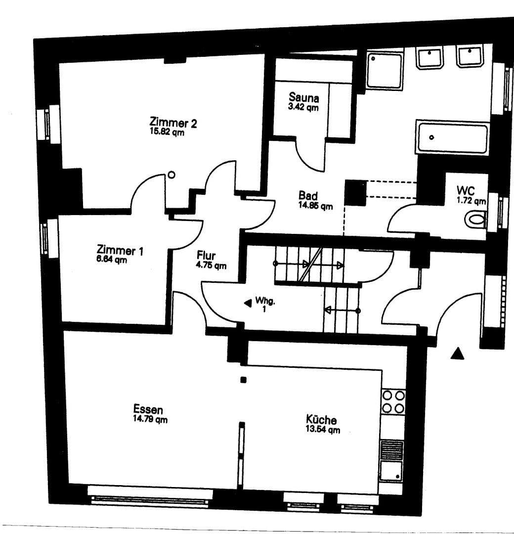
The property being offered is a well-proportioned 3-room apartment located at Scheidertalstraße 20 in 65232 Taunusstein. The apartment is situated in a well-maintained multi-family house and is delivered in a normal, unfurnished condition. It features two separate rooms, a spacious living/dining room, a separate kitchen, as well as a daylight bathroom and a separate WC. The layout is functional and is suitable for couples, small families, or professionals with home office needs. The living areas are well-lit and offer a pleasant living atmosphere.
The apartment is located in a quiet and established residential area of Taunusstein, a popular place to live in the Rhine-Main region. Daily shopping options, schools, kindergartens, and medical facilities are available in the nearby area. The public transportation connections are good, as is the accessibility to surrounding cities like Wiesbaden and Mainz via the federal highways. Additionally, the natural surroundings of the Taunus region offer high leisure and recreational value with numerous walking and hiking trails.
The apartment is offered unfurnished and in a normal, used condition. It includes a separate kitchen, a bathroom with a bathtub, and an additional guest WC. The flooring and wall finishes correspond to a classic residential standard. Heating is centrally provided. The clear layout allows for individual design possibilities and flexible use of the rooms.
The rental is offered for a fixed term of 3 years.
Property characteristics
| Age | Over 5050 years |
|---|---|
| Condition | Good |
| Listing ID | 977548 |
| Usable area | 76 m² |
| Available from | 08/01/2026 |
|---|---|
| Layout | 3+1 |
| EPC | D - Less economical |
| Price per unit | €9 / m2 |
What does this listing have to offer?
| Basement |
| MHD 1 minute on foot |
What you will find nearby
Still looking for the right one?
Set up a watchdog. You will receive a summary of your customized offers 1 time a day by email. With the Premium profile, you have 5 watchdogs at your fingertips and when something comes up, they notify you immediately.


















