House for sale 5+1 • 110 m² without real estate, Baden-Württemberg
, Baden-WürttembergPublic transport 1 minute of walking • Parking • GarageCharming semi-detached house with a large plot, garage & plenty of potential in the quiet area of Aalen
Welcome to your new home! This well-maintained semi-detached house combines solid living comfort, a thoughtful layout, and a generous plot – perfect for families, couples, or anyone who dreams of owning their own home.
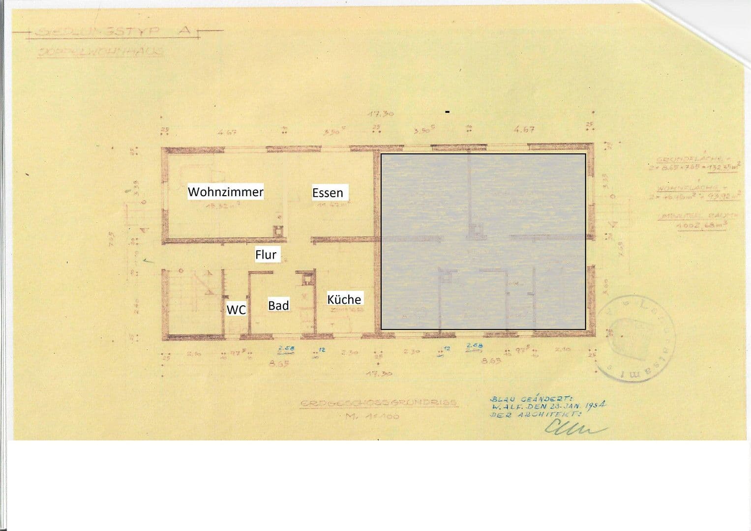
The house was built in 1958 using solid construction methods and is in good condition. Over approximately 110 m² of living space, there are 5 well-proportioned rooms spread over two floors, offering a variety of usage options – whether as a family home, home office, or guest room.
Especially noteworthy is the spacious plot of approximately 519 m², which provides plenty of room for gardening enthusiasts, children, or relaxed outdoor moments. Here, you can fulfill your individual living and garden dreams.
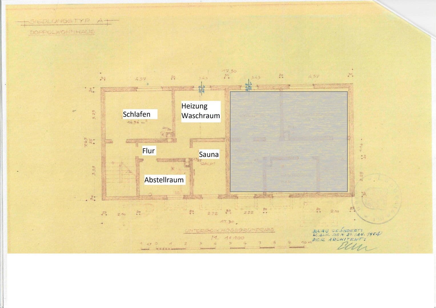
The fully basement area (100% basement) offers additional storage and usable space. The finished attic expands the living area and underscores the optimal utilization of the house.
For your vehicles, there is a garage as well as three additional parking spaces available – a real bonus in everyday life.
The location impresses with its quiet and established residential environment, excellent connection to the Aalen city centre, as well as nearby shopping, schools, and public transport.
The sanitary facilities were last modernized in 2023. In the fully basement area, there is a sauna with an integrated shower providing additional living and wellness comfort. The house is equipped with triple-glazed uPVC windows; moreover, the electrical installation has been modernized in accordance with current standards. The garden features two garden sheds offering plenty of storage space. There is also a greenhouse.
Property characteristics
| Age | Over 5050 years |
|---|---|
| Layout | 5+1 |
| EPC | G - Extremely uneconomical |
| Land space | 519 m² |
| Price per unit | €3,909 / m2 |
| Condition | After reconstruction |
|---|---|
| Listing ID | 977541 |
| Usable area | 110 m² |
| Total floors | 2 |
What does this listing have to offer?
| Basement | |
| Parking | |
| Terrace |
| Garage | |
| MHD 1 minute on foot |
What you will find nearby
Still looking for the right one?
Set up a watchdog. You will receive a summary of your customized offers 1 time a day by email. With the Premium profile, you have 5 watchdogs at your fingertips and when something comes up, they notify you immediately.



















