House for sale • 258 m² without real estateMax-Planck-Straße 3 Gera Gera Thüringen 07548
Max-Planck-Straße 3 Gera Gera Thüringen 07548Public transport 2 minutes of walkingBelow is the translation of the text marked by the XML tag :
Groomed multi-family house (MFH) for sale in the popular Gera district “Heinrichsgrün” (Max-Planck-Straße).
Property type: multi-family house (MFH), four-story building, solid construction, fully basemented, with garden and additional rear building
Year built: 1910
Address: Max-Planck-Str. 3, 07548 Gera
Plot area: 214 m²
Living area: approx. 258 m²
Rooms & residential units: 11 rooms distributed over 4 residential units, all units are rented
Commission: none, as this is a direct sale without an agent
Purchase price: €310,000
Annual net cold rent: €18,120 (fully rented)
The house is located on a side street with optimal infrastructural connections. You can reach the city forest, the bus stop, the kindergarten, Dahliengarten, and the baker within a one-minute walk, and the animal park and supermarket within two minutes on foot. In just a few more minutes on foot, you can reach a medical center, the Gera hospital, and the city center.
In recent years, extensive renovation measures have been implemented, for example: heating system renewed (energy source: gas), main riser replaced, fire protection updated to current standards, roof and roof structure of the main building refurbished, rear building roof renewed. The house is therefore in good overall condition and can immediately serve as an investment property.
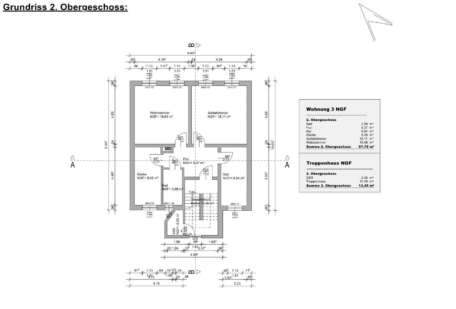
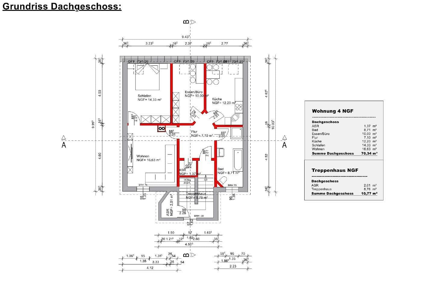
Each residential unit occupies a full floor. The four residential units are all rented. The apartments have generous layouts and the living areas are distributed as follows:
• Attic: 73 m² (1 residential unit, 3 rooms)
• 2nd floor: 70 m² (1 residential unit, 3 rooms)
• 1st floor: 70 m² (1 residential unit, 3 rooms)
• Ground floor: 45 m² (1 residential unit, 2 rooms)
Annual net cold rent: €18,120 (fully rented)
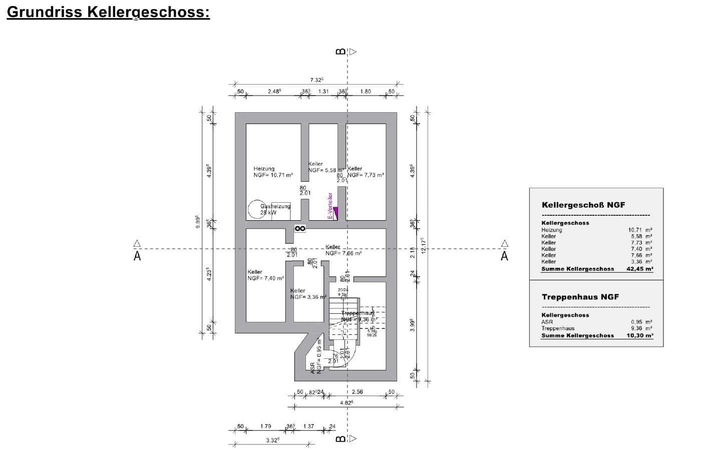
The house is fully basemented (lockable tenant storage areas, boiler room, electrical system).
The current energy performance certificate (issued 2025) indicates an energy value of 70.7 kWh/(m²a) and an energy efficiency rating of Class B.
In the rear courtyard/garden there is a solid rear building that still holds potential. Currently, the rear building and the garden are available for the tenants’ free communal use.
Summary:
- Apartments: laminate/tiles, bathrooms with tub and/or shower, textured wallpaper
- Garden: yes, for free use by the tenants
- Balcony/Terrace: no
- Fully basemented
- Gas heating
- Additional rear building
- Fully rented
- No commission from private seller, without an agent
Property characteristics
| Age | Over 5050 years |
|---|---|
| EPC | B - Very economical |
| Land space | 214 m² |
| Price per unit | €1,202 / m2 |
| Listing ID | 977504 |
|---|---|
| Usable area | 258 m² |
| Total floors | 4 |
What does this listing have to offer?
| Basement |
| MHD 2 minutes on foot |
What you will find nearby
Still looking for the right one?
Set up a watchdog. You will receive a summary of your customized offers 1 time a day by email. With the Premium profile, you have 5 watchdogs at your fingertips and when something comes up, they notify you immediately.
























