House for sale 5+1 • 130 m² without real estateSchachenstraße 25 Neuburg an der Donau Bruck Bayern 86633
Schachenstraße 25 Neuburg an der Donau Bruck Bayern 86633Public transport 6 minutes of walking • GarageA Great Property
----------------------------------------------------------------------------------------------------------------------------------
This detached single-family house was built in 1968 and features a living area of approximately 130 m² on a generous plot of about 1,089 m². It is located in a quiet, established residential area that has developed over the years and sits comfortably on the outskirts – ideal for families in need of space, nature enthusiasts, or developers looking to capitalize on the plot’s significant development potential.
The plot is optimally oriented: The long side faces southwest and borders on agricultural land. This creates especially pleasant natural light and an unobstructed view of the greenery.
The house was last modernized in 1990 and is in a normal, well-maintained condition. With a total of 5 rooms, it offers plenty of space for families or couples who desire extra areas for hobbies, a home office, or guests. In addition to the bathroom, there is a guest WC on the ground floor and a shower in the basement. The functional layout offers a variety of possibilities for individual design ideas. The house is also fully basemented and comes with its own garage. The heating of the house is provided by a centrally installed oil heating system.
Highlights:
- Quiet, established residential area on the outskirts
- Spacious plot
- Southwest orientation with lots of daylight
- Unobstructed view of the greenery – undevelopable field edge location
- Fully basemented
- Garage attached to the house
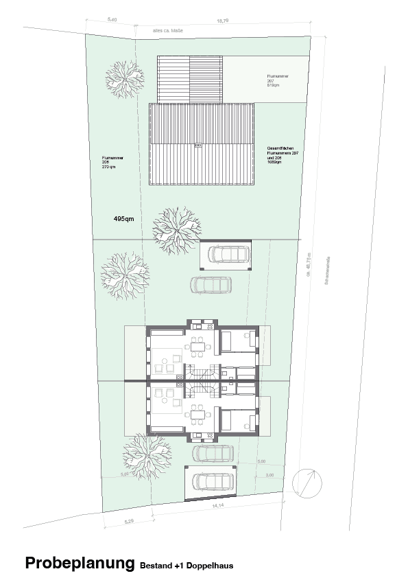
- Can be subdivided into up to 4 parcels; building inquiry is in process
With Many Design Possibilities
----------------------------------------------------------------------------------------------------------------------------------
1. Immediate Use of the Existing Property
The house can be inhabited immediately in its current condition. It is suitable both for owner-occupancy and as a solid investment.
2. Plot Subdivision
The plot is also very well subdividable – into up to 4 parcels of approximately 260 m² each. It thus offers space for up to four semi-detached houses.
The attached planning documents show various development possibilities. A corresponding building inquiry is in process.
In a Good Location
----------------------------------------------------------------------------------------------------------------------------------
Bruck is a district of the large district town of Neuburg an der Donau in the Upper Bavarian district of Neuburg-Schrobenhausen.
Neuburg an der Donau is a charming town with well-developed infrastructure. The location of the house provides excellent access to public transportation as well as quick access to shopping, schools, and medical facilities. The surroundings also offer numerous leisure opportunities such as two golf courses, parks, and recreational areas that invite outdoor activities.
With Excellent Transport Connections
----------------------------------------------------------------------------------------------------------------------------------
By Car:
Property characteristics
| Age | Over 5050 years |
|---|---|
| Condition | Good |
| Listing ID | 977491 |
| Land space | 1,089 m² |
| Price per unit | €4,500 / m2 |
| Available from | 21/01/2026 |
|---|---|
| Layout | 5+1 |
| Usable area | 130 m² |
| Total floors | 2 |
What does this listing have to offer?
| Balcony | |
| Garage | |
| Terrace |
| Basement | |
| MHD 6 minutes on foot |
What you will find nearby
Still looking for the right one?
Set up a watchdog. You will receive a summary of your customized offers 1 time a day by email. With the Premium profile, you have 5 watchdogs at your fingertips and when something comes up, they notify you immediately.



















