House for sale 3+1 • 87 m² without real estateBURGBLICK GRUNDSTÜCK EXKLUSIV NUR FÜR DANWOOD-HAUSBAU Güssing Burgenland 7540
BURGBLICK GRUNDSTÜCK EXKLUSIV NUR FÜR DANWOOD-HAUSBAU Güssing Burgenland 7540Public transport 2 minutes of walking • GarageBungalow: Below in the PDF you will find several pricing examples!
Dear future homeowners,
Do you want to make your dream of owning your own home come true, but aren’t sure which provider is right for you or who can offer you the house in the style you desire? With DAN-WOOD-HOUSE you can realize your dream home – even if you don’t have a concrete construction plan yet. Choose from 130 different house types and adapt them free of charge to your wishes. In addition, various wall constructions are available.
What a brilliant insight: It is not about what DAN-WOOD or the individual companies offer, but about how your individual vision of your dream home looks! Here, you will receive expert advice that will truly excite you!
I offer you my personalized consultation for your project! I begin with an initial consultation, preferably conducted on your building site. The shape, the differences in elevation, and the orientation of the site are the absolute main characters!
Don’t have a property yet? No problem! I am happy to provide an overview of the many great design possibilities of the DAN-WOOD houses. There are so many exciting aspects to clarify: the house type, the room layout, the roof design, the heating, the electrical system, the shading, and possible features such as “Smart Home.”
It is very important to know the overall financial expenses including sampling!
I am pleased to inform you that I will perform a preliminary sample process. This allows you to plan these costs very easily! It’s a really great help—not only can you create a financing plan, but you can also start looking for financing.
Don’t hesitate—contact me now! 0676 5537747
To order our catalog, please refer to “Catalog Series Today” at tatjana.wyss@danwood.at
Please include your address and telephone number with your order.
On your property or in…
Güssing: Approximately 2,600 m², perfectly level site, with property sizes and locations chosen freely. Sizes available from 500 m² to 1500 m².
Here are top-class building sites! In the best location with a breathtaking view of the beautiful Güssing Castle!
Güssing offers a future-proof, affordable, and energy-independent life in nature, making the investment in a property there a strategic asset.
Why Güssing
Energy pioneer and sustainability:
The town is energy self-sufficient and internationally recognized.
High coverage (over 85%) with regional biomass district heating leads to stable, low heating costs.
Affordable property prices:
Prices are still significantly lower than the Austrian average, enabling the dream of homeownership with spacious lots.
Strong infrastructure and quality of life:
As a district suburb, Güssing guarantees short distances and excellent services.
Planned major investments:
A new education campus and a modern medical center (from 2026),
A cultural center (Güssing Castle) and proximity to thermal baths.
The complete opening of the S7 brings significant advantages for Güssing and its residents:
Faster connection to metropolitan areas: The expressway drastically reduces travel time to the A2 South Motorway, significantly cutting travel times to Graz and Vienna.
Regional relief: It reroutes through traffic that previously burdened towns such as Fürstenfeld and Rudersdorf, directing it along the new route.
Economic benefits: The new connection, including the junction at Rudersdorf/Dobersdorf and the proximity to the Königsdorf link, strengthens Güssing as a district suburb and economic hub by enhancing accessibility and fostering new industrial parks.
Value stability and development potential:
Targeted municipal investments in infrastructure, revitalization of the town center, and the technology center secure the long-term value of properties.
The municipal strategy aims to meet demographic challenges and to establish Güssing as an attractive residential and business location.
Target group:
Families looking for a future, security, and nature, as well as those who value low energy costs and ecological responsibility.
Other building sites available:
Plot, 8323 Kohldorf: Building plot with plenty of sun in the hilly region of eastern Styria, 15 km from Graz!
Size: 758 m², purchase price: €66,000, --
Plot, 8323 Kohldorf: Sunny building plot in Kohldorf, 15 km east of Graz!
Size: 787 m², purchase price: €69,000, --
Plot, 8311 Markt Hartmannsdorf: Fully serviced, sunny building plot in Markt Hartmannsdorf
Size: 920 m², purchase price: €53,000, --
Plot, 9335 Lölling Graben: Building plot with a breathtaking distant view in the picturesque Carinthian mountains
Size: 1001 m², purchase price: €50,000, --
Plot, 8075 Hart near Graz: Sunny plot on the outskirts of Graz
Size: 1980 m², purchase price: €475,000, --
Plot in Stainz for sale: Sunny plot on the outskirts of Stainz
Size: 825 m², purchase price: €149,000,
There is no economic connection between the property owner and the builder of the house.
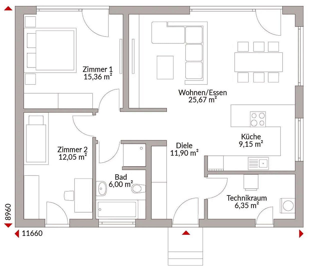
BUNGALOW – 3-room, bathroom, WC, exclusive equipment!
Building plot available in sizes: 500 m², 1000 m², 1500 m² (on request)
Price includes:
Turnkey construction (simply move in with your furniture!)
Delivery and installation from the top edge of the foundation
Snow load–reinforced roof structure
Air–water heat pump, underfloor heating
Decentralized home ventilation with heat recovery (cools in summer)
Electric roller shutters throughout the house
All floor coverings according to your selection
All sanitary fixtures according to your selection
Photovoltaic preparation
All-round worry-free package
OPTIONAL: Self-done work is of course possible!
Consultation and Sales – Ms. Tatjana Wyss
+43 676 553 77 47
tatjana.wyss@danwood.at
Immediate information or initial consultation!
More offers:
https://qr.scan.page/uploads/pdf/1751712478803_686335a001f76.pdf
Request a building description and catalogs!
For this, it is necessary that you provide your telephone number, email address, and address.
Thank you very much!
Property characteristics
| Age | Over 5050 years |
|---|---|
| Layout | 3+1 |
| Usable area | 87 m² |
| Total floors | 1 |
| Condition | New-build |
|---|---|
| Listing ID | 977359 |
| Land space | 1 m² |
| Price per unit | €2,564 / m2 |
What does this listing have to offer?
| Garage |
| MHD 2 minutes on foot |
What you will find nearby
Still looking for the right one?
Set up a watchdog. You will receive a summary of your customized offers 1 time a day by email. With the Premium profile, you have 5 watchdogs at your fingertips and when something comes up, they notify you immediately.












