House for sale 5+1 • 228 m² without real estateGRUNDSTÜCK ORTSRAND EXKLUSIV NUR FÜR DANWOOD-HAUSBAU St. Stefan ob Stainz Steiermark 8511
GRUNDSTÜCK ORTSRAND EXKLUSIV NUR FÜR DANWOOD-HAUSBAU St. Stefan ob Stainz Steiermark 8511Public transport less than a minute of walkingEfficiency meets emotional intelligence!
A building is more than a project – it's a statement.
Vision by Danwood stands for architecture with attitude. It is designed for people who shoulder responsibility and make values visible.
Each house is created according to an architecturally demanding concept: clear in its language, precise in execution, and uncompromising in quality.
For leaders who don’t just build, but shape – with foresight, style, and substance.
On your property or in…
Güssing: Approximately 2,600m², completely level site; property sizes and locations are freely selectable. Sizes range from 500m² to 1500m².
Here are the premium building plots! In the best location with a breathtaking view of the stunning Güssing Castle!
Güssing offers a future-proof, affordable, and energy-independent life in the green, making the investment in a property there a strategic asset.
Why Güssing
Energy Pioneer and Sustainability:
The town is energy self-sufficient and internationally acclaimed.
High coverage (over 85%) with regional biomass district heating results in stable, affordable heating costs.
Affordable Property Prices:
Prices are still significantly lower than the Austrian average, making the dream of owning a home with generous plots achievable.
Strong Infrastructure and Quality of Life:
As a suburban district, Güssing guarantees short distances and excellent services.
Planned Major Investments:
New educational campus and a modern medical center (from 2026).
Cultural center (Güssing Castle) and proximity to thermal baths.
The full opening of the S7 brings significant advantages for Güssing and its residents:
Faster connection to metropolitan areas: The expressway massively reduces the travel time to the A2 South Motorway, significantly shortening journeys to Graz and Vienna.
Regional relief: It diverts transit traffic—which previously heavily burdened communities like Fürstenfeld and Rudersdorf—onto the new route.
Economic impulses: The new connection, including the interchange near Rudersdorf/Dobersdorf and the proximity to the Königsdorf connection, strengthens Güssing as a suburban district and economic location through improved accessibility and the promotion of new business parks.
Value Stability and Development Potential:
Targeted municipal investments in infrastructure, downtown revitalization, and the technology center secure the long-term value stability of properties.
The municipal strategy is aimed at overcoming demographic challenges and establishing Güssing as an attractive residential and economic location.
Target Group
Families seeking a future, security, and nature, as well as those who value low energy costs and ecological responsibility.
Other Plots in:
Plot, 8323 Kohldorf: Building plot with plenty of sun in the hilly landscape of eastern Styria, 15 km from Graz!
Size: 758 m² | Purchase Price: €66,000
Plot, 8323 Kohldorf: Sunny building plot in Kohldorf, 15 km east of Graz!
Size: 787 m² | Purchase Price: €69,000
Plot, 8311 Markt Hartmannsdorf: Fully developed, sunny building plot in Markt Hartmannsdorf
Size: 920 m² | Purchase Price: €53,000
Plot, 9335 Lölling Graben: Building plot with a dreamlike distant view in the picturesque Carinthian mountain world
Size: 1001 m² | Purchase Price: €50,000
Plot, 8075 Hart near Graz: Sunny property on the outskirts of Graz
Size: 1980 m² | Purchase Price: €475,000
Plot in Stainz for Sale: Sunny plot on the outskirts of Stainz
Size: 825 m² | Purchase Price: €149,000
There is no economic connection between the property owner and the builder of the house.
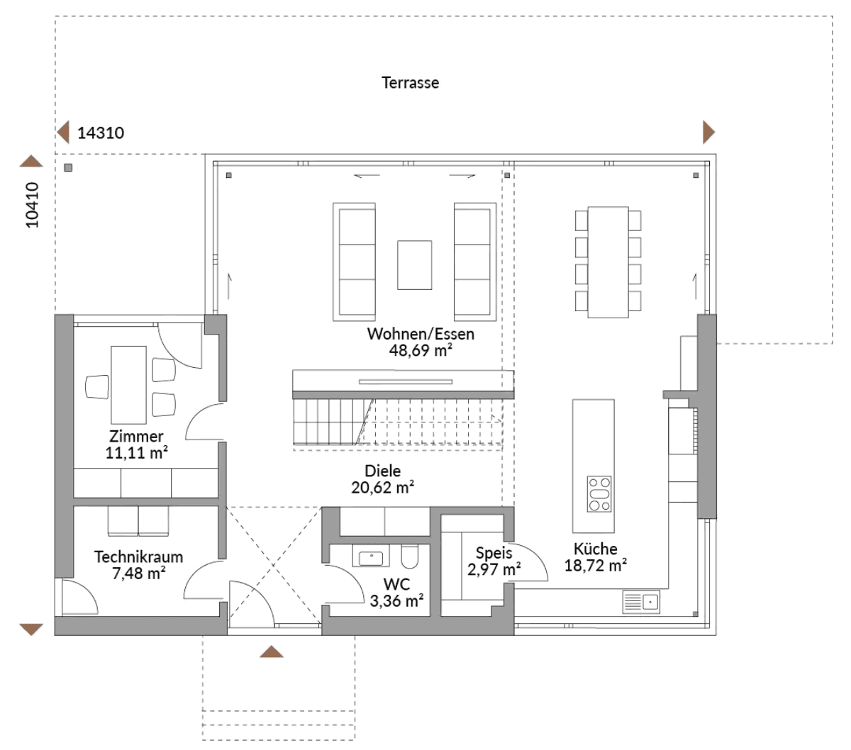
VISION Turnkey Construction and Service Description – Houses on a Raft Slab!
Scope of Services
CEILING HEIGHTS: Ground Floor 3.05m, Attic 2.67m
VISION Technical Package including underfloor heating (power-modulating brine-water heat pump with integrated hot water storage)
Painting work
Tiling
Flooring work
Sanitary equipment
Smart Home
Electric shutters
Personal interior designer – overseeing every step of spatial planning, from the selection of high-quality materials to the individual design of the interior spaces
Request a construction description and brochures!
To do so, please provide your telephone number, email address, and postal address.
Thank you!
Property characteristics
| Age | Over 5050 years |
|---|---|
| Layout | 5+1 |
| Usable area | 228 m² |
| Total floors | 2 |
| Condition | New-build |
|---|---|
| Listing ID | 977333 |
| Land space | 1 m² |
| Price per unit | €3,300 / m2 |
What does this listing have to offer?
| MHD 0 minutes on foot |
What you will find nearby
Still looking for the right one?
Set up a watchdog. You will receive a summary of your customized offers 1 time a day by email. With the Premium profile, you have 5 watchdogs at your fingertips and when something comes up, they notify you immediately.






























